Vraagprijs € 315.000,- k.k.
Hoekwoning met 3 slaapkamers op een centrale plek in Eijsden. Achter de Lang Haag is een rustige straat in Eijsden, op loopafstand van de supermarkt en andere voorzieningen. In deze straat staat deze hoekwoning voorzien van kunststof kozijnen en een ruime tuin met eigen, brede achterom. Boven zijn 3 slaapkamers en de badkamer, terwijl de zolder ruimte biedt om een extra (slaap)kamer te realiseren.
Hoekwoning met 3 slaapkamers op een centrale plek in Eijsden. Achter de Lang Haag is een rustige straat in Eijsden, op loopafstand van de supermarkt en andere voorzieningen. In deze straat staat deze hoekwoning voorzien van kunststof kozijnen en een ruime tuin met eigen, brede achterom. Boven zijn 3 slaapkamers en de badkamer, terwijl de zolder ruimte biedt om een extra (slaap)kamer te realiseren.
Typering:
Eijsden heeft een uitstekend voorzieningenniveau met sportfaciliteiten, goede
bus-/treinverbindingen en omringende natuur waar u kunt wandelen en fietsen. De omgeving van de Breusterstraat met een supermarkt, winkels en speciaalzaken is op loopafstand. Het centrum van Maastricht bevindt zich op slechts 10 kilometer afstand. Hier woont u buiten de stad, maar toch heel dichtbij.
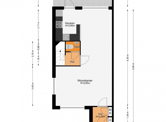
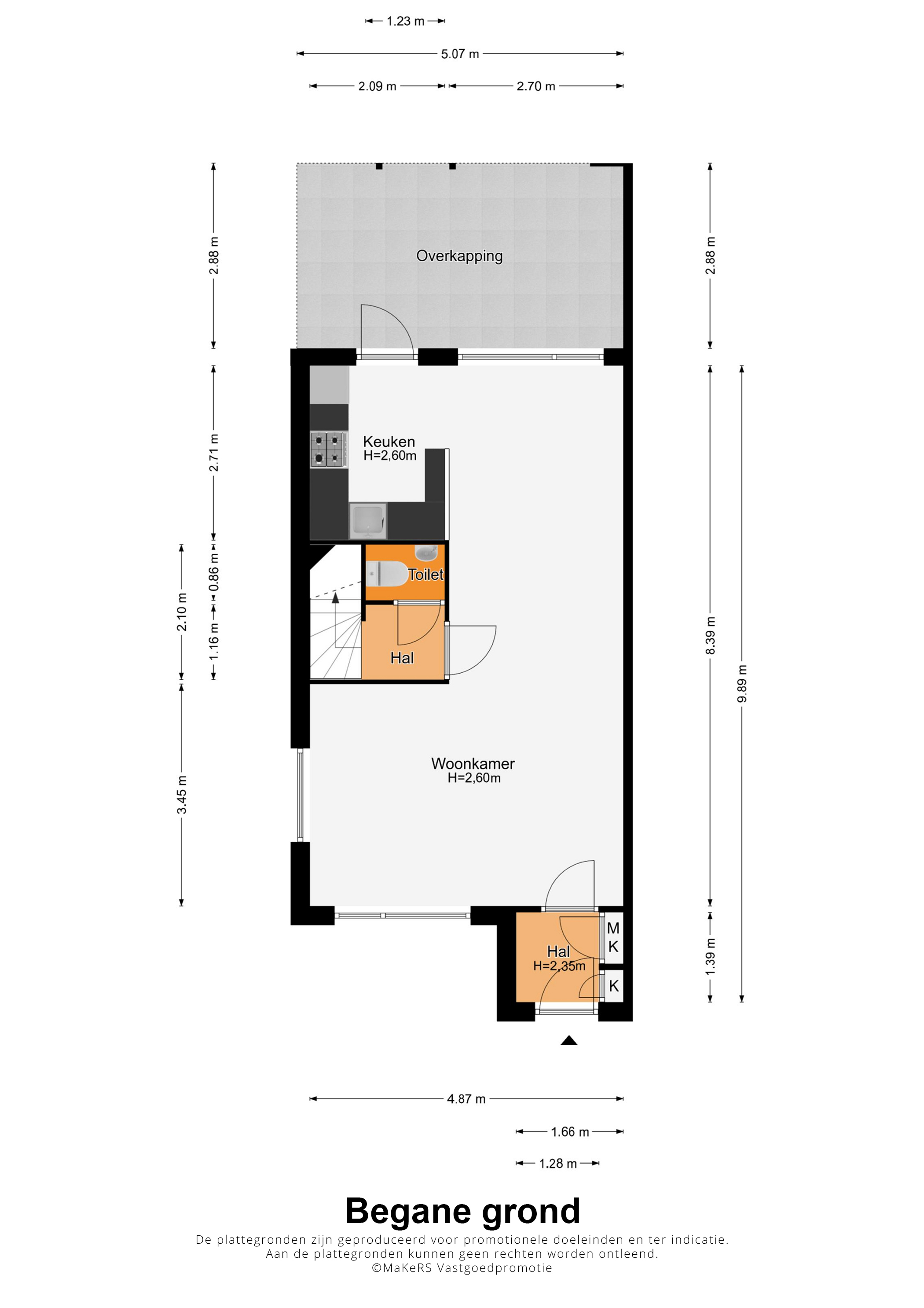
Begane grond:
Vanaf de openbare parkeerplekken is het maar een paar stappen naar de entree van deze hoekwoning. Via de hal (circa 1,66 x 1,39) loop je naar de L-vormige woonkamer (circa 30 m2). Nu is de woonkamer leeg, maar de meest logische indeling is het zitgedeelte aan de voorzijde en het eetgedeelte aan de achterzijde.
In de halfopen keuken (circa 2,71 x 2,09) staat een lichte U-opstelling met een granietlook aanrechtblad en achterwand. De gaskookplaat, afzuigkap, oven en koelkast zijn ingebouwd. Het halfhoge muurtje zorgt voor verbinding met het eetgedeelte, terwijl je vanaf tafel het aanrecht niet ziet. Er ligt, net als in de woonkamer, een lichte tegelvloer in de keuken.
Vanuit de woonkamer is het trapportaal te bereiken, dat tevens de plek is van de toiletruimte met fonteintje. Op de vloer van het portaal en op de trap ligt donker tapijt. Het raam in de zijgevel zorgt voor lichtinval.
Het overdekte terras (circa 5,07 x 2,88) is een verlengstuk van de woonkamer en keuken. De aansluitende tuin is aangelegd met bestrating en twee borders, waarin een grote variatie aan beplanting staat. In de berging (circa 3,88 x 2,10) kunnen de fietsen staan.
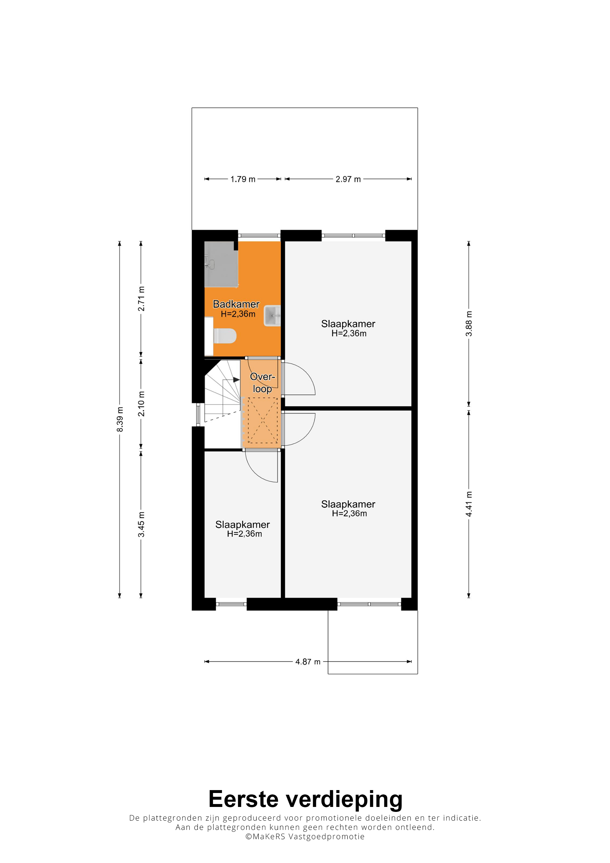
Eerste verdieping:
Vanaf de overloop zijn drie slaapkamers en de badkamer te bereiken. Aan de voorzijde zijn slaapkamer I (circa 4,41 x 2,97) en slaapkamer II (circa 3,45 x 1,79). Slaapkamer III (circa 3,88 x 2,97) bevindt zich aan de achterzijde.
Naast deze kamer is de badkamer (circa 2,71 x 1,79) met een douche, een wandcloset en een groot wastafelmeubel. De wanden zijn geheel betegeld in een lichte kleurstelling en het raam met rooster zorgt ervoor dat de badkamer goed geventileerd kan worden.
Zolder:
Op de overloop is de toegang tot een ruime zolder (circa 4,84 x 3,69) met een hoge nok en de opstelling van de HR-ketel (eigendom). Na het plaatsen van een vaste trap en een dakraam of dakkapel is het mogelijk om hier een extra slaapkamer te realiseren.
Algemeen:
Bouwjaar: 1984
Perceeloppervlakte: 136 m2
Gebruiksoppervlakte wonen: circa 84 m2, inhoud circa 366 m3
Verwarming en warm water via een HR-ketel (eigendom)
Kunststof kozijnen met isolatieglas en screens (voorzijde)
Drie (mogelijk vier) slaapkamers
Tuin met achterom en berging
Asbest: niet bekend
Projectnotaris: Wyck Notarissen
Energielabel: C
Aanvaarding: in onderling overleg
De NVM-vragenlijst Deel B en de Lijst van Zaken zijn niet van toepassing, aangezien de woning wordt verkocht met een niet-zelfbewoningsclausule. Verkoper heeft de woning zelf niet bewoond en kan derhalve koper niet informeren over eigenschappen en/of gebreken waarvan hij niet op de hoogte is.
Ter bescherming van de belangen van zowel koper als verkoper, wordt uitdrukkelijk gesteld dat een koopovereenkomst met betrekking tot deze onroerende zaak eerst dan tot stand komt nadat koper en verkoper de koopovereenkomst hebben getekend (“schriftelijkheidsvereiste”).
Indien er in de woning huurtoestellen aanwezig zijn zoals CV-ketel, boiler, zonnepanelen, mechanische ventilatie etc. dan dienen deze door de koper te worden overgenomen.
De termijn die wordt opgenomen voor eventuele (overeengekomen) ontbindende voorwaarden (bv. Financiering) is in de regel 4 tot 6 weken na het sluiten van de mondelinge wilsovereenkomst.
De waarborgsom/bankgarantie is 10% van de koopsom. De koper dient deze 3 dagen ná het vervallen van de ontbindende voorwaarden bij de desbetreffende notaris te deponeren.
Koper is te allen tijde gerechtigd voor eigen rekening een bouwkundige keuring te (laten) verrichten dan wel andere adviseurs te raadplegen teneinde een goed inzicht te verkrijgen over de staat van onderhoud.
Deze informatie is door ons, Tijs & Cyril Makelaardij met de nodige zorgvuldigheid samengesteld. Onzerzijds wordt echter geen enkele aansprakelijkheid aanvaard voor enige onvolledigheid, onjuist of anderszins, dan wel de gevolgen daarvan. Alle opgegeven maten en oppervlakten zijn indicatief. Van toepassing zijn de NVM voorwaarden.