Vraagprijs € 519.000,- k.k.
Goed onderhouden, ruime woning met een oprit, carport, garage en 4 slaapkamers. In de Torenstraat, om de hoek van het Raadplein, staat deze goed onderhouden 2-onder-1 kapwoning met een fraaie keuken, ruime badkamer en een grote overkapping in de achtertuin. Er zijn 3 slaapkamers op de 1e verdieping en er is een vaste trap naar de 2e verdieping, waar een extra (slaap)kamers. Dit fraaie huis biedt alles wat u zoekt, en misschien wel meer.
Goed onderhouden, ruime woning met een oprit, carport, garage en 4 slaapkamers. In de Torenstraat, om de hoek van het Raadplein, staat deze goed onderhouden 2-onder-1 kapwoning met een fraaie keuken, ruime badkamer en een grote overkapping in de achtertuin. Er zijn 3 slaapkamers op de 1e verdieping en er is een vaste trap naar de 2e verdieping, waar een extra (slaap)kamers. Dit fraaie huis biedt alles wat u zoekt, en misschien wel meer.
Typering:
Cadier en Keer heeft twee supermarkten, enkele winkels, een gezondheidscentrum, meerdere sportverenigingen, een basisschool, kinderopvang en een prachtige golfbaan. Gaat u niet met de auto of fiets naar Maastricht? Er is een goede busverbinding naar de stad, een aan de andere zijde richting Margraten, Gulpen, Vaals en Aken. Middelbaar onderwijs bevindt zich, net als een internationale school, op fietsafstand in Maastricht.
Souterrain:
Vanuit de hal op de begane grond is er toegang tot het souterrain. Hier heeft u de beschikking over een kelder/wasruimte (circa 4,77 x 2,61) met de opstelling van de wasapparatuur. Onder de trap is een bergkast, de ruimte is verwarmd en er ligt een witte tegelvloer. Het luik op ooghoogte geeft toegang tot de kruipruimte.
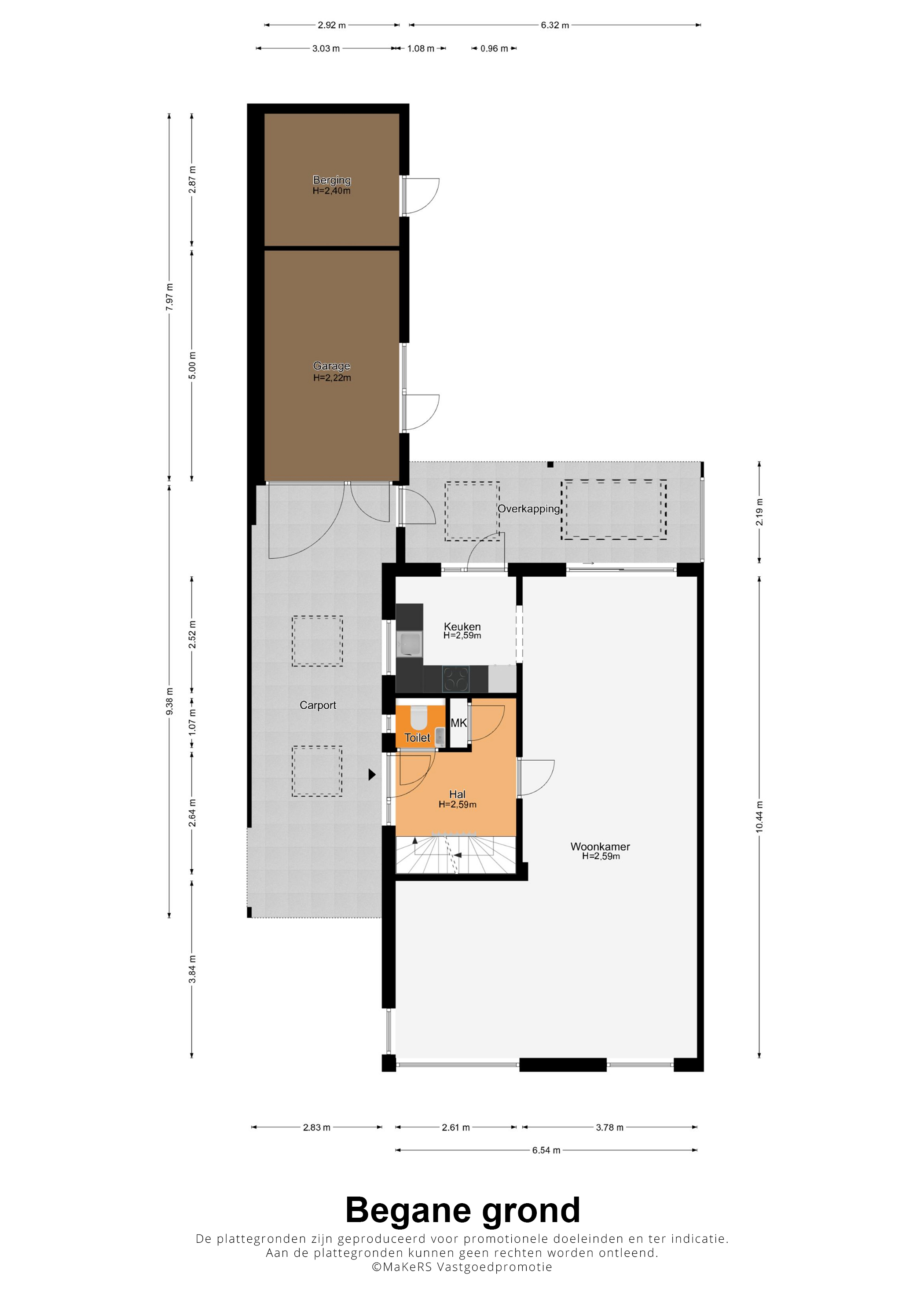
Begane grond:
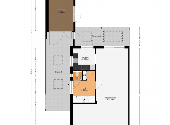
Onder de carport is de entree van deze goed onderhouden, fraaie woning. In de hal zijn de meterkast en de toiletruimte, ingedeeld met een wandcloset en een fonteintje. Fraaie elementen zijn het stucwerk, de lichte tegelvloer en de fraaie trappen naar het souterrain en de eerste verdieping.
In de L-vormige woonkamer (circa 50 m2) ligt een parketvloer, die goed past bij de kleuren op de wanden. Het circa 6.50 meter brede zitgedeelte is aan de voorzijde en het eetgedeelte grenst aan de keuken. Een grote schuifpui zorgt voor een optimale verbinding met de achtertuin.
Uw oog valt op de keuken, waar een lichte hoekopstelling met een granieten aanrechtblad staat. Deze keuken heeft een ingebouwde keramische kookplaat, afzuigkap, oven en een vaatwasser. Er is lichtinval aan twee zijden, wat de keuken heel ruimtelijk maakt.
Naast de keuken is de carport, met twee lichtkoepels en een deur naar de tuin. In het verlengde van de carport is de garage (circa 5,00 x 2,92), voor de auto en de fietsen. Ook is er een berging (circa 2,87 x 2,92), voor het tuingereedschap en andere spullen.
Niet alleen de garage en de carport, maar ook de oprit biedt parkeergelegenheid op eigen terrein. Naast de oprit is de voortuin, met groenblijvende hagen en gras. Ook in de achtertuin, op het noorden, ziet u gras. Dit is een fijne speelplek voor de kinderen, terwijl u zelf het overdekte terras (circa 6,32 x 2,19) als favoriete plek zal beschouwen.
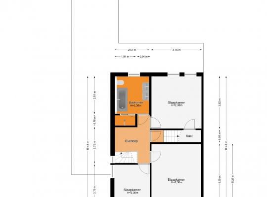
Eerste verdieping:
Het raam in de zijgevel zorgt voor veel lichtinval bij de trap en op de overloop. Vanaf hier is er toegang tot drie slaapkamers en de badkamer. Op een groot deel van deze verdieping ligt laminaat op de vloer en het geheel maakt een goede indruk.
Aan de voorzijde zijn slaapkamer I (circa 3,79 x 2,66) en slaapkamer II (circa 5,26 x 3,71), ingericht als kinderkamer en master bedroom. Slaapkamer III (circa 3,92 x 3,75) met inbouwkast bevindt zich aan de achterzijde.
De moderne badkamer (circa 3,92 x 3,75) heeft een fraaie afwerking, met betongrijze wandtegels en donkere tegels op de vloer. U heeft niet alleen de beschikking over een inloopdouche, maar er staat ook een whirlpoolbad. Verder zijn er een tweede toilet en een badmeubel met twee wastafels in de badkamer. Vier lades, een hoge kast en een dubbele spiegelkast bieden een grote hoeveelheid bergruimte.
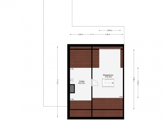
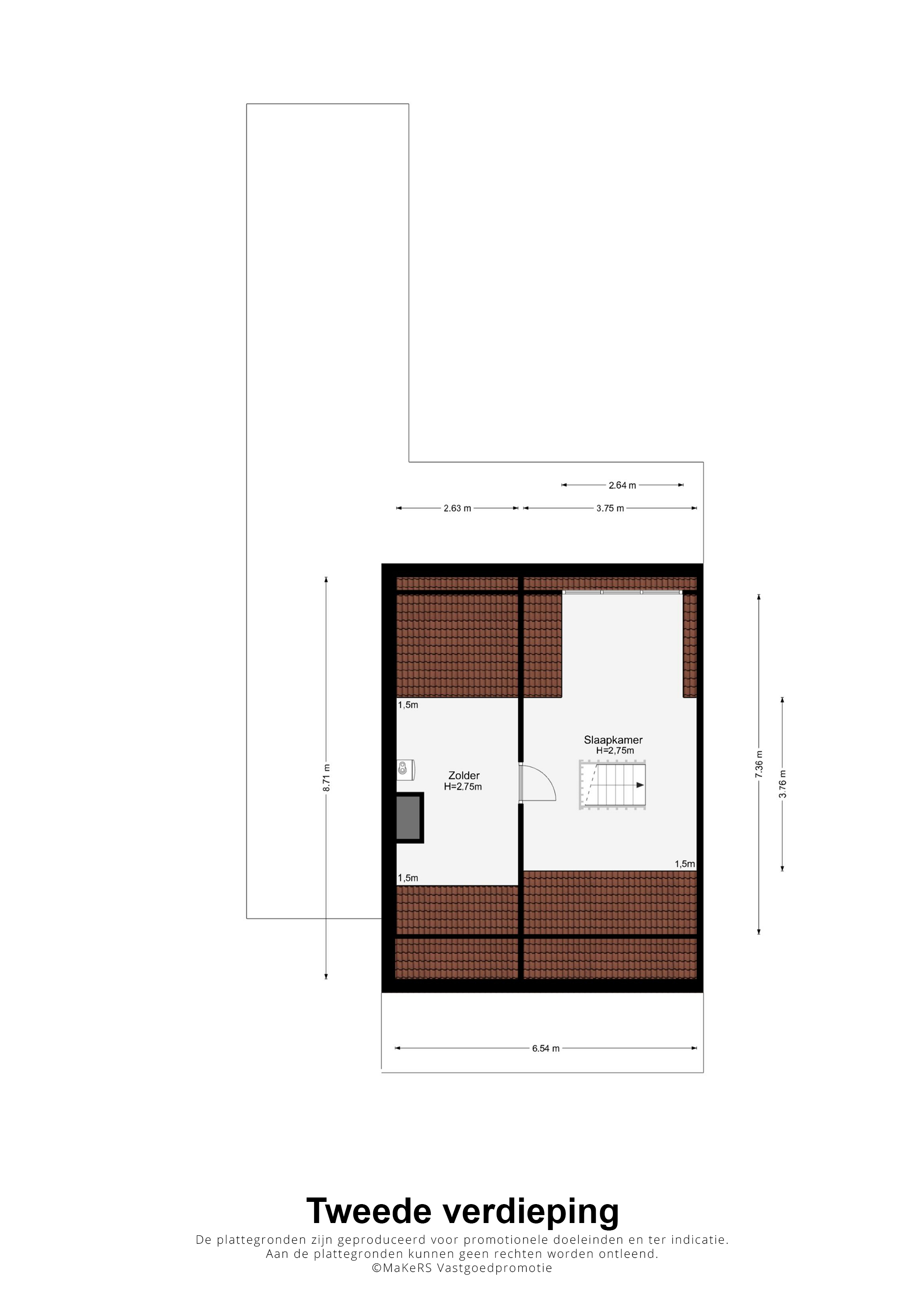
Tweede verdieping:
Een vaste trap geeft toegang tot de tweede verdieping. Als eerste is er slaapkamer IV (circa 7,36 x 3,75 inclusief trap), met een dakkapel aan de achterzijde. Aansluitend is er een bergzolder met de opstelling van de HR-ketel (Vaillant, 2016, eigendom).
Algemeen:
Bouwjaar: 1977
Perceeloppervlakte: 267 m2
Gebruiksoppervlakte wonen: circa 166 m2, inhoud circa 609 m3
Verwarming en warm water via een HR-ketel (Vaillant, 2016, eigendom)
Hardhouten kozijnen met dubbel glas
Vaste trap naar de tweede verdieping (extra slaapkamer met een dakkapel)
Ruime parkeergelegenheid op eigen terrein (oprit, carport en garage)
Energielabel: C
Asbest: niet bekend
Aanvaarding: in onderling overleg
Ter bescherming van de belangen van zowel koper als verkoper, wordt uitdrukkelijk gesteld dat een koopovereenkomst met betrekking tot deze onroerende zaak eerst dan tot stand komt nadat koper en verkoper de koopovereenkomst hebben getekend (“schriftelijkheidsvereiste”).
Indien er in de woning huurtoestellen aanwezig zijn zoals CV-ketel, boiler, zonnepanelen, mechanische ventilatie etc. dan dienen deze door de koper te worden overgenomen.
De termijn die wordt opgenomen voor eventuele (overeengekomen) ontbindende voorwaarden (bv. Financiering) is in de regel 4 tot 6 weken na het sluiten van de mondelinge wilsovereenkomst.
De waarborgsom/bankgarantie is 10% van de koopsom. De koper dient deze 3 dagen ná het vervallen van de ontbindende voorwaarden bij de desbetreffende notaris te deponeren.
Koper is te allen tijde gerechtigd voor eigen rekening een bouwkundige keuring te (laten) verrichten dan wel andere adviseurs te raadplegen teneinde een goed inzicht te verkrijgen over de staat van onderhoud.
Deze informatie is door ons, Tijs & Cyril Makelaardij met de nodige zorgvuldigheid samengesteld. Onzerzijds wordt echter geen enkele aansprakelijkheid aanvaard voor enige onvolledigheid, onjuist of anderszins, dan wel de gevolgen daarvan. Alle opgegeven maten en oppervlakten zijn indicatief. Van toepassing zijn de NVM voorwaarden.