Vraagprijs € 239.000,- k.k.
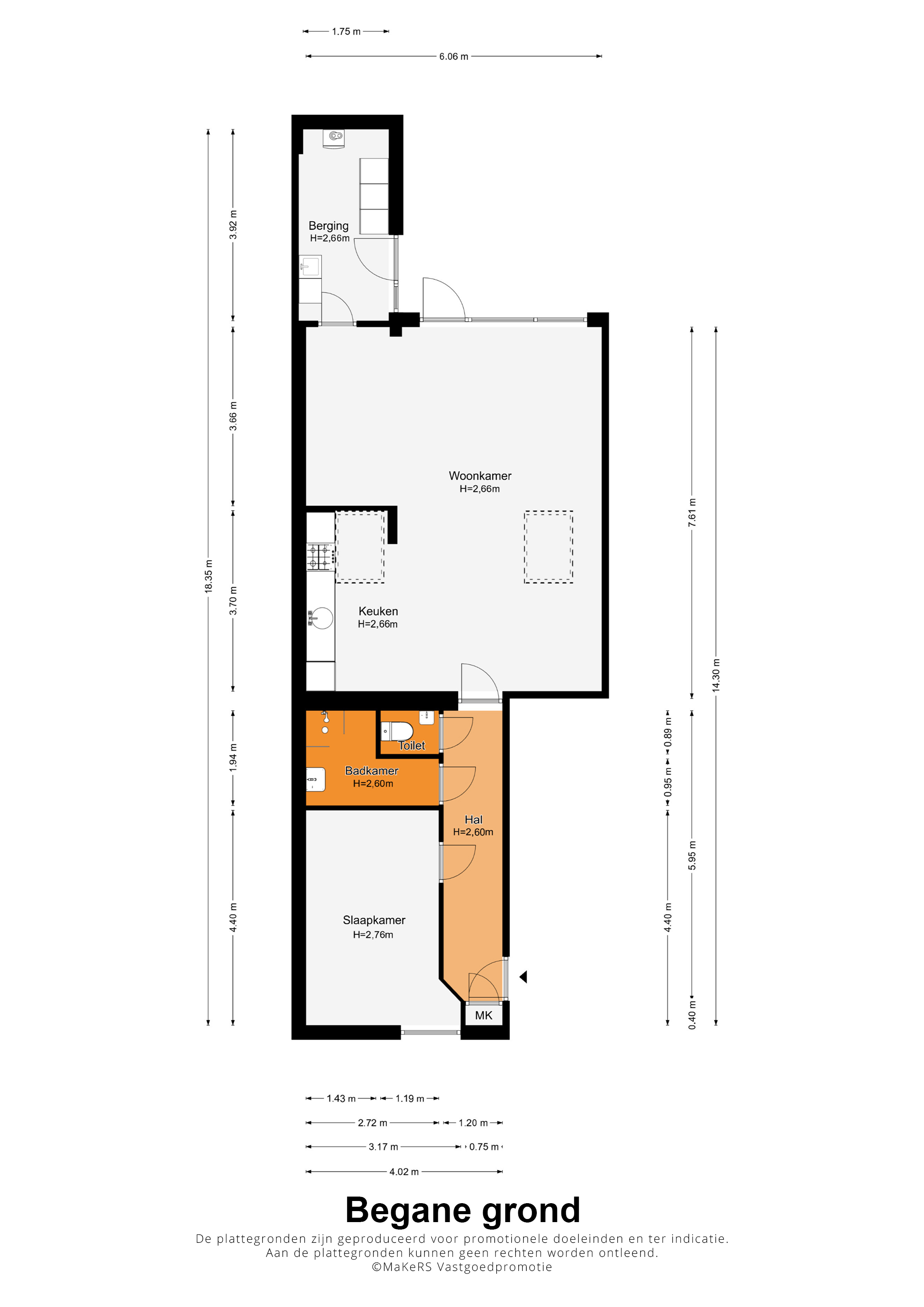
Gelijkvloers appartement met tuin in het centrum van Bunde. Tegenover het station van Bunde, met een rechtstreekse verbinding naar Maastricht, staat een prachtig pand uit 1925. Op de begane grond vindt u dit superleuke appartement (benedenwoning) met verrassend veel ruimte en een fijne privétuin (circa 50 m2) op het zonnige westen. Het appartement heeft een ruime slaapkamer, een badkamer en een aparte toiletruimte, een bijkeuken/berging en een royale woonkamer met halfopen keuken.
Gelijkvloers appartement met tuin in het centrum van Bunde. Tegenover het station van Bunde, met een rechtstreekse verbinding naar Maastricht, staat een prachtig pand uit 1925. Op de begane grond vindt u dit superleuke appartement (benedenwoning) met verrassend veel ruimte en een fijne privétuin (circa 50 m2) op het zonnige westen. Het appartement heeft een ruime slaapkamer, een badkamer en een aparte toiletruimte, een bijkeuken/berging en een royale woonkamer met halfopen keuken.
Typering:
Niet alleen Maastricht maar ook Geleen, Sittard en Roermond zijn vanaf station Bunde rechtstreeks te bereiken. Dit biedt u de mogelijkheid om buiten, maar toch nabij de stad te wonen. Met twee supermarkten en horecagelegenheden, van een brasserie tot cafetaria, ontbreekt het u aan niets. Bunde is gunstig gelegen ten opzichte van de op- en afritten van de A2 richting Eindhoven/Maastricht en de A79 richting Heerlen/Aken. Het nabijgelegen Bunderbos is een prachtige plek om te wandelen en de tennis/padelclub, hockeyclub en golfbaan zijn binnen handbereik.
Indeling:
Aan de voorzijde is de overdekte entree van huisnummer 25, 25a en 25b. Via de deur aan de linkerzijde loopt u de hal (circa 5,95 x 1,20) in, met de meterkast en een lichte tegelvloer. De woonkamer met halfopen keuken (totaal circa 7,61 x 6,06) bevindt zich aan de achterzijde, met uitzicht op de privétuin. Door de grote ramen aan de westkant en de lichtkoepels in het platte dak valt veel licht naar binnen. De keukenopstelling, uitgevoerd in een lichte kleur, heeft een ingebouwde gaskookplaat, afzuigkap, koelkast en vriezer.
Erg handig is de bijkeuken/berging (circa 3,92 x 1,75) in de aanbouw. Hier staan een keukenblok met spoelbak en een kastenwand, en is er genoeg plek voor de wasapparatuur. Ook is hier de opstelling van de HR-ketel (Remeha, 2017, eigendom).
De slaapkamer (circa 4,40 x 3,17/2,72) bevindt zich aan de voorzijde. In de buitengevel is een ventilatierooster aangebracht en de kozijnen zijn uitgevoerd met geluidswerend glas. De slaapkamer is groot genoeg om een tweepersoonsbed te plaatsen en de grote schuifdeurkast blijft achter.
Naast de slaapkamer zijn de badkamer en toiletruimte, beiden te bereiken vanuit de hal. De badkamer (circa 2,72 x 1,94/0,95) is ingedeeld met een inloopdouche, wastafel en een spiegelkast.
Heeft u binnen alles gezien, dan is het tijd om de tuin te bekijken. De ligging op het westen is perfect voor de zonliefhebber, en de indeling met veel groen maakt de tuin tot een gezellige buitenruimte. Erg handig is de poort naar de Vliegenstraat, waardoor uw fiets in de tuin of berging kan staan.
Algemeen:
Bouwjaar: 1929
Gebruiksoppervlakte wonen: circa 80 m2, inhoud circa 312 m3
Hardhouten kozijnen met dubbel (geluidswerend) glas
Verwarming en warm water via een HR-ketel (Remeha, 2017, eigendom)
Recent geactiveerde Vereniging van Eigenaren
VvE bijdrage circa € 100,- per maand
Gelijkvloers appartement met tuin
Voldoende openbare parkeergelegenheid
Energielabel: C
Aanvaarding: in onderling overleg
Ter bescherming van de belangen van zowel koper als verkoper, wordt uitdrukkelijk gesteld dat een koopovereenkomst met betrekking tot deze onroerende zaak eerst dan tot stand komt nadat koper en verkoper de koopovereenkomst hebben getekend (“schriftelijkheidsvereiste”).
Indien er in de woning huurtoestellen aanwezig zijn zoals CV-ketel, boiler, zonnepanelen, mechanische ventilatie etc. dan dienen deze door de koper te worden overgenomen.
De termijn die wordt opgenomen voor eventuele (overeengekomen) ontbindende voorwaarden (bv. financiering) is in de regel 4 tot 6 weken na het sluiten van de mondelinge wilsovereenkomst.
De waarborgsom/bankgarantie is 10% van de koopsom. De koper dient deze 3 dagen ná het vervallen van de ontbindende voorwaarden bij de desbetreffende notaris te deponeren.
Koper is te allen tijde gerechtigd voor eigen rekening een bouwkundige keuring te (laten) verrichten dan wel andere adviseurs te raadplegen teneinde een goed inzicht te verkrijgen over de staat van onderhoud.
Deze informatie is door ons, Tijs & Cyril Makelaardij met de nodige zorgvuldigheid samengesteld. Onzerzijds wordt echter geen enkele aansprakelijkheid aanvaard voor enige onvolledigheid, onjuist of anderszins, dan wel de gevolgen daarvan. Alle opgegeven maten en oppervlakten zijn indicatief. Van toepassing zijn de NVM voorwaarden.