Zeer ruime, luxe woning met 4 slaapkamers, een grote woonkeuken en een enorme tuin. Dat een woning niet beoordeeld moet worden op een bescheiden voorgevel, bewijst deze woning aan de Prinses Wilhelminaweg in Bunde. Aan de achterzijde is een bijna 9.50 meter lange woonkeuken gebouwd, perfect voor de kookliefhebber en voor een etentje met familie of vrienden. Verder heeft dit droomhuis maar liefst 4 slaapkamers, een ruime badkamer, een ruime stahoogte kelder en een bijkeuken/wasruimte. Via de bijkeuken is ook het souterrain te bereiken. De diepe tuin op het oosten is verdeeld in drie niveaus, met het achterste deel dat extra breed is. Met kunststof kozijnen, aluminium lichtstraten en schuifpui voorzien van zonwerend dubbel glas, zonnepanelen en energielabel A is dit een heerlijk huis met een duurzaam karakter.
Zeer ruime, luxe woning met 4 slaapkamers, een grote woonkeuken en een enorme tuin. Dat een woning niet beoordeeld moet worden op een bescheiden voorgevel, bewijst deze woning aan de Prinses Wilhelminaweg in Bunde. Aan de achterzijde is een bijna 9.50 meter lange woonkeuken gebouwd, perfect voor de kookliefhebber en voor een etentje met familie of vrienden. Verder heeft dit droomhuis maar liefst 4 slaapkamers, een ruime badkamer, een ruime stahoogte kelder en een bijkeuken/wasruimte. Via de bijkeuken is ook het souterrain te bereiken. De diepe tuin op het oosten is verdeeld in drie niveaus, met het achterste deel dat extra breed is. Met kunststof kozijnen, aluminium lichtstraten en schuifpui voorzien van zonwerend dubbel glas, zonnepanelen en energielabel A is dit een heerlijk huis met een duurzaam karakter.
Typering:
Hier woont u aan het begin van de Prinses Wilhelminaweg, op loopafstand van het treinstation en de supermarkt. Verder zijn het Bunderbos, de golfbaan, de tennis- en padelclub, de voetbalvelden van Bunde en de hockeyvereniging in de nabijheid. In Bunde zijn diverse winkelvoorzieningen, terwijl de bereikbaarheid van de op- en afritten van de autosnelwegen A2 (Eindhoven/Luik) en A79 (Maastricht/Heerlen-Aken) goed is. Het populaire dorp bevindt zich op circa 8 kilometer van het centrum van Maastricht.
Souterrain:
Vanuit de tuin én via de bijkeuken is het souterrain (circa 6,41 x 2,94) te bereiken, met een plafondhoogte van ruim 2,50 meter. Deze ruimte is onder andere geschikt als provisieruimte, wijnkelder en (tuin)berging.
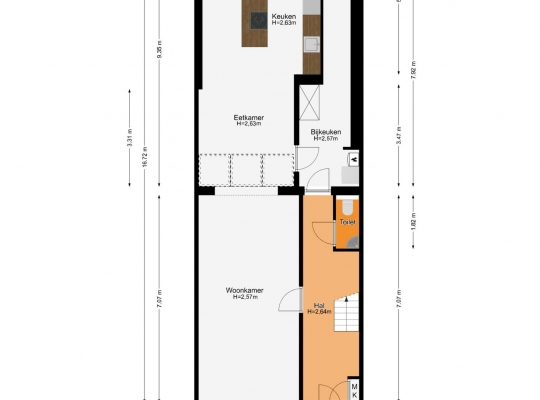
Begane grond:
Via de buitentrap loopt u, vanaf de openbare weg, naar het terras aan de voorzijde. Bij het terras is de kunststof voordeur, die toegang geeft tot de ruime hal (circa 7,07 x 1,91). Hier ziet u de trap naar de eerste verdieping, en aan het einde van de hal is de toiletruimte met fonteintje.
Links in de hal is een deur naar de woonkamer (circa 7,07 x 3,42) met een parketvloer, stucwerk en inbouwverlichting in het plafond. Er zijn aansluitpunten voor wandverlichting, en de verbinding met de woonkeuken versterkt het gevoel van ruimte. De parketvloer ligt niet alleen in de woonkamer en woonkeuken, maar ook op de eerste verdieping (uitgezonderd de badkamer).
De woonkeuken (circa 9,35 x 3,25) is de perfecte plek om te genieten van een heerlijk diner uit eigen keuken. Er is plek voor een grote tafel, dus u kunt familie of vrienden uitnodigen voor een etentje in uw nieuwe (t)huis. De lichtstraat en de serre-achtige aanbouw zorgen voor veel lichtinval. Uw oog valt direct op de hoogwaardige keukenopstelling met een kookeiland en aanrechtbladen van graniet. Alle benodigde apparatuur van Bosch, Siemens en Liebherr is ingebouwd: een inductie kookplaat, afzuigkap, oven, vaatwasser en een koelkast.
Naast de keuken is een bijkeuken/wasruimte van circa 7,92 x 1,75 meter, met de opstelling van de HR-ketel (Agpo Ferroli, 2005, eigendom). Tevens is hier de wasmachineaansluiting. Vanuit hier is er toegang tot zowel de woonkeuken als het souterrain.
Via de schuifdeuren en een aparte loopdeur in de woonkeuken bereikt u de achtertuin, verdeeld over meerdere niveaus. Het eerste deel, met een trap naar het souterrain, is bestraat; het tweede niveau is ingericht als terras. Het derde, tevens hoogste niveau, biedt ruimte aan een terras en een mooi aangelegde tuin op het oosten. Het achterste deel van de tuin is een stuk breder, perfect voor de tuinliefhebber en als speelplek voor kinderen.
In het achterste deel van de tuin bevindt zich een in spouw gebouwd bijgebouw (circa 5,66 x 2,45/1,95), voorzien van een douche, wastafel en een nieuwe boiler van 80 liter. Dit multifunctionele bijgebouw is geschikt voor diverse doeleinden, zoals kantoor, atelier of zelfs een tiny house.
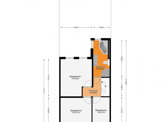
1e verdieping:
Er zijn drie slaapkamers op de eerste verdieping, net als een ruime badkamer. Slaapkamer I (circa 3,46 x 2,84) en slaapkamer II (circa 2,91 x 1,91) bevinden zich aan de voorzijde. Aan de achterzijde ligt slaapkamer III (circa 4,16 x 3,49/2,42) met een op maat gemaakte kastenwand voor kleding, schoenen en linnengoed. Op de gehele verdieping ligt dezelfde parketvloer als op de begane grond, met uitzondering van de badkamer.
De lichte en ruime badkamer (circa 4,08 x 1,82) is voorzien van een bad, aparte douche, toilet en een dubbele wastafel met meubel. De grote lades en spiegelkasten bieden volop bergruimte.
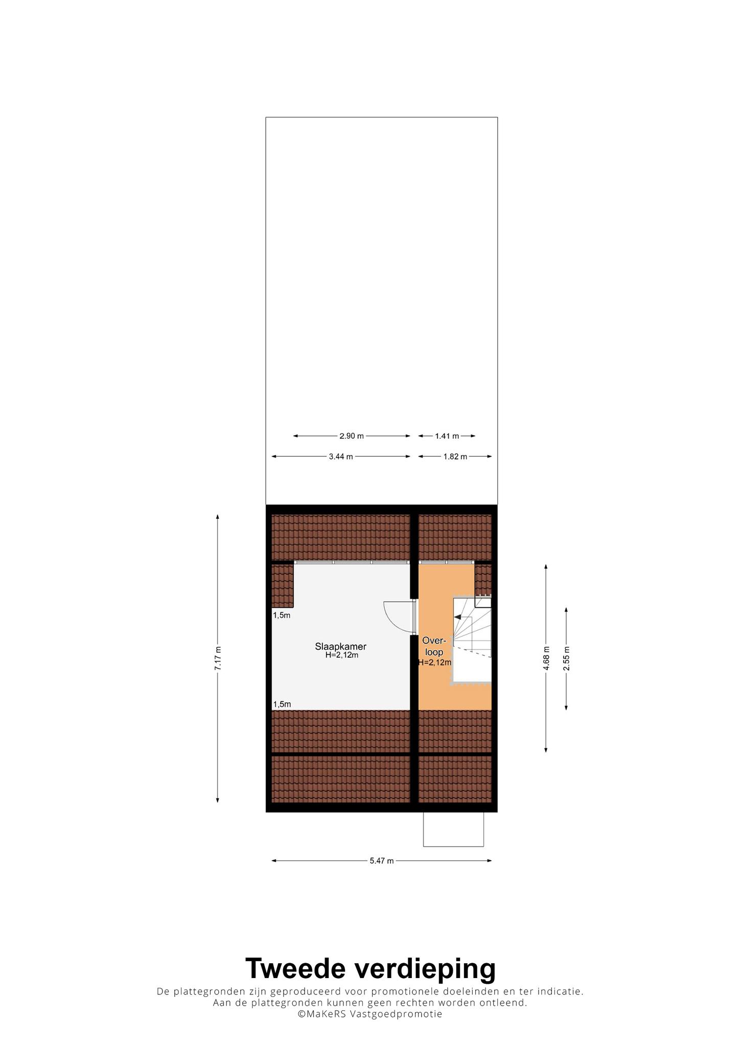
2e verdieping:
Een vaste Frans eiken trap geeft toegang tot de tweede verdieping, met een dakkapel aan de achterzijde en een goede stahoogte. De eerste ruimte is een overloop, ideaal als speel-/werkplek of logeerruimte. Aansluitend is slaapkamer IV (circa 4,68 x 2,90), die eind 2024 volledig is gestuukt en voorzien van een nieuwe laminaatvloer.
Algemeen:
Bouwjaar: 1929
Perceeloppervlakte: 433 m²
Gebruiksoppervlakte wonen: circa 150 m²
Inhoud: circa 603 m³
Verwarming en warm water via een HR-ketel (Agpo Ferroli, 2005, eigendom)
Kunststof kozijnen met HR-glas, lichtstraten en schuifpui van aluminium met zonwerend dubbel glas
Gehele woning voorzien van dubbel glas
25 zonnepanelen (op voorzijde woonhuis en platte dak woonkeuken)
Vier slaapkamers, waarvan één met dakkapel
Zeer royale woonkeuken en sfeervolle woonkamer
Extra bergruimte in bijkeuken en stahoge kelder
Parkeergelegenheid op eigen terrein (geschikt voor kleine auto)
Diepe tuin op het oosten, verdeeld over drie niveaus
Multifunctioneel bijgebouw in de tuin met douche, wasbak en boiler
Energielabel: A
Aanvaarding: in onderling overleg
Ter bescherming van de belangen van zowel koper als verkoper, wordt uitdrukkelijk gesteld dat een koopovereenkomst met betrekking tot deze onroerende zaak eerst dan tot stand komt nadat koper en verkoper de koopovereenkomst hebben getekend (“schriftelijkheidsvereiste”).
Indien er in de woning huurtoestellen aanwezig zijn zoals CV-ketel, boiler, zonnepanelen, mechanische ventilatie etc. dan dienen deze door de koper te worden overgenomen.
De termijn die wordt opgenomen voor eventuele (overeengekomen) ontbindende voorwaarden (bv. Financiering) is in de regel 4 tot 6 weken na het sluiten van de mondelinge wilsovereenkomst.
De waarborgsom/bankgarantie is 10% van de koopsom. De koper dient deze 3 dagen ná het vervallen van de ontbindende voorwaarden bij de desbetreffende notaris te deponeren.
Koper is te allen tijde gerechtigd voor eigen rekening een bouwkundige keuring te (laten) verrichten dan wel andere adviseurs te raadplegen teneinde een goed inzicht te verkrijgen over de staat van onderhoud.
Deze informatie is door ons, Tijs & Cyril Makelaardij met de nodige zorgvuldigheid samengesteld. Onzerzijds wordt echter geen enkele aansprakelijkheid aanvaard voor enige onvolledigheid, onjuist of anderszins, dan wel de gevolgen daarvan. Alle opgegeven maten en oppervlakten zijn indicatief. Van toepassing zijn de NVM voorwaarden.