Uitgebouwde en fraai verbouwde 2-onder-1 kapwoning met 3 slaapkamers, ruime garage en een zonnige tuin. De eerste verbouwing dateert van 2015 en de tweede van 2023, waardoor u snel kan verhuizen. Het dak van de woning, inclusief isolatie, is in 2023 vernieuwd en 12 zonnepanelen zorgen voor een lagere energierekening.
Uitgebouwde en fraai verbouwde 2-onder-1 kapwoning met 3 slaapkamers, ruime garage en een zonnige tuin. De eerste verbouwing dateert van 2015 en de tweede van 2023, waardoor u snel kan verhuizen. Het dak van de woning, inclusief isolatie, is in 2023 vernieuwd en 12 zonnepanelen zorgen voor een lagere energierekening.
Typering:
De Lindenlaan is een van de rustige straten in de kindvriendelijke wijk Bunderveld. Een basisschool, kinderopvang, huisarts en supermarkt bevinden zich op loopafstand. Bunde is gunstig gelegen ten opzichte van de op- en afritten van de A2 richting Eindhoven/Maastricht en de A79 richting Heerlen-Aken. Het nabijgelegen Bunderbos is een prachtige plek om te wandelen en de tennis/padelclub, hockeyclub en de golfbaan zijn binnen handbereik. Bunde heeft een eigen treinstation, supermarkt en diverse restaurants. Overige voorzieningen zijn in ruime mate aanwezig in Meerssen en Maastricht.
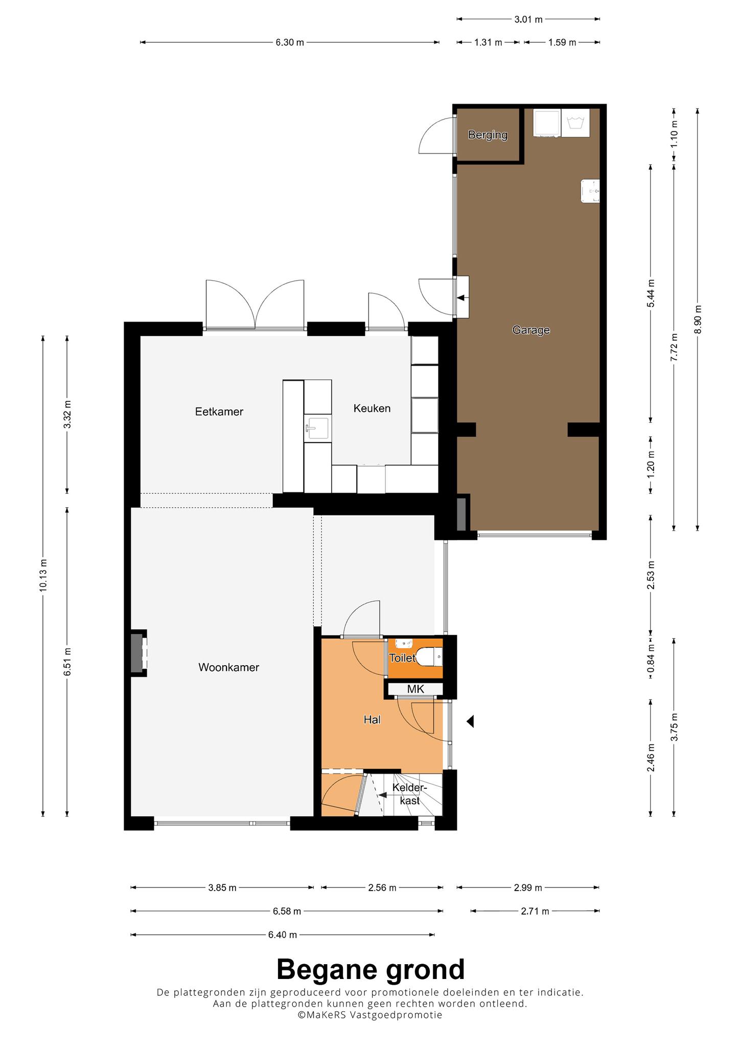
Begane grond:
De hal is een lichte ruimte met een fraaie afwerking, met laminaat op de vloer en de originele trapopgang. Onder de trap is een ruime bergkast met de opstelling van de HR-ketel (Intergas, 2015, huur). Vanuit de hal zijn de woonkamer en de toiletruimte met fonteintje te bereiken.
Dankzij de uitbouw aan de achterzijde is de woonkamer een stuk groter geworden. Met een oppervlakte van ca. 52,5 m2, inclusief keuken, heeft u de beschikking over een leefruimte van formaat. Op de vloer ligt Noors leisteen en bij de zithoek ziet u de open haard. In de aanbouw is het eetgedeelte, met openslaande deuren naar de tuin.
Een van de pluspunten van deze woning is de keuken, die in 2015 is geplaatst. De U-opstelling met brede lades en grote kasten biedt veel bergruimte en het houten aanrechtblad zorgt voor een keuken met een fraaie uitstraling. Alle benodigde apparatuur is ingebouwd: een keramische kookplaat, afzuigkap, vaatwasser (2023), heteluchtoven, combimagnetron en een koel-/vriescombinatie (2023).
Rechts van de woning staat de ruime, uitgebouwde garage/berging (ca. 8,90 x 2,99) met een elektrische sectionaalpoort naar de oprit en een deur naar de tuin. In het achterste deel, naast de uitstortgootsteen, is de opstelling van de wasapparatuur. Ook is er een inpandige berging gemaakt, te bereiken vanuit de tuin.
In 2019 is de tuin opnieuw aangelegd, met behoud van reeds aanwezige beplanting in de achtertuin waardoor deze veel privacy biedt. De achtertuin met groot terras is gesitueerd op het zuidoosten en achter de garage, op het grind, is een tweede terras gerealiseerd. De voortuin met lage beplanting geeft de woning een mooie uitstraling en de oprit biedt parkeergelegenheid aan twee auto’s.
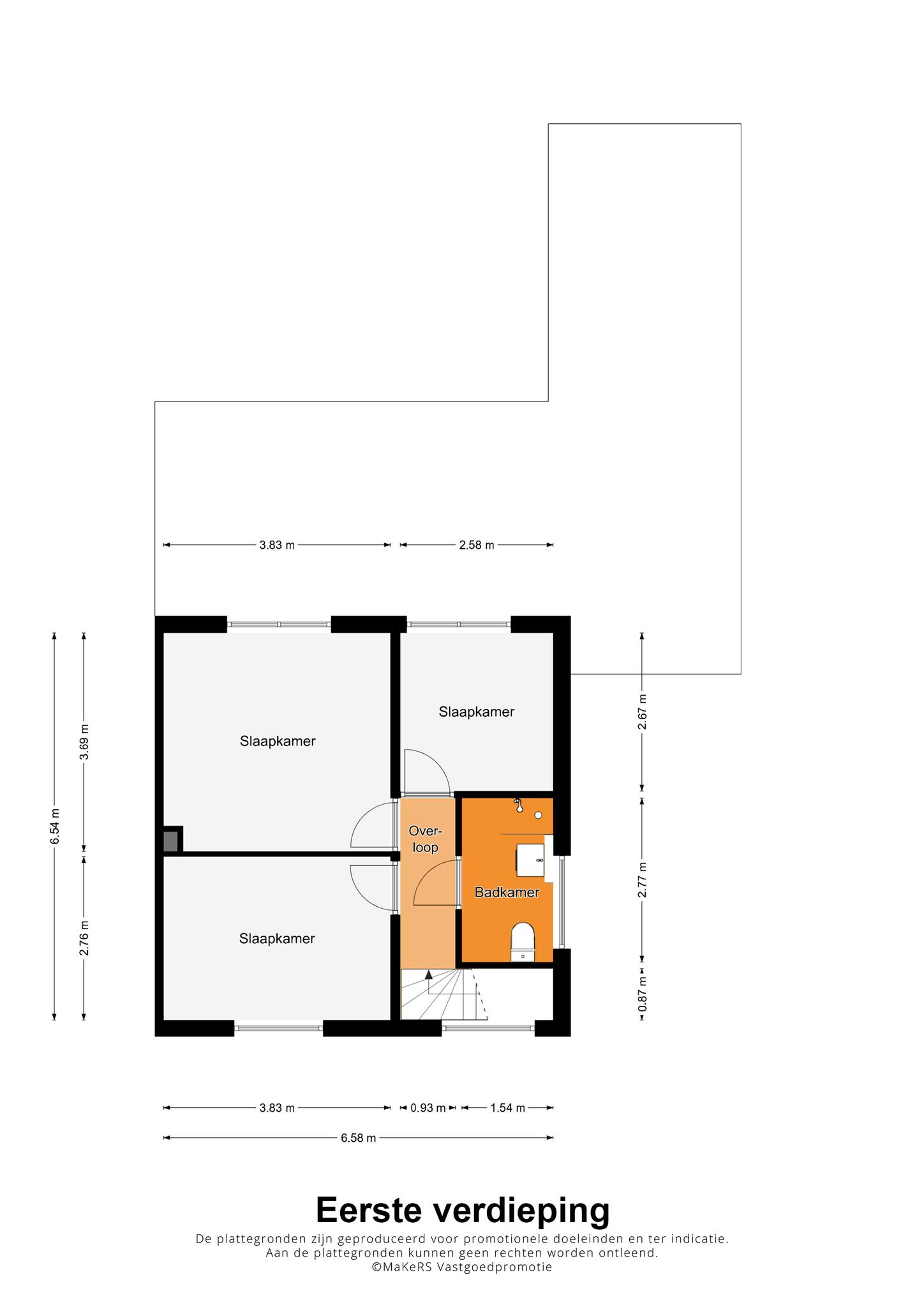
Eerste verdieping:
Niet alleen op de begane grond, maar ook op de eerste verdieping is deze woning fraai verbouwd. Aan de lichte overloop grenzen drie slaapkamers en de badkamer. Op bijna de hele verdieping ligt laminaat en ook hier zijn de kunststof kozijnen voorzien van HR++ glas.
Slaapkamer I (ca. 3,83 x 2,76) bevindt zich aan de voorzijde en aan de achterzijde zijn slaapkamer II (ca. 3,83 x 3,69) en slaapkamer III (ca. 2,58 x 2,67). In slaapkamer II, in gebruik als master bedroom, hangt een airco-unit (koelen en verwarmen).
De in 2020 deels gemoderniseerde badkamer (ca. 2,77 x 1,54) is uitgevoerd met marmer op de muren en grijze tegels op de vloer. Het raam zorgt voor lichtinval en de ruimte is ingedeeld met een inloopdouche, wastafelmeubel en een tweede toilet.
Algemeen:
Bouwjaar: 1967, gerenoveerd in 2015 en 2023
Gebruiksoppervlakte wonen: circa 110 m2, inhoud circa 476 m3
Kunststof kozijnen (deels vernieuwd in 2015) met HR++ glas en rolluiken (2023)
Het dak van de woning is in 2023 geheel vernieuwd (inclusief isolatie)
Dakbedekking van de aanbouw (2015) en garage (2018)
12 zonnepanelen met micro-omvormers, geplaatst in 2023
Asbest: plafond garage
Energielabel: B
Aanvaarding: i.o.overleg
Ter bescherming van de belangen van zowel koper als verkoper, wordt uitdrukkelijk gesteld dat een koopovereenkomst met betrekking tot deze onroerende zaak eerst dan tot stand komt nadat koper en verkoper de koopovereenkomst hebben getekend (“schriftelijkheidsvereiste”).
Indien er in de woning huurtoestellen aanwezig zijn zoals CV-ketel, boiler, zonnepanelen, mechanische ventilatie etc. dan dienen deze door de koper te worden overgenomen.
De termijn die wordt opgenomen voor eventuele (overeengekomen) ontbindende voorwaarden (bv. Financiering) is in de regel 4 tot 6 weken na het sluiten van de mondelinge wilsovereenkomst.
De waarborgsom/bankgarantie is 10% van de koopsom. De koper dient deze 3 dagen ná het vervallen van de ontbindende voorwaarden bij de desbetreffende notaris te deponeren.
Koper is te allen tijde gerechtigd voor eigen rekening een bouwkundige keuring te (laten) verrichten dan wel andere adviseurs te raadplegen teneinde een goed inzicht te verkrijgen over de staat van onderhoud.
Deze informatie is door ons, Tijs & Cyril Makelaardij met de nodige zorgvuldigheid samengesteld. Onzerzijds wordt echter geen enkele aansprakelijkheid aanvaard voor enige onvolledigheid, onjuist of anderszins, dan wel de gevolgen daarvan. Alle opgegeven maten en oppervlakten zijn indicatief. Van toepassing zijn de NVM voorwaarden.