Instapklare, uitgebouwde en luxe woning met garage. Een beauty! Zo kunt u deze 2-onder-1 kapwoning met garage gerust noemen. In de afgelopen jaren zijn de toiletruimte, keuken en badkamer vernieuwd. Maar er is nog veel meer verbouwd, waardoor u al snel kunt gaan inrichten en genieten. In totaal zijn er 4 slaapkamers en de woonkamer is, net als de keuken, heerlijk ruim. Via de bijkeuken is de garage inpandig te bereiken en de achtertuin heeft een goede zonligging.
Instapklare, uitgebouwde en luxe woning met garage. Een beauty! Zo kunt u deze 2-onder-1 kapwoning met garage gerust noemen. In de afgelopen jaren zijn de toiletruimte, keuken en badkamer vernieuwd. Maar er is nog veel meer verbouwd, waardoor u al snel kunt gaan inrichten en genieten. In totaal zijn er 4 slaapkamers en de woonkamer is, net als de keuken, heerlijk ruim. Via de bijkeuken is de garage inpandig te bereiken en de achtertuin heeft een goede zonligging.
Typering:
Een basisschool, kinderopvang, huisarts en supermarkt bevinden zich in de directe omgeving. Om de hoek, aan de Maasstraat, is een plantsoen met speelgelegenheid voor de kinderen. Bunde is gunstig gelegen ten opzichte van de op- en afritten van de A2 richting Eindhoven/Maastricht en de A79 richting Heerlen-Aken. Het nabijgelegen Bunderbos is een prachtige plek om te wandelen en de tennis/padelclub, hockeyclub en de golfbaan zijn binnen handbereik. Bunde heeft een eigen treinstation, supermarkt en diverse restaurants. Overige voorzieningen zijn in ruime mate aanwezig in Meerssen en Maastricht.
Begane grond:
Wow! Wat een fraaie uitstraling heeft deze instapklare woning! Aan de rechterzijde, naast de garage, is de entree van dit droomhuis. In de hal ligt, net als in de woonkamer en keuken, een stijlvolle visgraatvloer. Verder ziet u mooi tapijt op de trap en een trendy zwarte taatsdeur met glas. Vanuit de hal heeft u onder andere toegang tot de fraaie toiletruimte met fonteintje.
De woon-/eetkamer heeft een oppervlakte van circa 33 m2, met het zitgedeelte aan de voorzijde en het eetgedeelte aan de achterzijde. Onder de trap is een bergkast en de schuifpui zorgt voor een fraaie verbinding met de tuin.
Vanuit de woon-/eetkamer kijkt u naar de luxe keuken (circa 4,00 x 3,36), met lichtinval aan twee zijden en inbouwverlichting in het plafond. De keukenopstelling (2023/2024) biedt volop bergruimte en alle benodigde apparatuur is ingebouwd: een inductie kookplaat met afzuiging, een Quooker, grote combi-oven, vaatwasser en een koelkast.
Naast de keuken is de bijkeuken (circa 4,00 x 1,65), met toegang tot de achtertuin en de garage. In de bijkeuken staat een grote kastenwand met ruimte voor de wasmachine en droger. De garage (circa 5,60 x 3,00) is voorzien van elektra, een gootsteen en een sectionaalpoort naar de oprit.
Zowel de voortuin (west) als de achtertuin (oost) zijn heel onderhoudsvriendelijk aangelegd. In de achtertuin zijn grote tuintegels gecombineerd met kunstgras en aan twee kanten staat een hoge coniferenhaag.
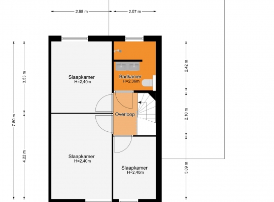
1e verdieping:
Niet alleen op de begane grond, maar ook op de eerste verdieping is dit huis helemaal af. Op bijna de hele verdieping ligt een houtlook pvc-vloer en de wanden zijn voorzien van behang. Op de overloop, bij de trap, is een trendy lattenwand geplaatst en de zwarte leuning maakt het geheel af.
Aan de voorzijde zijn slaapkamer I (circa 4,22 x 2,98) en slaapkamer II (circa 3,09 x 2,07), in gebruik als ouderslaapkamer en als kleedruimte. Slaapkamer III (circa 3,53 x 2,98), de master bedroom die is ingericht als kinderkamer, bevindt zich aan de achterzijde.
De stijlvolle badkamer (circa 2,42 x 2,07) heeft de wow-factor. U heeft de beschikking over een grote inloopdouche, tweede toilet, een elektrische handdoekenradiator en een breed wastafelmeubel met ronde spiegel. Alles klopt, van de kranen tot het tegelwerk.
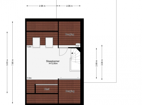
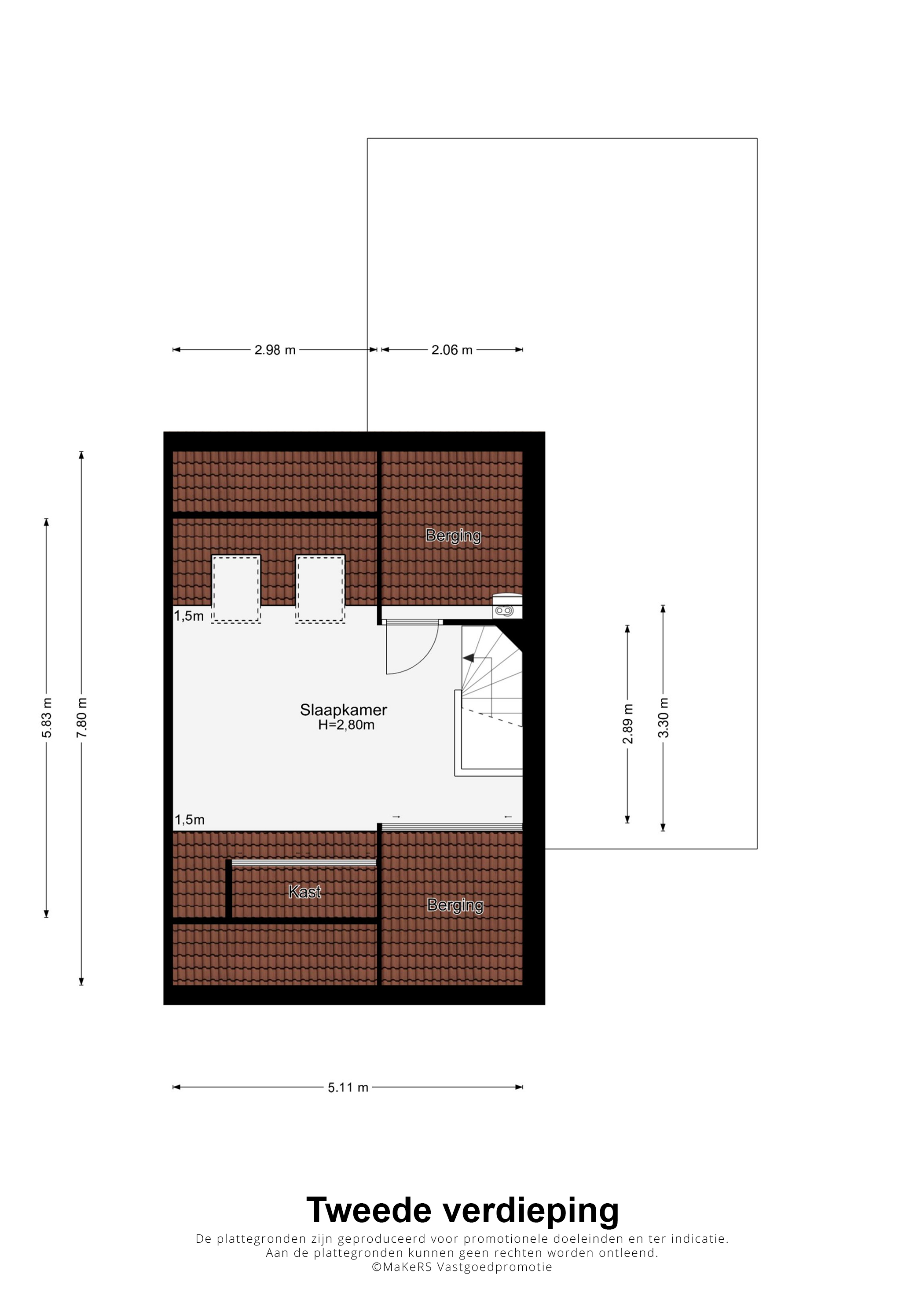
2e verdieping:
Slaapkamer IV (circa 5,11 x 5,83 inclusief bergingen) is een zeer royale en lichte ruimte, die nu als sportruimte wordt gebruikt. Twee dakramen zorgen voor veel lichtinval en in het schuine dak is verlichting ingebouwd. Op deze verdieping ligt een mooie laminaatvloer, waardoor u al snel kunt beginnen met inrichten.
Algemeen:
Bouwjaar: 1988, gemoderniseerd in 2023/2024
Perceeloppervlakte: 222 m2
Gebruiksoppervlakte wonen: circa 121 m2, inhoud circa 486 m3
Verwarming en warm water via een HR-ketel (Vaillant, 2024, eigendom)
Kunststof kozijnen met grotendeels HR++ glas en deels rolluiken
Vier slaapkamers, waarvan een op de tweede verdieping
Asbest aanwezig in de cv-ruimte
Energielabel: C
Aanvaarding: in onderling overleg
Ter bescherming van de belangen van zowel koper als verkoper, wordt uitdrukkelijk gesteld dat een koopovereenkomst met betrekking tot deze onroerende zaak eerst dan tot stand komt nadat koper en verkoper de koopovereenkomst hebben getekend (“schriftelijkheidsvereiste”).
Indien er in de woning huurtoestellen aanwezig zijn zoals CV-ketel, boiler, zonnepanelen, mechanische ventilatie etc. dan dienen deze door de koper te worden overgenomen.
De termijn die wordt opgenomen voor eventuele (overeengekomen) ontbindende voorwaarden (bv. financiering) is in de regel 4 tot 6 weken na het sluiten van de mondelinge wilsovereenkomst.
De waarborgsom/bankgarantie is 10% van de koopsom. De koper dient deze 3 dagen ná het vervallen van de ontbindende voorwaarden bij de desbetreffende notaris te deponeren.
Koper is te allen tijde gerechtigd voor eigen rekening een bouwkundige keuring te (laten) verrichten dan wel andere adviseurs te raadplegen teneinde een goed inzicht te verkrijgen over de staat van onderhoud.
Deze informatie is door ons, Tijs & Cyril Makelaardij met de nodige zorgvuldigheid samengesteld. Onzerzijds wordt echter geen enkele aansprakelijkheid aanvaard voor enige onvolledigheid, onjuist of anderszins, dan wel de gevolgen daarvan. Alle opgegeven maten en oppervlakten zijn indicatief. Van toepassing zijn de NVM voorwaarden.