Koopprijs vanaf € 269.760,- v.o.n.
Op vrijdag 20 maart van 17:30 tot 19:00 uur vindt een verkoopevent plaats op locatie!
Tijdens dit moment kun je de sfeer van de plek zelf ervaren en je persoonlijk laten informeren over het project.
Locatie: Burchtstraat te Bunde.
DE BOUW IS GESTART!
In het hart van Bunde, een nieuw thuis in oude pracht:
De Heilige Agnes.
8 unieke woningen aan de Burchstraat in Bunde.
Wonen in de Auw Kèrk – midden in Bunde
Bunde, wat zoveel als ‘omheind stuk land’ betekent, is met amper 5000 inwoners klein genoeg om dorps aan te voelen en groot genoeg om te voorzien in alle dagelijks gemak. Alles dichtbij. De bakker, de slager en verrassend veel leuke eetgelegenheden. Meerssen, met zijn gezellige terrassen op de Markt, vele leuke winkels en rijke cultureel erfgoed, ligt binnen handbereik.
Jouw woning, jouw ontwerp
In de Heilige Agnes koop je geen kant-en-klare woning, maar een woonbasis. De essentiële voorzieningen zijn aanwezig, maar de indeling bepaal jij helemaal zelf. Zo geef je elke ruimte een eigen functie en ontstaat er een thuis dat naadloos past bij jouw manier van leven.
Je bepaalt zelf waar je wanden plaatst, hoeveel kamers je maakt en welke afwerking daarbij hoort. Wil je een royale loftachtige leefruimte of juist meerdere intieme kamers? Een moderne keuken met kookeiland of liever een compacte opstelling? Een luxe badkamer of juist een praktische? Het
kan allemaal. Je hebt de vrijheid om jouw woning volledig af te stemmen op jouw woonwensen en levensstijl. Van indeling en inrichting tot en met afwerking.
Een kerk als thuis
De Heilige Agnes is een unieke woonlocatie. De imposante ruimtes, hoge plafonds en grote rondboogramen zorgen voor een unieke woonbeleving, terwijl de woningen slim en stijlvol in het kerkgebouw zijn geïntegreerd.
De oorspronkelijke opzet van de kerk blijft herkenbaar: het schip, de centrale ruimte waar ooit de kerkbanken stonden, herbergt vier ruime woningen. Het transept, de dwarsbeuken van de kerk, biedt plaats aan twee gespiegelde woningen met een bijzondere lichtinval. In de voormalige pastorie, waar vroeger de pastoor woonde, is een karaktervolle woning gecreëerd.
Tot slot bevindt zich in het voorportaal en de twee kerktorens de meest royale woning, die optimaal profiteert van de hoogte van het gebouw en een groots uitzicht biedt.
Elke woning in de Heilige Agnes beschikt over een eigen voor- en achtertuin, evenals een gemeenschappelijke tuin die gedeeld wordt met de andere bewoners. Ideaal voor een picknick of om vrienden en familie uit te nodigen.
De oppervlakte welke vermeld betreft de oppervlakte enkel van de tuin en niet van het hele perceel.
Bij de herbestemming van Sint Agnes is veel aandacht besteed aan de balans tussen historische charme en modern wooncomfort. Originele elementen zoals glas-in-loodramen en authentieke bogen zijn gecombineerd met een duurzame energiehuishouding. Hierdoor heeft de Heilige Agnes niet alleen een bijzondere uitstraling, maar vormt ze tevens een toekomstbestendige woonomgeving.
De woningen
In de Heilige Agnes woon je altijd in een unieke en karaktervolle omgeving.
Elk woningtype ligt op een eigen plek in het kerkgebouw en heeft zo zijn eigen charme. Wat overal hetzelfde is: de monumentale sfeer en de vrijheid om de indeling en afwerking helemaal naar eigen wens te bepalen.
Schip
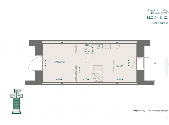
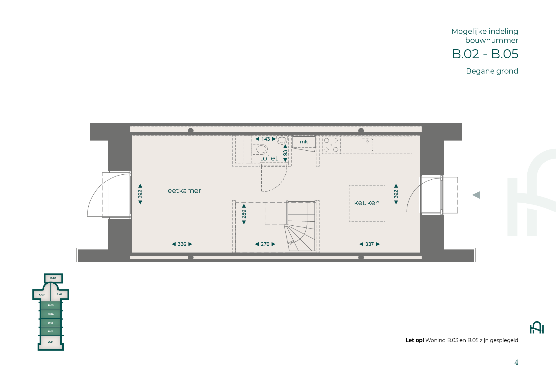
De vier woningen van het type Schip (B.02 t/m B.05) liggen in het centrale deel van de kerk. Hier geven de hoge plafonds en grote, oorspronkelijke ramen een prachtige lichtinval en een open gevoel. Jij bepaalt hoe je deze royale ruimte inricht.
Transept
De woningen van het type Transept (C.06 en C.07) bevinden zich in de voormalige dwarsbeuken en het oude koor. Dankzij de karakteristieke ramen en de bijzondere lichtval hebben deze woningen een uitgesproken sfeer. De indeling laat je volledig afhangen van jouw woonideeën.
Pastorie
De Pastorie (D.08) is de meest compacte woning en ooit de ambtswoning van de pastoor.
Hier woon je omgeven door historische charme, met een overzichtelijk woonvolume dat
je naar eigen smaak kunt invullen.
Torens
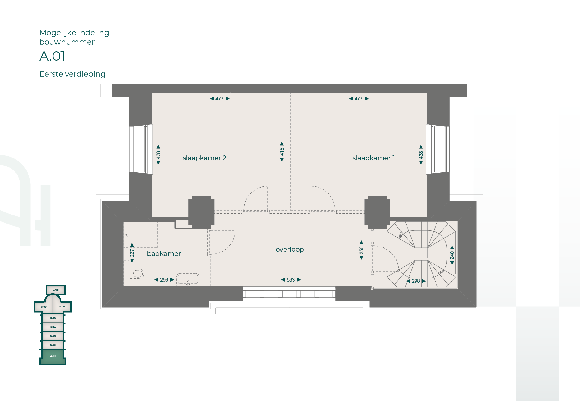
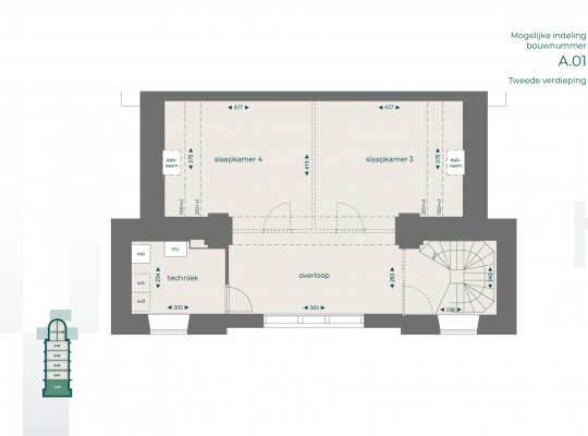
De Torens (A.01) is de grootste woning, verdeeld over drie bouwlagen. De ligging in de hoogste delen van de kerk en het weidse uitzicht maken het wonen hier groots en uniek. Een bijzonder detail is het originele glas-in-loodrozet, dat het interieur verrijkt met kleurrijk licht. Hoe je de ruimte benut, bepaal je zelf. Bewoners kunnen niet de torens in!
| C (Transept 1-2) |
| Bouwnummer: |
Woonoppervlakte: |
Prijs: |
Status: |
| 6 |
116 m² |
€ 399.760,- |
Verkocht |
| 7 |
116 m² |
€ 399.760,- |
Verkocht |
| A (Torens) |
| Bouwnummer: |
Woonoppervlakte: |
Prijs: |
Status: |
| 1 |
199 m² |
€ 539.760,- |
Onder optie |
| B1 (Schip 1) |
| Bouwnummer: |
Woonoppervlakte: |
Prijs: |
Status: |
| 2 |
109 m² |
€ 379.760,- |
Onder optie |
| B2 (Schip 2-3-4) |
| Bouwnummer: |
Woonoppervlakte: |
Prijs: |
Status: |
| 3 |
113 m² |
€ 384.760,- |
Beschikbaar |
| 4 |
113 m² |
€ 384.760,- |
Beschikbaar |
| 5 |
113 m² |
€ 384.760,- |
Onder optie |
| D (Pastorie) |
| Bouwnummer: |
Woonoppervlakte: |
Prijs: |
Status: |
| 8 |
63 m² |
€ 269.760,- |
Onder optie |