Fors uitgebouwde woning met een erker, eetkamer, 3 slaapkamers en een garage. Met een totale oppervlakte van ca. 59 m2 bieden de woonkamer, eetkamer en keuken verrassend veel ruimte. Boven zijn drie slaapkamers en de badkamer, terwijl de woning ook een wijn-/provisiekelder heeft. De ruime tuin en garage met oprit maken deze woning heel compleet.
Fors uitgebouwde woning met een erker, eetkamer, 3 slaapkamers en een garage. Met een totale oppervlakte van ca. 59 m2 bieden de woonkamer, eetkamer en keuken verrassend veel ruimte. Boven zijn drie slaapkamers en de badkamer, terwijl de woning ook een wijn-/provisiekelder heeft. De ruime tuin en garage met oprit maken deze woning heel compleet.
Typering:
De Beukenlaan is een van de rustige straten in de kindvriendelijke wijk Bunderveld. Een basisschool, kinderopvang, huisarts en supermarkt bevinden zich op loopafstand. Bunde is gunstig gelegen ten opzichte van de op- en afritten van de A2 richting Eindhoven/Maastricht en de A79 richting Heerlen-Aken. Het nabijgelegen Bunderbos is een prachtige plek om te wandelen en de tennis/padelclub, hockeyclub en de golfbaan zijn binnen handbereik. Bunde heeft een eigen treinstation, supermarkt en diverse restaurants. Overige voorzieningen zijn in ruime mate aanwezig in Meerssen en Maastricht.
Souterrain:
Wijn/provisiekelder (ca. 3,10 x 2,85)
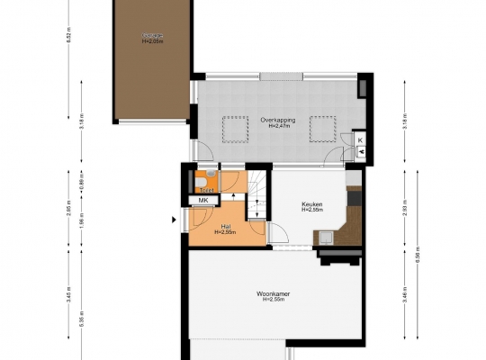
Begane grond:
Aan de linkerzijde, bij de oprit, is de entree van deze fors uitgebouwde woning. In de hal met leisteen vloer ziet u de trapopgang, meterkast en de toiletruimte met fonteintje. Achter een van de paneeldeuren is de trap naar de wijn-/provisiekelder (ca. 3,10 x 2,84).
Vanuit de hal loopt u de keuken (ca. 3,51 x 2,93) in, die in verbinding met de uitgebouwde woonkamer (ca. 6,72 x 5,05/3,45) en de eetkamer (ca. 6,43 x 3,18) staat. De keuken biedt ruimte aan een eet-/ontbijttafel en een lichte hoekopstelling met een granieten blad, gaskookplaat, afzuigkap, oven, magnetron, vaatwasser en een koelkast.
De woonkamer met grote erker biedt fraai uitzicht naar de brede Beukenlaan en de eetkamer met twee lichtkoepels is een uitstekende toevoeging aan deze woning. De totale oppervlakte van de woonkamer, eetkamer en keuken bedraagt ca. 59 m2. In de eetkamer, in een kast, is de opstelling van de HR-ketel (Nefit 2018 eigendom).
In de hoek van de eetkamer is een deur naar de garage (ca. 6,42 x 2,91) met een tegelvloer, sectionaalpoort en elektra. De garage staat in verbinding met de lange oprit en de onderhoudsvriendelijke achtertuin op het noordoosten. Aan de garage is een overkapping (ca. 1,91 x 1,61) gebouwd en in de hoek van de tuin staat een houten berging (ca. 2,92 x 2,31).
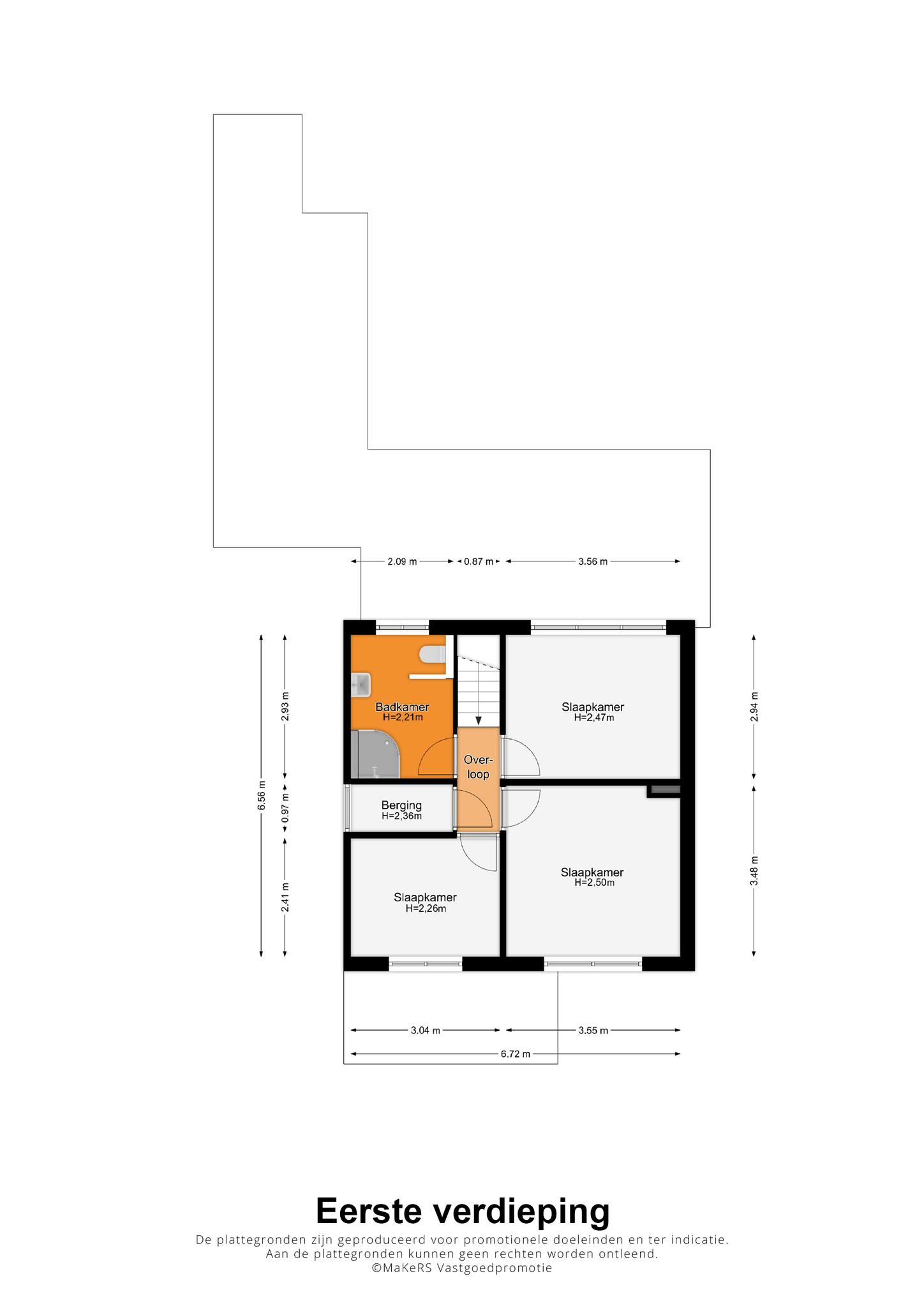
Eerste verdieping:
Aan de overloop grenzen drie ruime slaapkamers, de badkamer en een berging. Slaapkamer I (ca. 3,56 x 2,94) en slaapkamer II (ca. 3,55 x 3,48) bevinden zich aan de voorzijde en aan de achterzijde ligt slaapkamer III (ca. 3,04 x 2,41). De badkamer (ca. 2,93 x 2,08) is ingedeeld met een douche, toilet en wastafel. Het is mogelijk om de badkamer te vergroten, door de bergruimte bij de badkamer te betrekken. Of kiest u voor een separate toiletruimte op deze verdieping?
Algemeen:
Bouwjaar: 1965
Gebruiksoppervlakte wonen: circa 95 m2, inhoud circa 362 m3
Hardhouten kozijnen met isolatieglas
Grote uitbouw aan de achterzijde en een erker aan de voorzijde
Diepe oprit en een garage
Vloerverwarming: Aanwezig in de woonkamer
Airco: aanwezig op begane grond en eerste verdieping
Energielabel: D
Aanvaarding: In onderling overleg
Ter bescherming van de belangen van zowel koper als verkoper, wordt uitdrukkelijk gesteld dat een koopovereenkomst met betrekking tot deze onroerende zaak eerst dan tot stand komt nadat koper en verkoper de koopovereenkomst hebben getekend (“schriftelijkheidsvereiste”).
Indien er in de woning huurtoestellen aanwezig zijn zoals CV-ketel, boiler, zonnepanelen, mechanische ventilatie etc. dan dienen deze door de koper te worden overgenomen.
De termijn die wordt opgenomen voor eventuele (overeengekomen) ontbindende voorwaarden (bv. Financiering) is in de regel 4 tot 6 weken na het sluiten van de mondelinge wilsovereenkomst.
De waarborgsom/bankgarantie is 10% van de koopsom. De koper dient deze 3 dagen ná het vervallen van de ontbindende voorwaarden bij de desbetreffende notaris te deponeren.
Koper is te allen tijde gerechtigd voor eigen rekening een bouwkundige keuring te (laten) verrichten dan wel andere adviseurs te raadplegen teneinde een goed inzicht te verkrijgen over de staat van onderhoud.
Deze informatie is door ons, Tijs & Cyril Makelaardij met de nodige zorgvuldigheid samengesteld. Onzerzijds wordt echter geen enkele aansprakelijkheid aanvaard voor enige onvolledigheid, onjuist of anderszins, dan wel de gevolgen daarvan. Alle opgegeven maten en oppervlakten zijn indicatief. Van toepassing zijn de NVM voorwaarden.