Moderne, vrijstaande villa met 5 slaapkamers en een mooie uitbouw (tuinkamer/werkkamer) op de begane grond. Dit zeer ruime woonhuis aan de Bellefleurstraat wordt aan drie kanten omringd door een fraai aangelegde, uitstekend onderhouden tuin met een goede zonligging.
Moderne, vrijstaande villa met 5 slaapkamers en een mooie uitbouw (tuinkamer/werkkamer) op de begane grond. Dit zeer ruime woonhuis aan de Bellefleurstraat wordt aan drie kanten omringd door een fraai aangelegde, uitstekend onderhouden tuin met een goede zonligging.
Typering:
U vindt deze woning op een prachtige plek in Bunde, in de bocht van de Bellefleurstraat. Er zijn twee basisscholen in de nabijheid en het buitengebied, richting Meerssenhoven en Vaeshartelt, bevindt zich op loopafstand. In Bunde zijn diverse winkel- en sportvoorzieningen, terwijl de bereikbaarheid van de op- en afritten van de autosnelwegen A2 (Eindhoven/Luik) en A79 (Maastricht/Heerlen-Aken) goed is. Het populaire dorp heeft een mooie ligging op circa 7 kilometer van Maastricht. Door middel van trein- en busverbindingen zijn Maastricht (Randwyck), Beek-Elsloo, Geleen-Sittard en Roermond goed bereikbaar.
Begane grond:
Links van de oprit is de overdekte entree van deze vrijstaande villa, die wordt gekenmerkt door een goede indeling en optimaal tuincontact. In de ontvangsthal ziet u de hardhouten trap, meterkast en de toiletruimte met fonteintje.
De speels ingedeelde woonkamer (ca. 45 m2) biedt aan drie kanten mooi
uitzicht naar de tuin. Het zitgedeelte is aan de voorzijde en het eetgedeelte bevindt zich op een paar stappen van de keuken. Een brede schuifpui geeft toegang tot het overdekte terras en de achtertuin.
Verrassend is de tuinkamer (ca. 17,8 m2), te bereiken vanuit de woonkamer. Nu is deze kamer ingericht als tweede zitkamer en hobbyruimte, maar een invulling als speelkamer of werkkamer is ook mogelijk. Er ligt, net als in de woonkamer, parket op de vloer en het uitzicht naar de tuin is fraai.
Aan de achterzijde zijn de keuken (ca. 8,5 m2) en de bijkeuken (ca. 8,5 m2). In de keuken valt je oog op het hoekkozijn en de uitgebreide keukenopstelling, met alle benodigde inbouwapparatuur: een gaskookplaat, afzuigkap, vaatwasser, koelkast en een combimagnetron. De bijkeuken met de opstelling van de wasapparatuur geeft onder andere toegang tot de garage (ca. 20,6 m2) met een lichte tegelvloer.
Tuin:
Deze villa wordt aan drie kanten omringd door een fraai aangelegde, goed onderhouden tuin. Deze brede tuin is gesitueerd op het zuiden en de achtertuin op het westen. In de achtertuin ziet u niet alleen een grote variatie aan beplanting, maar ook een waterornament en mooie buitenverlichting. Ter hoogte van de bijkeuken is een berging met overkapping gebouwd, voor fietsen, tuingereedschap en andere spullen.
In de zijtuin zorgen vier prachtige bomen voor fijne schaduw, zowel in de tuin als in de woonkamer en tuinkamer. Op de oprit is parkeergelegenheid voor meerdere auto’s, met de mogelijkheid om twee auto’s naast elkaar te parkeren.
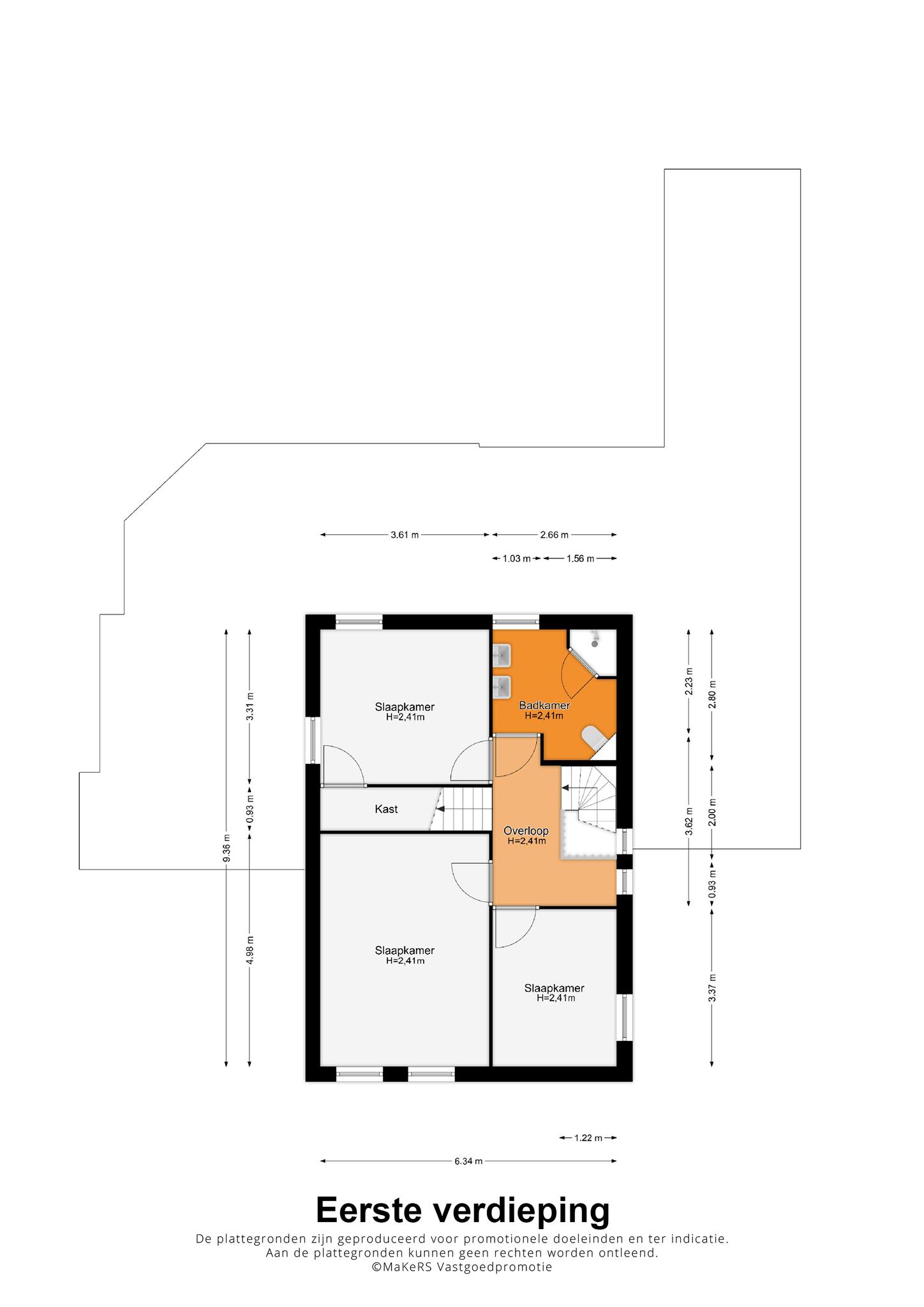
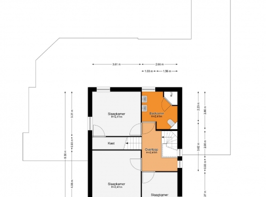
Eerste verdieping:
Heeft u beneden alles bewonderd, dan is het tijd om naar boven te gaan. Twee ramen in de zijgevel zorgen voor veel lichtinval op de overloop, waar u ook de vaste trap naar de tweede verdieping ziet.
In totaal zijn er drie slaapkamers op deze verdieping, waarvan twee aan de voorzijde. Slaapkamer I (ca. 4,98 x 3,61) met airconditioning (koelen en verwarmen) is in gebruik als master bedroom en slaapkamer II (ca. 3,37 x 2,66) als werkkamer. Aan de achterzijde is slaapkamer III (ca. 3,61 x 3,31) met een inbouwkast onder de trap.
Naast slaapkamer III is de ruime badkamer (ca. 2,80/2,23 x 2,66) met een douche, wandcloset, designradiator en een dubbele wastafel. Twee halfhoge kasten bieden praktische bergruimte en boven de wastafels ziet u een grote spiegel en een glazen planchet.
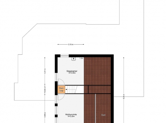
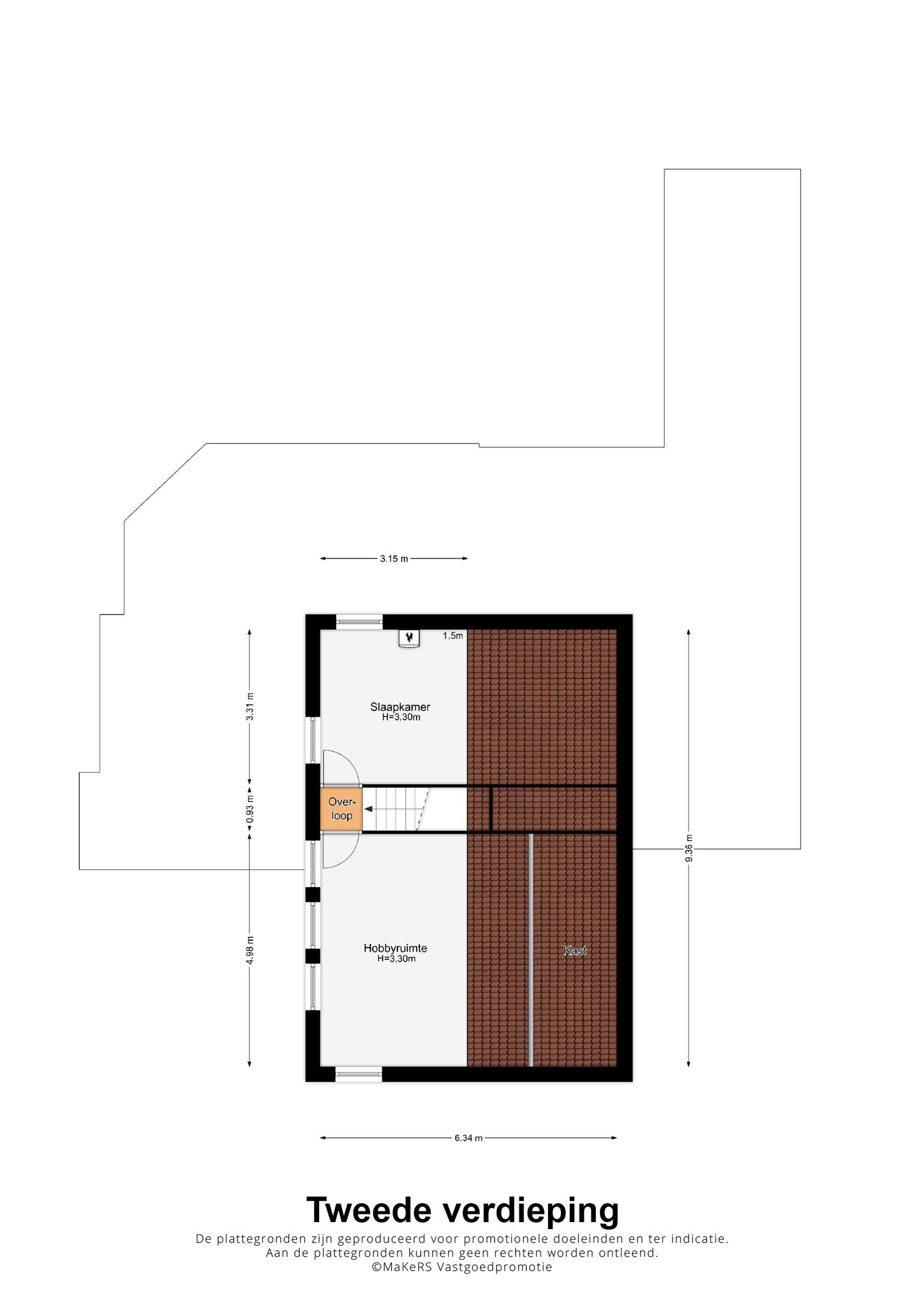
Tweede verdieping:
Een vaste trap geeft toegang tot de tweede verdieping, waar nog twee slaapkamers zijn. Het lessenaarsdak met hoge nok zorgt voor kamers die heel ruimtelijk ogen.
Slaapkamer IV (ca. 3,31 x 3,15) bevindt zich aan de achterzijde. In deze kamer is de opstelling van de HR-ketel (Intergas, eigendom). Aan de voorzijde is slaapkamer V (ca. 4,98 x 3,15), ingericht als hobbyruimte, met een inbouwkast in de schuinte van het dak.
Algemeen:
Bouwjaar: 1999
Gebruiksoppervlakte wonen: circa 183 m2, inhoud circa 734 m3
Dak-, spouwmuur- en vloerisolatie
Houten kozijnen met dubbel glas
Energielabel: B
Aanvaarding: i.o. overleg
Ter bescherming van de belangen van zowel koper als verkoper, wordt uitdrukkelijk gesteld dat een koopovereenkomst met betrekking tot deze onroerende zaak eerst dan tot stand komt nadat koper en verkoper de koopovereenkomst hebben getekend (“schriftelijkheidsvereiste”).
De termijn die wordt opgenomen voor eventuele (overeengekomen) ontbindende voorwaarden (bv. Financiering) is in de regel 4 tot 6 weken na het sluiten van de mondelinge wilsovereenkomst.
De waarborgsom/bankgarantie is 10% van de koopsom. De koper dient deze 3 dagen ná het vervallen van de ontbindende voorwaarden bij de desbetreffende notaris te deponeren.
Koper is te allen tijde gerechtigd voor eigen rekening een bouwkundige keuring te (laten) verrichten dan wel andere adviseurs te raadplegen teneinde een goed inzicht te verkrijgen over de staat van onderhoud.
Deze informatie is door ons, Tijs & Cyril Makelaardij met de nodige zorgvuldigheid samengesteld. Onzerzijds wordt echter geen enkele aansprakelijkheid aanvaard voor enige onvolledigheid, onjuist of anderszins, dan wel de gevolgen daarvan. Alle opgegeven maten en oppervlakten zijn indicatief. Van toepassing zijn de NVM voorwaarden.