Vraagprijs € 285.000,- k.k.
Uitgebouwde, instapklare hoekwoning met 3 slaapkamers en een ruime tuin.
Uitgebouwde, instapklare hoekwoning met 3 slaapkamers en een ruime tuin.
In het Houserveld, een kindvriendelijke wijk aan de noordkant van Brunssum, staat deze fraaie hoekwoning met verrassend veel ruimte en een ruime tuin op het oosten. Deze instapklare woning heeft een eigen achterom, er liggen 8 zonnepanelen op het dak en de kunststof kozijnen zijn voorzien van HR++ glas. In totaal zijn er 3 slaapkamers, waarvan een met een grote dakkapel en airco. De badkamer, met een ligbad en een luxe douche, en de keuken met eiland zorgen ervoor dat het u aan niets ontbreekt.
Via de gemeente Brunssum is een starterslening mogelijk, wat deze woning extra aantrekkelijk maakt voor starters op de woningmarkt.
Typering:
Na een paar minuten staat u bij de voetbalvelden van BSV en het centrum van Brunssum is op loop-/fietsafstand. Hier vindt u supermarkten, winkels en diverse (afhaal)restaurants. Voor natuurliefhebbers is de ligging ten opzichte van de Schinveldse Bossen en de Brunssummerheide een groot pluspunt. Er is een goede verbinding met de Parkstadring en de N274, richting Schinveld en Gangelt.
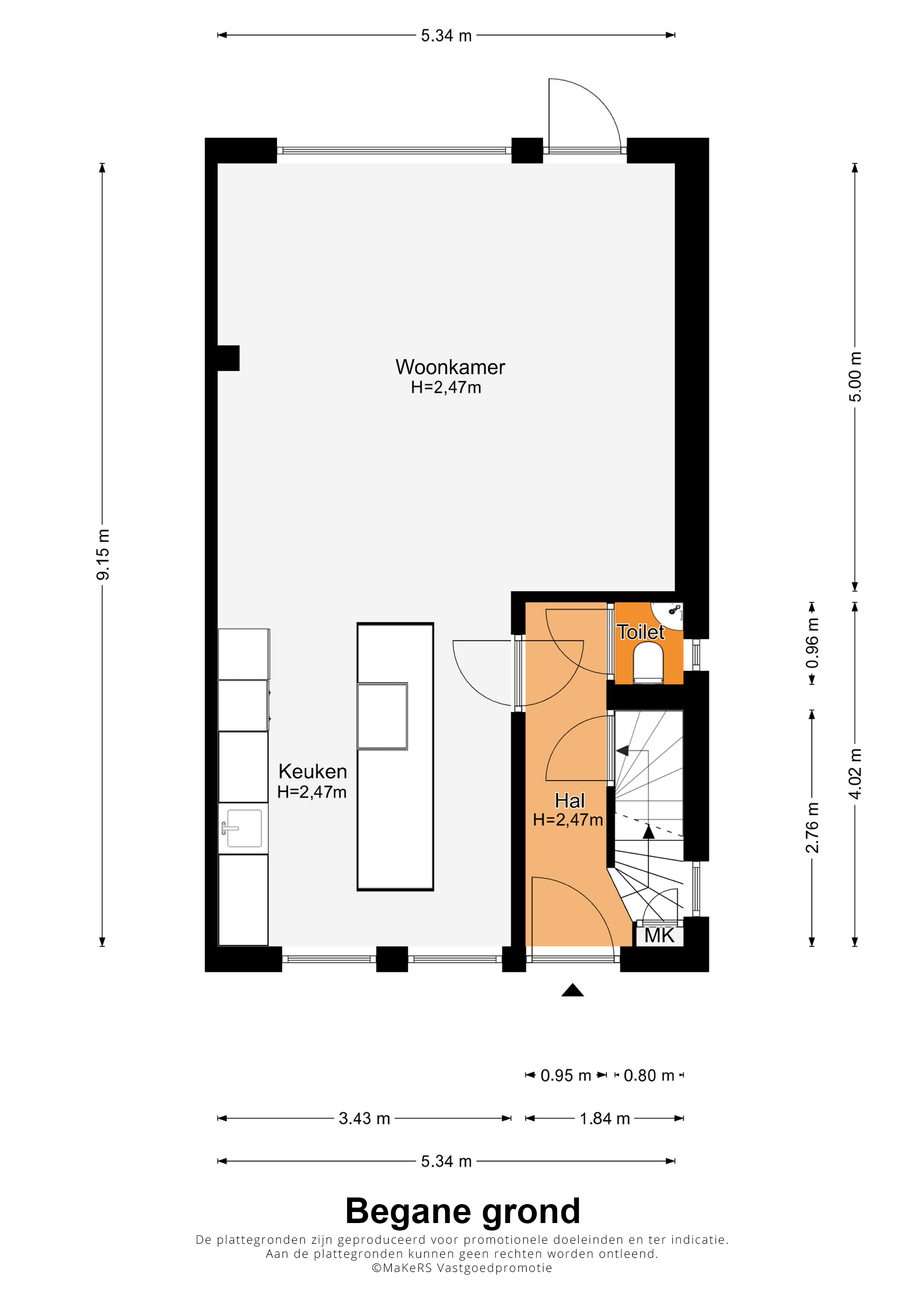
Indeling:
Souterrain:
Vanuit de hal is er toegang tot een kelder (circa 3,65 x 1,89), met de opstelling van de wasmachine en droger. De kelder heeft een hoogte van circa 1,85 meter.
Begane grond:
Niet alleen de kozijnen en ramen, maar ook de voordeur is vernieuwd. Deze fraaie deur geeft toegang tot de fraaie hal (circa 4,02 x 1,84) met de meterkast en de toiletruimte, die is ingedeeld met een wandcloset en een fonteintje. De stijlvolle tegelvloer met vloerverwarming ligt op de hele begane grond. Deze vloer past goed bij de binnendeuren en het strakke stucwerk.
Een zwarte taatsdeur verbindt de hal met de keuken (circa 4,02 x 3,43), die in open verbinding met de uitgebouwde woonkamer (circa 5,34 x 5,00) staat. Door de grote ramen valt veel licht naar binnen en de strakke afwerking zorgt ervoor dat u al snel kan beginnen met inrichten.
In de keuken staat een royale opstelling met een kookeiland, uitgevoerd in een mooie kleurencombinatie. Aan bergruimte is geen gebrek en de inductie kookplaat (2025), afzuigkap, combi-oven, vaatwasser en koelkast zijn ingebouwd.
Vanuit de uitgebouwde woonkamer is de diepe achtertuin te bereiken, verdeeld over twee niveaus. Het grote terras biedt genoeg plek om buiten te zitten en via een trap van enkele treden is het tweede deel van de tuin te bereiken. Hier is het tweede terras, kinderen hebben ruimte om te spelen en er staat een groot tuinhuis (circa 3,86 x 2,67).
De tuin is niet alleen via het pad langs het huis te betreden, maar ook via een poort achter de berging die uitkomt op een pad dat achter de tuinen loopt. Hiermee is de tuin ook praktisch bereikbaar met bijvoorbeeld fietsen of tuinspullen.
Rechts van het woonhuis is een breed pad, afgesloten met een poort. Via hier bereikt u de openbare weg en de voortuin, met gras en lage beplanting.
Eerste verdieping:
Vanaf de royale overloop heeft u toegang tot twee slaapkamers en de moderne badkamer. Aan de achterzijde is de moderne badkamer (circa 3,56/2,69 x 1,84) met een ligbad, een luxe inloopdouche en een dubbel wastafelmeubel met grote spiegel. Een van de opvallende elementen is de douche met een grote douchekop, een handdouche en wandstralen.
Aan de voorzijde is slaapkamer I (circa 3,48 x 2,74) en slaapkamer II (circa 3,48 x 3,71) bevindt zich aan de achterzijde. Beide kamers zijn in gebruik als kinderkamer, met laminaat op de vloer en mooie kleuren op de wanden.
Tweede verdieping:
Een vaste trap geeft toegang tot de tweede verdieping, met een grote dakkapel aan de achterzijde. Hier bevindt zich slaapkamer III (circa 4,60 x 3,00) met airco (koelen/verwarmen) en praktische bergruimte in de schuinten van het dak. In een kast is de opstelling van de HR-ketel (Nefit Topline, 2009, eigendom) en een deel van deze kamer is in gebruik als thuiswerkplek.
Algemeen:
Bouwjaar: 1948
Perceeloppervlakte: 235 m2
Gebruiksoppervlakte wonen: circa 104 m2, inhoud: circa 373 m3
Aanbouw en een grote dakkapel aan de achterzijde
Verwarming en warm water via een HR-ketel (Nefit Topline, 2009, eigendom), brander vernieuwd in 2019
Vloerverwarming op de begane grond en in de badkamer
Airco-unit (koelen en verwarmen) op de tweede verdieping
Kunststof kozijnen met HR++ glas
Spouwmuurisolatie
8 zonnepanelen van 415 Wp per stuk, geplaatst in 2023 (westkant)
Energielabel: B
Asbest: ja
Aanvaarding: in onderling overleg
Ter bescherming van de belangen van zowel koper als verkoper, wordt uitdrukkelijk gesteld dat een koopovereenkomst met betrekking tot deze onroerende zaak eerst dan tot stand komt nadat koper en verkoper de koopovereenkomst hebben getekend (“schriftelijkheidsvereiste”).
De termijn die wordt opgenomen voor eventuele (overeengekomen) ontbindende voorwaarden (bv. Financiering) is in de regel 4 tot 6 weken na het sluiten van de mondelinge wilsovereenkomst.
De waarborgsom/bankgarantie is 10% van de koopsom. De koper dient deze 3 dagen ná het vervallen van de ontbindende voorwaarden bij de desbetreffende notaris te deponeren. Koper is te allen tijde gerechtigd voor eigen rekening een bouwkundige keuring te (laten) verrichten dan wel andere adviseurs te raadplegen teneinde een goed inzicht te verkrijgen over de staat van onderhoud.
Deze informatie is door ons Tijs & Cyril Makelaardij met de nodige zorgvuldigheid samengesteld.
Onzerzijds wordt echter geen enkele aansprakelijkheid aanvaard voor enige onvolledigheid, onjuist of anderszins, dan wel de gevolgen daarvan. Alle opgegeven maten en oppervlakten zijn indicatief. Van toepassing zijn de NVM voorwaarden.