€ 475.000,- k.k.
Fraaie, gerenoveerde jaren 50 villa in het centrum van Brunssum. Aan de Dr. Poelsstraat, een rustige eenrichtingsstraat tussen de Lindestraat en de Hokkelenbergstraat, staat deze opvallende jaren 50 villa onder architectuur gebouwd en is voorzien van twee garages en diverse multifunctionele ruimtes in het souterrain. Op de begane grond zijn de royale woon-/eetkamer en de keuken, beiden met prachtig uitzicht naar de tuin. De tweede verdieping met drie slaapkamers, de badkamer en een separaat toilet maakt deze villa meer dan af.
Fraaie, gerenoveerde jaren 50 villa in het centrum van Brunssum. Aan de Dr. Poelsstraat, een rustige eenrichtingsstraat tussen de Lindestraat en de Hokkelenbergstraat, staat deze opvallende jaren 50 villa onder architectuur gebouwd en is voorzien van twee garages en diverse multifunctionele ruimtes in het souterrain. Op de begane grond zijn de royale woon-/eetkamer en de keuken, beiden met prachtig uitzicht naar de tuin. De tweede verdieping met drie slaapkamers, de badkamer en een separaat toilet maakt deze villa meer dan af.
Typering:
Hier woont u op een hele centrale plek in Brunssum, op loopafstand van het centrum van Brunssum en het Vijverpark. De achtertuin grenst aan Buurtplein ’t Poeltje, maar zelf ziet u alleen hoge bomen en fraai groen. De N276 zorgt voor een goede verbinding met Geleen/Sittard en de N300, beter bekend als de Parkstadring, staat in verbinding met de A76. Brunssum geniet een grote bekendheid vanwege de Brunssummerheide waar u kunt wandelen, hardlopen en mountainbiken.
INDELING:
Souterrain:
De eerste garage (circa 5,81 x 3,82) is zich aan de voorzijde. Hier bevindt zich de cv-ruimte, met de opstelling van de HR-ketel (Nefit, 2015, eigendom). Aan de rechterzijde is de tweede garage (circa 8,47 x 2,38), te bereiken vanuit de voor- en achtertuin. Verder zijn er een provisiekelder (circa 4,38 x 2,55) en een wasruimte (circa 3,47 x 2,74), beiden aan de achterzijde. In de kelderruimte (circa 3,99 x 2,71), aan de linker voorzijde, is de trap naar de begane grond.
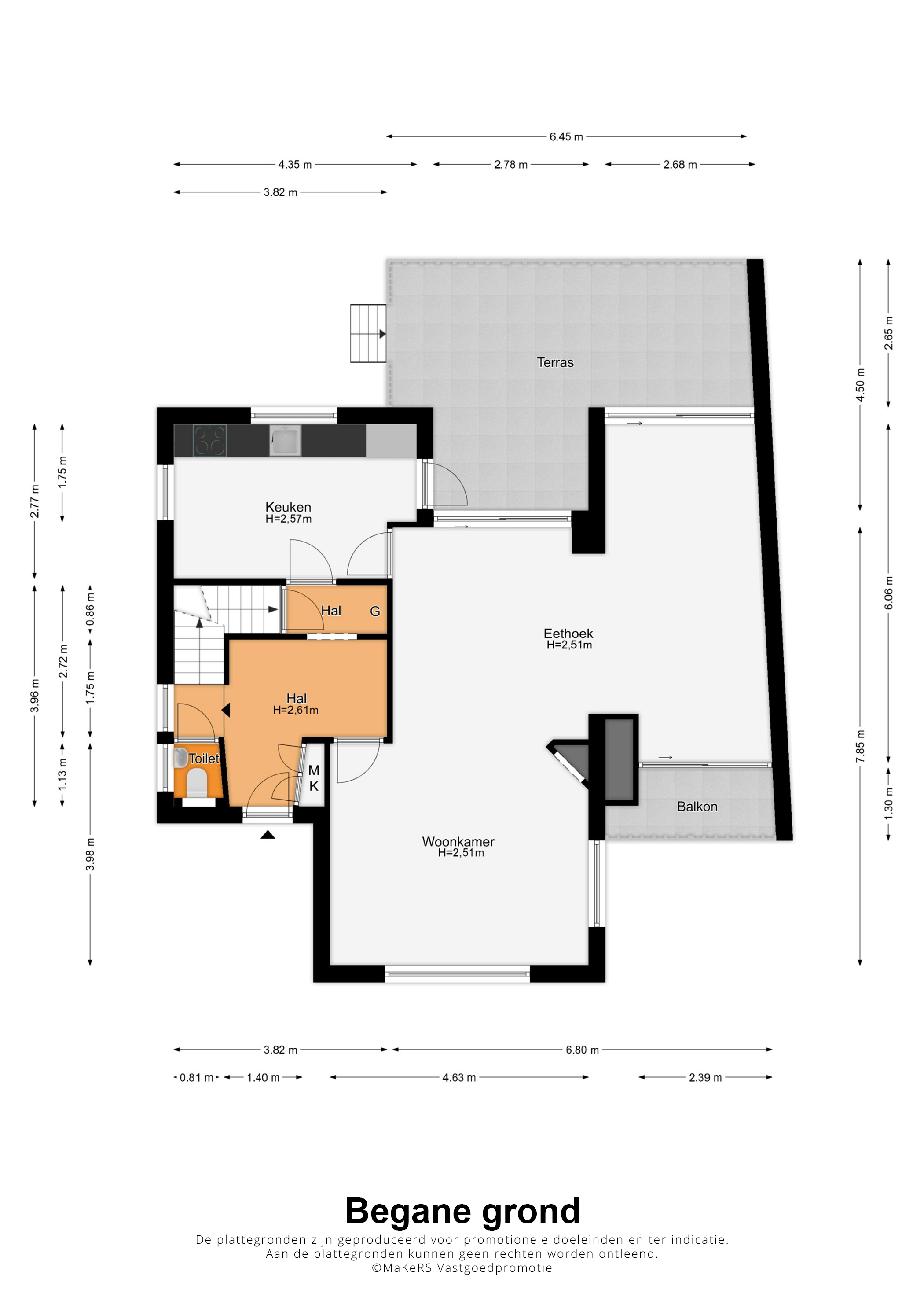
Begane grond:
Via de fraaie buitentrap, met taxus aan twee zijden, loopt u naar de overdekte entree van deze vrijstaande villa. In de hal ziet u de bordestrap naar de eerste verdieping, de meterkast en de garderobe. De marmeren vloer zorgt voor sfeer in de hal en in de toiletruimte is het originele glas in loodraam behouden.
De royale woon-/eetkamer heeft een totale oppervlakte van circa 46 m2, met een parketvloer en grote ramen aan de voor- en achterzijde. Het zitgedeelte is aan de voorzijde, bij de inbouw gashaard, en het eetgedeelte grenst aan de schuifpui naar het terras. Het rechterdeel van de woonkamer, waar de piano staat, grenst aan het balkon aan de voorzijde en het terras aan de achterzijde.
Aan de achterzijde is de dichte keuken (circa 4,35/3,82 x 2,77), met mooi uitzicht naar de tuin. De lange wandopstelling is voorzien van inbouwapparatuur van gerenommeerde merken: een inductie kookplaat, afzuigkap, koelkast, vaatwasser en een combi-oven.
Vanuit de keuken en woon-/eetkamer is het terras te bereiken, met een trap naar de lagergelegen tuin. Er is een eigen achterom en het vele groen bepaalt de sfeer in de achtertuin, gesitueerd op het oosten. De achterzijde van de tuin grenst aan Buurtplein ’t Poeltje, wat een fijne speelplek is voor kinderen. Hoge bomen en beplanting zorgen ervoor dat er veel privacy in de tuin is.
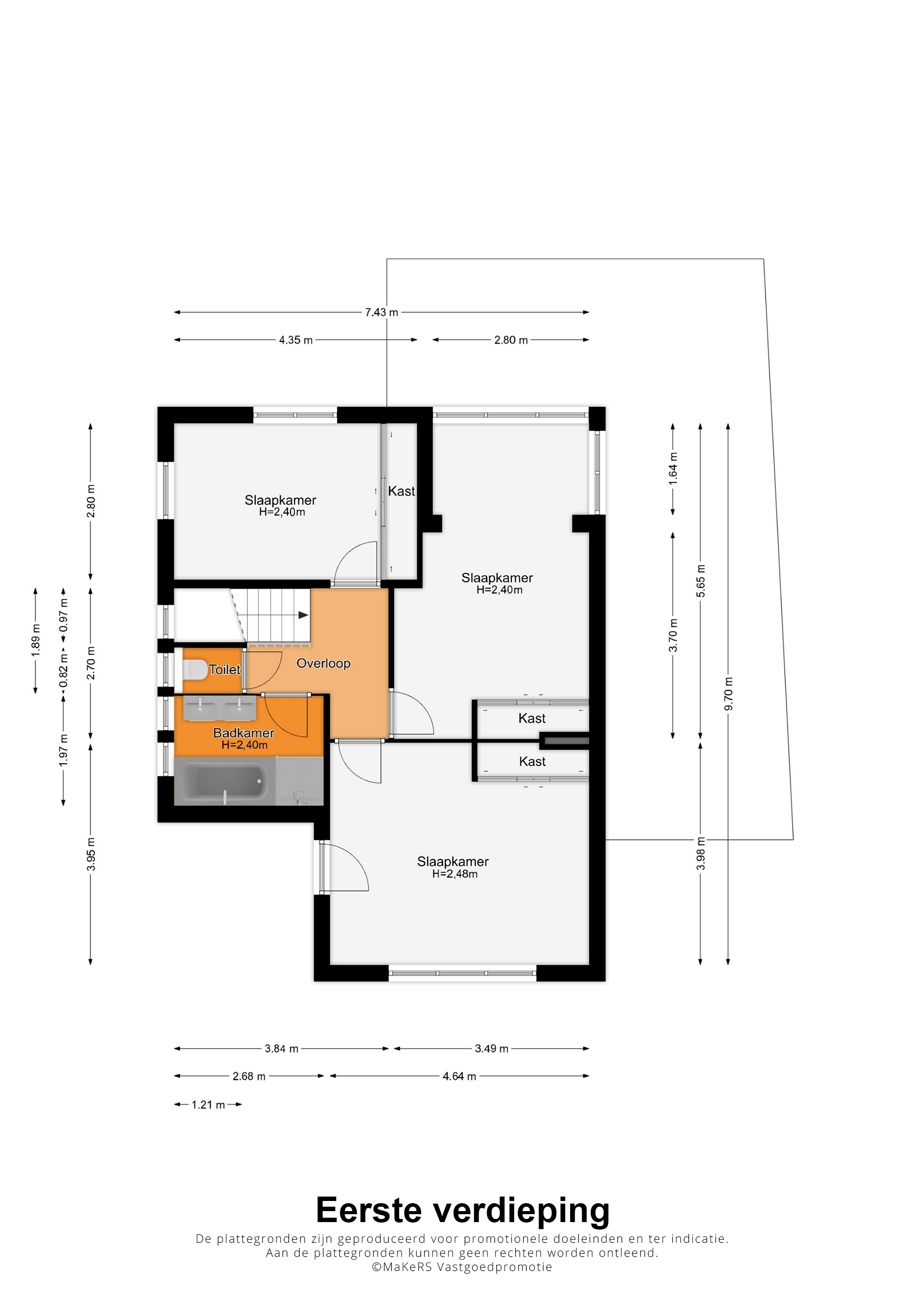
1e verdieping:
Volg de fraaie bordestrap naar de eerste verdieping, waar drie ruime slaapkamers zijn. Slaapkamer I (circa 4,64 x 3,98) is aan de voorzijde en slaapkamer II (circa 5,65 x 2,80) is, net als slaapkamer III (circa 4,35 x 3,49/2,80), aan de achterzijde. In alle slaapkamers ligt een lichtgrijze laminaatvloer en is een grote, vaste garderobekast geplaatst.
De badkamer (circa 2,68 x 1,97) is ingedeeld met een bad, aparte douche en een dubbel wastafelmeubel. U ziet witte wandtegels, zwarte vloertegels, inbouwverlichting in het plafond en twee fraaie glas in loodramen. Naast de badkamer is de toiletruimte, uitgevoerd in dezelfde stijl. En voordat u naar beneden loopt, kijk nog even naar de klassieke parketvloer en het glas in loodraam op de overloop.
Algemeen:
Bouwjaar: 1956
Perceeloppervlakte: 450 m2
Gebruiksoppervlakte wonen: circa 140 m2, inhoud circa 739 m3
Verwarming en warm water via een HR-ketel (Nefit, 2015, eigendom)
Aluminium kozijnen met isolatieglas
Zonnepanelen (8 stuks) geplaatst in 2015
Multifunctioneel souterrain met twee garages, kelderruimtes en een wasruimte
Drie ruime slaapkamers
Royale tuin met een eigen achterom en veel groen
Energielabel: E
Aanvaarding: in overleg
Ter bescherming van de belangen van zowel koper als verkoper, wordt uitdrukkelijk gesteld dat een koopovereenkomst met betrekking tot deze onroerende zaak eerst dan tot stand komt nadat koper en verkoper de koopovereenkomst hebben getekend (“schriftelijkheidsvereiste”).
Indien er in de woning huurtoestellen aanwezig zijn zoals CV-ketel, boiler, zonnepanelen, mechanische ventilatie etc. dan dienen deze door de koper te worden overgenomen.
De termijn die wordt opgenomen voor eventuele (overeengekomen) ontbindende voorwaarden (bv. Financiering) is in de regel 4 tot 6 weken na het sluiten van de mondelinge wilsovereenkomst.
De waarborgsom/bankgarantie is 10% van de koopsom. De koper dient deze 3 dagen ná het vervallen van de ontbindende voorwaarden bij de desbetreffende notaris te deponeren.
Koper is te allen tijde gerechtigd voor eigen rekening een bouwkundige keuring te (laten) verrichten dan wel andere adviseurs te raadplegen teneinde een goed inzicht te verkrijgen over de staat van onderhoud.
Deze informatie is door ons, Tijs & Cyril Makelaardij met de nodige zorgvuldigheid samengesteld. Onzerzijds wordt echter geen enkele aansprakelijkheid aanvaard voor enige onvolledigheid, onjuist of anderszins, dan wel de gevolgen daarvan. Alle opgegeven maten en oppervlakten zijn indicatief. Van toepassing zijn de NVM voorwaarden.