Vraagprijs € 525.000,- k.k.
Vrijstaand en ruim wonen in het hart van Bingelrade, tegenover de kerk. Wat een ruimte en mogelijkheden biedt deze vrijstaande woning aan de Dorpsstraat, in het mooie Bingelrade. In het souterrain zijn de garage en meerdere kelderruimtes, en de eerste verdieping is een meer dan 110 m2 grote ruimte waar meerdere slaapkamers en een badkamer gerealiseerd kunnen worden. De woonkamer, keuken, 3 slaapkamers en de badkamer zijn op de begane grond. Rondom de degelijk gebouwde woning is een ruime tuin, die aan de achterzijde aan een akker grenst.
Vrijstaand en ruim wonen in het hart van Bingelrade, tegenover de kerk. Wat een ruimte en mogelijkheden biedt deze vrijstaande woning aan de Dorpsstraat, in het mooie Bingelrade. In het souterrain zijn de garage en meerdere kelderruimtes, en de eerste verdieping is een meer dan 110 m2 grote ruimte waar meerdere slaapkamers en een badkamer gerealiseerd kunnen worden. De woonkamer, keuken, 3 slaapkamers en de badkamer zijn op de begane grond. Rondom de degelijk gebouwde woning is een ruime tuin, die aan de achterzijde aan een akker grenst.
Typering:
Welkom in Bingelrade, een charmant dorp tussen Brunssum, Schinveld en de grens met Duitsland. Het dorp maakt deel uit van de gemeente Beekdaelen, landelijk en rustig en met steden als Heerlen en Sittard in de nabijheid. De Schinveldse Bossen en het Stammenderbos nodigen uit voor een mooie wandeling door de natuur, en voor paardenliefhebbers biedt deze regio uitstekende mogelijkheden voor een buitenrit. De Buitenring Parkstad en de snelwegen A2/A76 zijn goed bereikbaar, met name via de N276 bij Doenrade.
Souterrain:
Wat een ruimte is er in het souterrain, waarvan u vanaf de straat alleen de garagepoort ziet. De verwarmde garage is circa 4,82 x 3,40/2,60 meter groot, perfect voor de auto en de fietsen. Naast de garage is kelder I (circa 2,39 x 1,87), van waaruit een trap naar de keuken leidt. Aan de voorzijde is kelder II (circa 2,39 x 1,88), en aan de linkerzijde kelder III (circa 3,84 x 1,50) met de opstelling van de HR-ketel (Hesi, 2018, huur). De hoogte van het souterrain is circa 2,30 meter.
Begane grond:
Aan de rechterzijde is de overdekte entree van deze zeer ruime en verrassend ingedeelde woning. In de royale hal ligt een donkere vloer van natuursteen, en ziet u de trap naar de eerste verdieping. Bij de trap zijn twee deuren, naar de toiletruimte met fonteintje en de meterkast.
De woonkamer (circa 7,48 x 3,84) bevindt zich aan de voorzijde, met aan drie kanten uitzicht naar de tuin en een deur naar het overdekte terras. Aan de overzijde van de straat staat de Sint-Lambertuskerk, die vanuit de woonkamer goed zichtbaar is. Naast de woonkamer is de dichte keuken (circa 3,55/3,00 x 2,85), met toegang tot de hal en het souterrain. De keukenopstelling, in een L-vorm, heeft een granieten aanrechtblad en diverse inbouwapparatuur: een inductie kookplaat, afzuigkap, oven, vaatwasser en een koelkast. Een portaal verbindt de keuken met de zijtuin.
Er zijn maar liefst drie slaapkamers op de begane grond, allen aan de achterzijde van de woning. Slaapkamer I (circa 4,01 x 3,54) bevindt zich aan de linker achterzijde, en slaapkamer II met inbouwkast is circa 2,87 x 2,42 meter. Aan de rechter achterzijde is slaapkamer III (circa 3,99 x 2,62), met een inbouwkast, een wastafel en openslaande tuindeuren.
Ook de badkamer (circa 1,96 x 1,86) is op de begane grond. Deze ruimte, origineel uit het bouwjaar van het huis, is ingedeeld met een ligbad en een wastafel. Het is mogelijk om de badkamer te vergroten, richting het naastgelegen portaal.
Rondom de woning is de royale tuin, met veel groen en privacy. De achtertuin, met een groot gazon en mooie bomen, grenst aan een akker. Het terras bij de entree biedt eveneens een fijne plek om buiten te zitten, met uitzicht naar de kerktoren. Bij de hellende tuin is de oprit, met parkeergelegenheid voor meerdere auto’s.
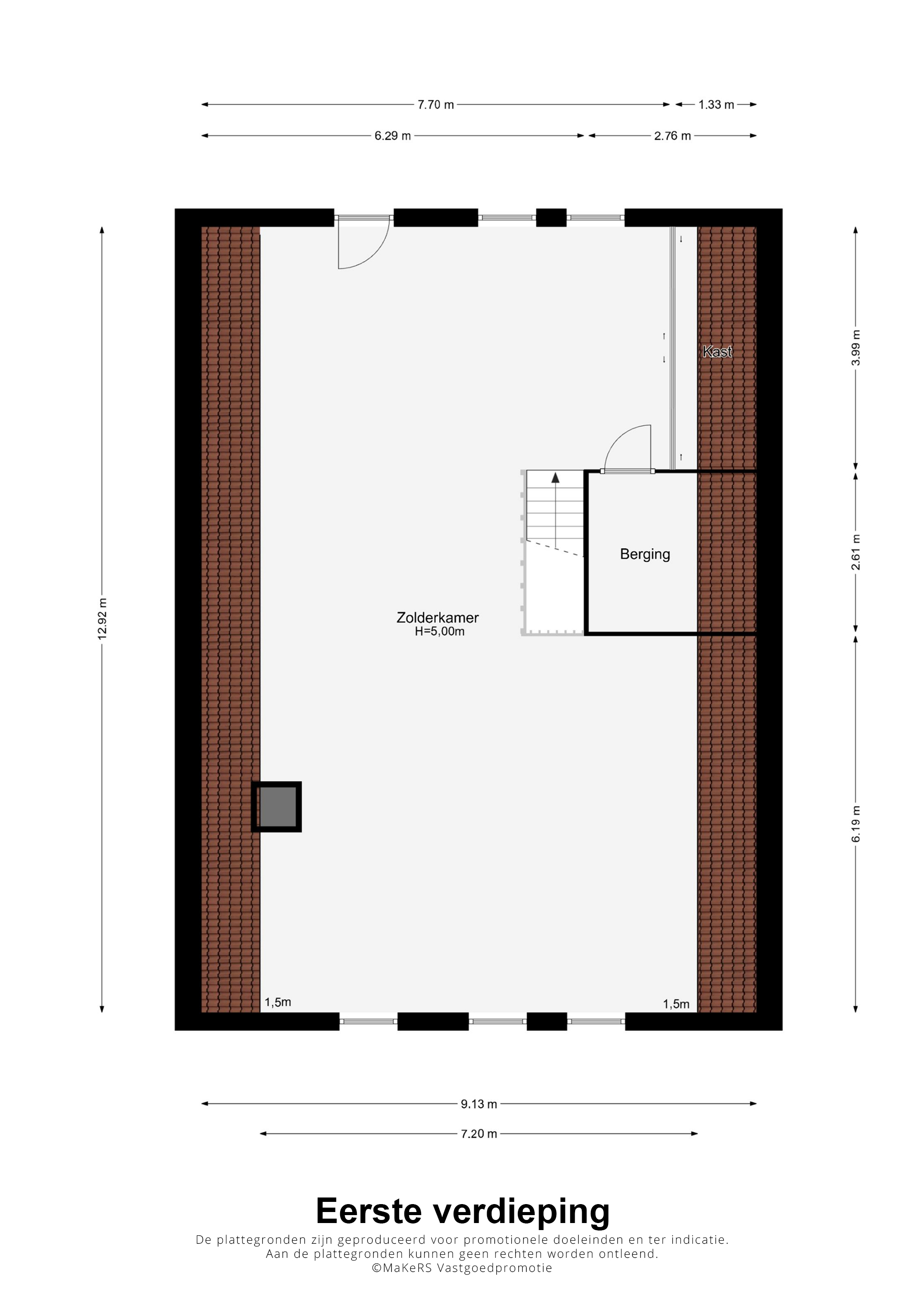
Eerste verdieping:
Via de trap in de hal bereikt u de eerste verdieping, waar een grote ruimte van circa 12,92 x 9,13 meter op een nieuwe invulling wacht. Aan de voor- en achterzijde zijn ramen in de buitengevel geplaatst, en de nokhoogte van circa 5 meter maakt het realiseren van een zolder of een extra verdieping mogelijk. Het dak is geïsoleerd (unidek), verwarming is aanwezig en er ligt een houten vloer op deze verdieping.
Algemeen:
Bouwjaar: 1967
Perceeloppervlakte: 720 m2
Gebruiksoppervlakte wonen: circa 221 m2, inhoud circa 925 m3
Verwarming en warm water via een HR-ketel (Hesi, 2018, huur)
Grotendeels kunststof kozijnen met dubbel glas
Drie slaapkamers en de badkamer op de begane grond
Mogelijkheid voor meerdere slaapkamers en een badkamer op de eerste verdieping
Ruim souterrain met een garage en meerdere kelderruimtes
Energielabel: E
Olietank: Ja
Aanvaarding: in overleg
Ter bescherming van de belangen van zowel koper als verkoper, wordt uitdrukkelijk gesteld dat een koopovereenkomst met betrekking tot deze onroerende zaak eerst dan tot stand komt nadat koper en verkoper de koopovereenkomst hebben getekend (“schriftelijkheidsvereiste”).
Indien er in de woning huurtoestellen aanwezig zijn zoals CV-ketel, boiler, zonnepanelen, mechanische ventilatie etc. dan dienen deze door de koper te worden overgenomen.
De termijn die wordt opgenomen voor eventuele (overeengekomen) ontbindende voorwaarden (bv. Financiering) is in de regel 4 tot 6 weken na het sluiten van de mondelinge wilsovereenkomst.
De waarborgsom/bankgarantie is 10% van de koopsom. De koper dient deze 3 dagen ná het vervallen van de ontbindende voorwaarden bij de desbetreffende notaris te deponeren.
Koper is te allen tijde gerechtigd voor eigen rekening een bouwkundige keuring te (laten) verrichten dan wel andere adviseurs te raadplegen teneinde een goed inzicht te verkrijgen over de staat van onderhoud.
Deze informatie is door ons, Tijs & Cyril Makelaardij met de nodige zorgvuldigheid samengesteld. Onzerzijds wordt echter geen enkele aansprakelijkheid aanvaard voor enige onvolledigheid, onjuist of anderszins, dan wel de gevolgen daarvan. Alle opgegeven maten en oppervlakten zijn indicatief. Van toepassing zijn de NVM voorwaarden.