Vrijstaand, degelijk gebouwde woning met een zonnige tuin en een ruim souterrain. Nooit meer zoeken naar een parkeerplek, want deze woning in Berg en Terblijt heeft een oprit op straatniveau én een ruime garage in het souterrain. Verder zijn er een kelderruimte en een hobbyruimte/werkplaats in het souterrain, klaar voor een nieuwe invulling. In totaal zijn er 4 slaapkamers, perfect voor een gezin, en de zonnige woon-/eetkamer heeft een uitstekende ligging op het zuiden.
Vrijstaand, degelijk gebouwde woning met een zonnige tuin en een ruim souterrain. Nooit meer zoeken naar een parkeerplek, want deze woning in Berg en Terblijt heeft een oprit op straatniveau én een ruime garage in het souterrain. Verder zijn er een kelderruimte en een hobbyruimte/werkplaats in het souterrain, klaar voor een nieuwe invulling. In totaal zijn er 4 slaapkamers, perfect voor een gezin, en de zonnige woon-/eetkamer heeft een uitstekende ligging op het zuiden.
Typering:
In deze gezellige straat, in het hart van het dorp, zijn een supermarkt en een bakker. De basisschool is op loopafstand en verder heeft het dorp een voetbalvereniging, scouting en diverse horecagelegenheden. Met de fiets is het 10 minuten naar Maastricht en er is een goede busverbinding met Maastricht en Valkenburg. Berg en Terblijt wordt omringd door prachtige natuur waar u kunt fietsen en wandelen.
Souterrain:
Via een trap in de hal loopt u naar souterrain. Hier is een verwarmde kelderruimte (circa 3,40 x 3,00), met een tegelvloer en een goede stahoogte. Aan de achterzijde is een royale hobbyruimte/werkplaats (circa 6,20 x 4,40), en de grootste ruimte in het souterrain is de garage (circa 9,00 x 3,50) met een elektrisch bedienbare sectionaalpoort.
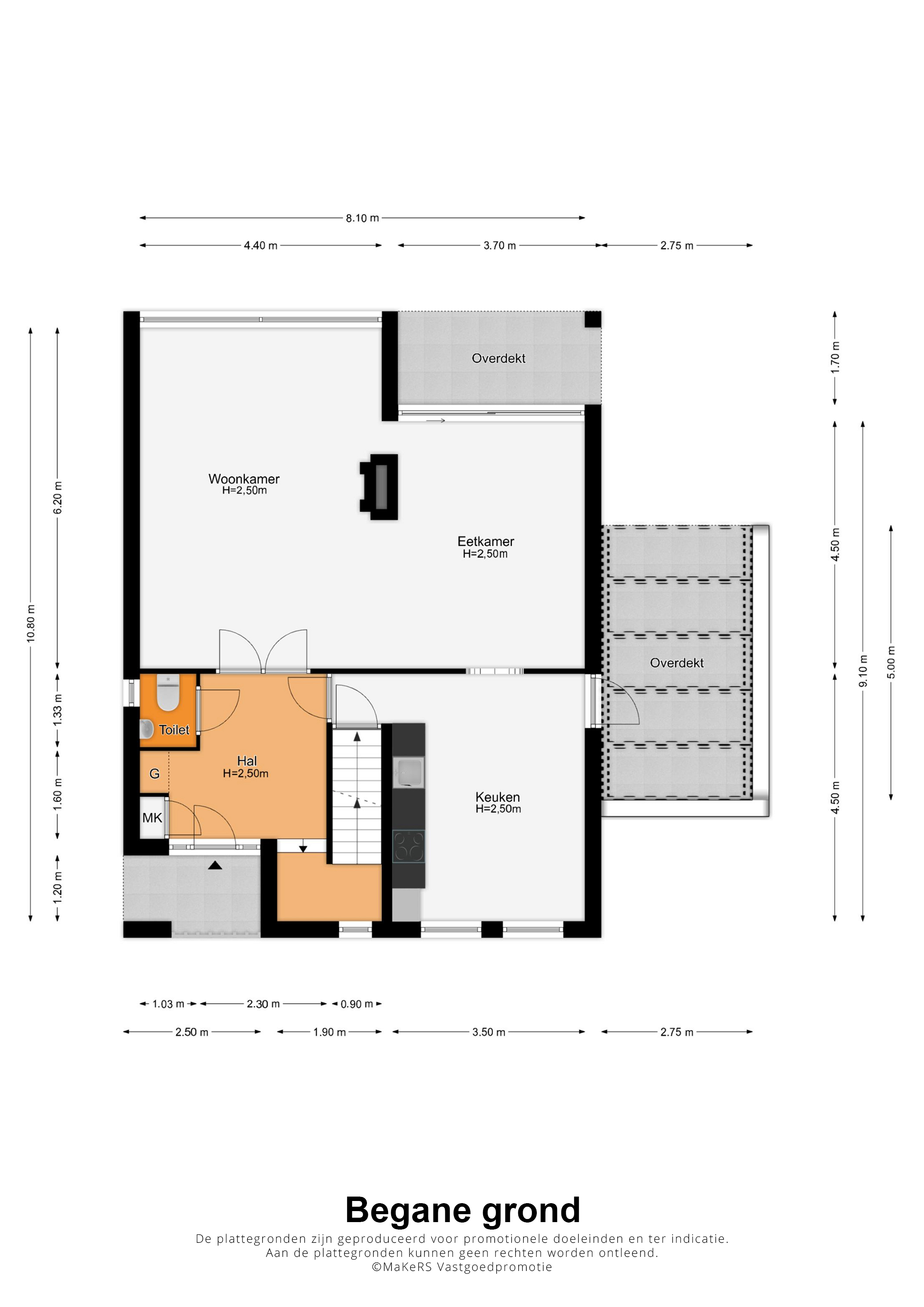
Begane grond:
Via de overdekte entree, aan de linker voorzijde van het woonhuis, is de royale ontvangsthal (circa 3,00 x 2,30) te bereiken. Hier ligt, net als op de hele begane grond, een fraaie marmeren vloer. Links in de hal zijn de meterkast en de toiletruimte met fonteintje.
Dubbele deuren met glas verbinden de hal met de tuingerichte woon-/eetkamer, over de hele breedte van het woonhuis. Met een totale oppervlakte van circa 42,5 m2 is er genoeg plek voor een grote zithoek, de eettafel en andere meubelstukken. Blikvanger is de gemetselde schouw met een gas gestookte kachel, gericht naar het zitgedeelte. Opvallend zijn de grote ramen, van vloer tot plafond, met fraai lichtinval en uitzicht naar de tuin.
Bij het eetgedeelte is een doorgang naar de keuken (circa 4,50 x 3,50), met uitzicht naar de Valkenburgerstraat. Er is genoeg plek voor een eettafel en de lichte wandopstelling heeft een ingebouwde keramische kookplaat, afzuigkap, combi-oven en een koelkast.
Dit degelijk gebouwde woonhuis wordt omringd door een royale tuin, met de diepe achtertuin op het zuiden. Bij het eetgedeelte in de woonkamer is een schuifpui naar een overdekt terras van circa 3,70 x 1,70), en vanuit de keuken is een overdekt terras (circa 5,00 x 2,75) aan de westkant te bereiken. En als u door de achtertuin loopt, ziet u een houten berging (circa 3,95 x 2,60). Perfect voor het tuingereedschap!
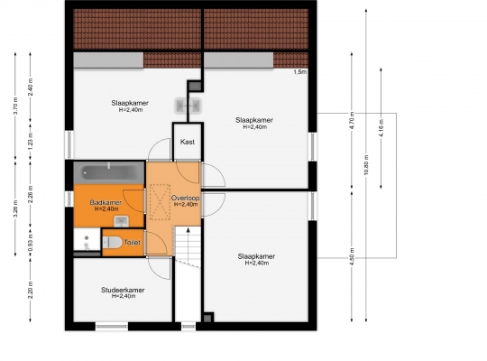
Eerste verdieping:
Volg de fraaie bordestrap, vanuit de hal op de begane grond naar de overloop op de eerste verdieping. Vanaf hier heeft u toegang tot vier slaapkamers, de badkamer, inbouwkast en een separaat toilet.
Slaapkamer I (circa 14 m2) en slaapkamer II (circa 17 m2), beiden met een wastafel, zijn aan de achterzijde. Deze kamers hebben lichtinval vanaf de zuidkant, en mooi uitzicht naar de tuin. Aan de voorzijde zijn slaapkamer III (circa 16 m2) en slaapkamer IV (circa 7,5 m2). U ziet vaste kasten, een maatwerk hoekbureau en in alle kamers ligt laminaat op de vloer.
In de badkamer (circa 3,26/2,26 x 2,43) zijn de wand- en vloertegels uitgevoerd in marmer. Erg fijn is het hoge raam in de zijgevel, en de ruimte is ingedeeld met een ligbad, aparte douche en een wastafel.
Zolder:
In de nok van het woonhuis is een dubbele zolder van totaal circa 8,00 x 1,80 meter (gemeten vanaf 1,50 meter hoogte). Hier is de opstelling van de HR-ketel (2022, eigendom) en de zonneboiler.
Algemeen:
Bouwjaar: 1989
Perceeloppervlakte: 647 m2
Gebruiksoppervlakte wonen: circa 229 m2, inhoud circa 833 m3
Parkeergelegenheid op eigen terrein (oprit en garage)
Verwarming via een HR-ketel (2022, eigendom), warm water via een zonneboiler
Kunststof kozijnen met isolatieglas
11 zonnepanelen, geplaatst in 2011
Zeer ruime tuin met een goede zonligging (achterzijde zuid)
Asbest: niet bekend
Energielabel: B
Aanvaarding: 1 mei 2026
Ter bescherming van de belangen van zowel koper als verkoper, wordt uitdrukkelijk gesteld dat een koopovereenkomst met betrekking tot deze onroerende zaak eerst dan tot stand komt nadat koper en verkoper de koopovereenkomst hebben getekend (“schriftelijkheidsvereiste”).
Indien er in de woning huurtoestellen aanwezig zijn zoals CV-ketel, boiler, zonnepanelen, mechanische ventilatie etc. dan dienen deze door de koper te worden overgenomen.
De termijn die wordt opgenomen voor eventuele (overeengekomen) ontbindende voorwaarden (bv. Financiering) is in de regel 4 tot 6 weken na het sluiten van de mondelinge wilsovereenkomst.
De waarborgsom/bankgarantie is 10% van de koopsom. De koper dient deze 3 dagen ná het vervallen van de ontbindende voorwaarden bij de desbetreffende notaris te deponeren.
Koper is te allen tijde gerechtigd voor eigen rekening een bouwkundige keuring te (laten) verrichten dan wel andere adviseurs te raadplegen teneinde een goed inzicht te verkrijgen over de staat van onderhoud.
Deze informatie is door ons, Tijs & Cyril Makelaardij met de nodige zorgvuldigheid samengesteld. Onzerzijds wordt echter geen enkele aansprakelijkheid aanvaard voor enige onvolledigheid, onjuist of anderszins, dan wel de gevolgen daarvan. Alle opgegeven maten en oppervlakten zijn indicatief. Van toepassing zijn de NVM voorwaarden.