Uniek, instapklaar en stijlvol 3-kamerappartement met balkon, tussen Maastricht en Valkenburg. Op een levendige plek in Vilt is de verbouwing van een voormalig café, en later kantoorpand, recent afgerond. Op de bovenste verdieping biedt dit speels ingedeelde 3-kamerappartement met balkon verrassend veel ruimte, sfeer en een goede lichtinval. In het appartement ligt een mooie visgraat pvc-vloer, de moderne keuken is voorzien van inbouwapparatuur en de badkamer heeft de juiste look-and-feel.
Uniek, instapklaar en stijlvol 3-kamerappartement met balkon, tussen Maastricht en Valkenburg. Op een levendige plek in Vilt is de verbouwing van een voormalig café, en later kantoorpand, recent afgerond. Op de bovenste verdieping biedt dit speels ingedeelde 3-kamerappartement met balkon verrassend veel ruimte, sfeer en een goede lichtinval. In het appartement ligt een mooie visgraat pvc-vloer, de moderne keuken is voorzien van inbouwapparatuur en de badkamer heeft de juiste look-and-feel.
Typering:
Voor dagelijkse voorzieningen kunt u terecht in Berg en Terblijt, Margraten, Valkenburg en Maastricht. Iets verder aan de Rijksweg stopt de bus, richting de treinstations van Maastricht en Valkenburg. In de omgeving kunt u eindeloos fietsen, wandelen en genieten van het wisselende heuvellandschap.
Het centrum van Maastricht ligt op circa 9 kilometer afstand, MUMC en Maastricht University op circa 10 kilometer en het centrum van Valkenburg is met de auto slechts een paar 5 minuten.
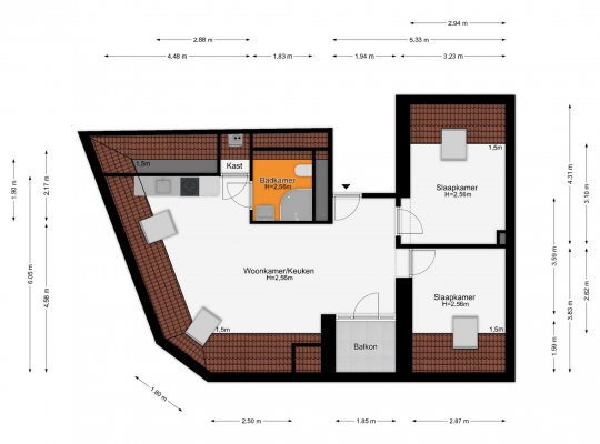
Indeling:
Begane grond:
Aan de kant van de Rijksweg is de gezamenlijke entree, met de brievenbussen en het bellentableau. Vanaf hier loopt u verder naar de hal met de trap die toegang geven tot de bovengelegen verdiepingen. Bij het appartement hoort een privéberging van circa 3 m2.
Tweede verdieping:
Dit appartement, op de bovenste verdieping, is te bereiken met de trap. Aan het einde van de bordestrap is een deur, die direct toegang geeft tot de woonkamer met open keuken (circa 37 m2). De woonkamer is voorzien van twee Velux-dakramen en een kunststof pui met deur geeft toegang tot het balkon (1,59 x 1,85) aan de voorzijde van het gebouw, gelegen aan de Rijksweg.
In de open keuken staat een mooie wandopstelling met een inductie kookplaat, afzuigkap, vaatwasser, combi-magnetron en een koelkast met vriesvak. Rechts van de keuken is een vaste kast, met de opstelling van de HR-ketel (Intergas, 2024/2025, eigendom). De keuken vormt een fraai geheel met de woonkamer, waar genoeg plek is voor een gezellige zithoek en een eettafel.
In het rechterdeel van het appartement zijn twee slaapkamers. Aan de achterzijde is slaapkamer I (circa 4,31 x 2,94 vloeroppervlakte) en slaapkamer II (circa 2,62 x 2,87 vloeroppervlakte) is aan de voorzijde. In beide slaapkamers ligt, net als in de woonkamer en keuken, een mooie pvc-visgraatvloer en zijn beiden voorzien van een Velux-dakraam. De moderne badkamer (circa 1,83 x 2,17) is ingedeeld met een kwartronde douche, wastafelmeubel, wandcloset en de wasmachineaansluiting. Fraaie elementen zijn de kwartronde douchewand, zwarte kranen, hoge handdoekenradiator en de spiegel boven de wastafel.
Algemeen:
Bouwjaar: 1929 (algehele verbouwing afgerond in 2025)
Gebruiksoppervlakte wonen: circa 51 m2, inhoud circa 196 m3
Verwarming en warm water via een HR-ketel (Intergas, 2024/2025, eigendom)
Kunststof kozijnen met HR+++ glas, Veluxramen met dubbel glas
Twee slaapkamers
Balkon aan de voorzijde (Rijksweg)
Maandelijkse VvE-bijdrage: nader te bepalen
Energielabel: A
Aanvaarding: in onderling overleg
Ter bescherming van de belangen van zowel koper als verkoper, wordt uitdrukkelijk gesteld dat een koopovereenkomst met betrekking tot deze onroerende zaak eerst dan tot stand komt nadat koper en verkoper de koopovereenkomst hebben getekend (“schriftelijkheidsvereiste”).
Indien er in de woning huurtoestellen aanwezig zijn zoals CV-ketel, boiler, zonnepanelen, mechanische ventilatie etc. dan dienen deze door de koper te worden overgenomen.
De termijn die wordt opgenomen voor eventuele (overeengekomen) ontbindende voorwaarden (bv. Financiering) is in de regel 4 tot 6 weken na het sluiten van de mondelinge wilsovereenkomst.
De waarborgsom/bankgarantie is 10% van de koopsom. De koper dient deze 3 dagen ná het vervallen van de ontbindende voorwaarden bij de desbetreffende notaris te deponeren.
Koper is te allen tijde gerechtigd voor eigen rekening een bouwkundige keuring te (laten) verrichten dan wel andere adviseurs te raadplegen teneinde een goed inzicht te verkrijgen over de staat van onderhoud.
Deze informatie is door ons, Tijs & Cyril Makelaardij met de nodige zorgvuldigheid samengesteld. Onzerzijds wordt echter geen enkele aansprakelijkheid aanvaard voor enige onvolledigheid, onjuist of anderszins, dan wel de gevolgen daarvan. Alle opgegeven maten en oppervlakten zijn indicatief. Van toepassing zijn de NVM voorwaarden.