Recent gebouwd en direct te bewonen 3-kamerappartement met wintertuin, tussen Maastricht en Valkenburg. Wilt u iedere jaar genieten van de Amstel Gold Race? Op een levendige plek in Vilt is een voormalig café, en later kantoorpand, verbouwt tot appartementen. Bij de appartementen is de bouw afgerond en staat er een kleinschalig, stijlvol appartementengebouw op een mooie plek in het Heuvelland. Dit 3-kamerappartement is gesitueerd op de 1e verdieping, heeft veel lichtinval en een wintertuin op het oosten. Het instapklare appartement heeft een mooie visgraat pvc-vloer, een moderne keuken met inbouwapparatuur, een fraaie badkamer met separaat toilet en recent afgerond schilderwerk.
Recent gebouwd en direct te bewonen 3-kamerappartement met wintertuin, tussen Maastricht en Valkenburg. Wilt u iedere jaar genieten van de Amstel Gold Race? Op een levendige plek in Vilt is een voormalig café, en later kantoorpand, verbouwt tot appartementen. Bij de appartementen is de bouw afgerond en staat er een kleinschalig, stijlvol appartementengebouw op een mooie plek in het Heuvelland. Dit 3-kamerappartement is gesitueerd op de 1e verdieping, heeft veel lichtinval en een wintertuin op het oosten. Het instapklare appartement heeft een mooie visgraat pvc-vloer, een moderne keuken met inbouwapparatuur, een fraaie badkamer met separaat toilet en recent afgerond schilderwerk.
Typering:
Voor dagelijkse voorzieningen kunt u terecht in Berg en Terblijt, Margraten, Valkenburg en Maastricht. Iets verder aan de Rijksweg stopt de bus, richting de treinstations van Maastricht en Valkenburg. In de omgeving kunt u eindeloos fietsen, wandelen en genieten van het wisselende heuvellandschap.
Het centrum van Maastricht ligt op circa 9 kilometer afstand, MUMC en Maastricht University op circa 10 kilometer en het centrum van Valkenburg is met de auto slechts een paar 5 minuten.
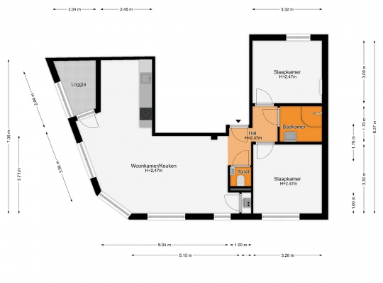
Indeling:
Begane grond:
Aan de kant van de Rijksweg is de gezamenlijke entree, met de brievenbussen en het bellentableau. Vanaf hier loopt u verder naar de hal met de trap die toegang geeft tot de eerste verdieping. Bij het appartement hoort een privéberging van circa 1,97 x 2,13 meter.
Eerste verdieping:
Dit appartement bevindt zich aan de voorzijde van het gebouw, tegenover de trap. Achter de voordeur is een hal, die in open verbinding met de woonkamer staat. De pvc-visgraatvloer ligt in bijna het hele appartement en het schilderwerk is recent gedaan, waardoor u direct kunt verhuizen en inrichten. Recht voor u is de toiletruimte, uitgevoerd in lichte kleuren.
De woonkamer met open keuken heeft een oppervlakte van circa 33 m2, met grote ramen aan twee zijden en een deur naar de wintertuin van circa 4 m2. In de woonkamer is genoeg plek voor een hoekbank, tv-meubel en een eettafel. In een vaste kast is de opstelling van de HR-ketel (Intergas, 2024/2025, eigendom). Het uitzicht is levendig, naar de Rijksweg (Valkenburg-Maastricht) en de Sibberweg richting Margraten.
Via het eetgedeelte loopt u de keuken in, waar een mooie wandopstelling met alle benodigde inbouwapparatuur staat: een inductie kookplaat, afzuigkap, combi-oven, vaatwasser en een koelkast met vriesvak. Er is genoeg plek in de keuken om een bartafel of een grote servieskast neer te zetten.
Dit goed ingedeelde appartement heeft twee slaapkamers. Slaapkamer I (circa 3,30 x 3,28) is aan de voorzijde en slaapkamer II (circa 3,32 x 3,00) bevindt zicht aan de achterzijde. Tussen de slaapkamers is de badkamer met een kwartronde douche, wastafelmeubel en de wasmachineaansluiting. Fraaie elementen zijn de kwartronde douchewand, zwarte kranen, hoge handdoekenradiator en de spiegel boven de wastafel.
Algemeen:
Bouwjaar: 1929 (algehele verbouwing afgerond in 2025)
Gebruiksoppervlakte wonen: circa 70 m2 (inclusief wintertuin), inhoud circa 226 m3
Verwarming en warm water via een HR-ketel (Intergas, 2024/2025, eigendom)
Kunststof kozijnen met HR+++ glas
Twee slaapkamers
Wintertuin op het oosten
Maandelijkse VvE-bijdrage: nader te bepalen
Energielabel: A
Aanvaarding: in onderling overleg
Ter bescherming van de belangen van zowel koper als verkoper, wordt uitdrukkelijk gesteld dat een koopovereenkomst met betrekking tot deze onroerende zaak eerst dan tot stand komt nadat koper en verkoper de koopovereenkomst hebben getekend (“schriftelijkheidsvereiste”).
Indien er in de woning huurtoestellen aanwezig zijn zoals CV-ketel, boiler, zonnepanelen, mechanische ventilatie etc. dan dienen deze door de koper te worden overgenomen.
De termijn die wordt opgenomen voor eventuele (overeengekomen) ontbindende voorwaarden (bv. Financiering) is in de regel 4 tot 6 weken na het sluiten van de mondelinge wilsovereenkomst.
De waarborgsom/bankgarantie is 10% van de koopsom. De koper dient deze 3 dagen ná het vervallen van de ontbindende voorwaarden bij de desbetreffende notaris te deponeren.
Koper is te allen tijde gerechtigd voor eigen rekening een bouwkundige keuring te (laten) verrichten dan wel andere adviseurs te raadplegen teneinde een goed inzicht te verkrijgen over de staat van onderhoud.
Deze informatie is door ons, Tijs & Cyril Makelaardij met de nodige zorgvuldigheid samengesteld. Onzerzijds wordt echter geen enkele aansprakelijkheid aanvaard voor enige onvolledigheid, onjuist of anderszins, dan wel de gevolgen daarvan. Alle opgegeven maten en oppervlakten zijn indicatief. Van toepassing zijn de NVM voorwaarden.