Vraagprijs € 649.000,- k.k.
Prachtige, vrijstaande woning in het Heuvelland, nabij Maastricht en Valkenburg. Op een rustige plek in Berg en Terblijt staat deze instapklare woning met een garage, een dubbele oprit en 4 ruime slaapkamers. De badkamer is fraai, net als de keuken en de royale woonkamer met een ingebouwde houtkachel. Ook de tuin met een overdekt terras, loungeterras en onderhoudsvriendelijke beplanting is een geliefde plek bij jong en oud.
Prachtige, vrijstaande woning in het Heuvelland, nabij Maastricht en Valkenburg. Op een rustige plek in Berg en Terblijt staat deze instapklare woning met een garage, een dubbele oprit en 4 ruime slaapkamers. De badkamer is fraai, net als de keuken en de royale woonkamer met een ingebouwde houtkachel. Ook de tuin met een overdekt terras, loungeterras en onderhoudsvriendelijke beplanting is een geliefde plek bij jong en oud.
Typering:
Dagelijkse voorzieningen als een supermarkt, basisschool, een voetbal- en
een tennisclub zijn op loop-/fietsafstand. In het nabijgelegen Valkenburg zijn uitgebreide winkelvoorzieningen, diverse scholen, vele restaurants en cafés. Maastricht bevindt zich op circa 6 kilometer afstand en, via de Cauberg, is het slechts 3 kilometer naar het centrum van Valkenburg. De snelwegen A2 en A79, richting Eindhoven en Heerlen, zijn goed bereikbaar.
Souterrain:
Vanuit de hal is er toegang tot het souterrain, dat uit drie ruimtes bestaat. In kelder I (circa 3,61 x 3,40) is de trap naar de begane grond, kelder II is circa 3,09 x 3,40 meter en aan de achterzijde is kelder III (circa 3,30 x 1,77). Momenteel is het souterrain in gebruik als berging, provisieruimte en sportruimte.
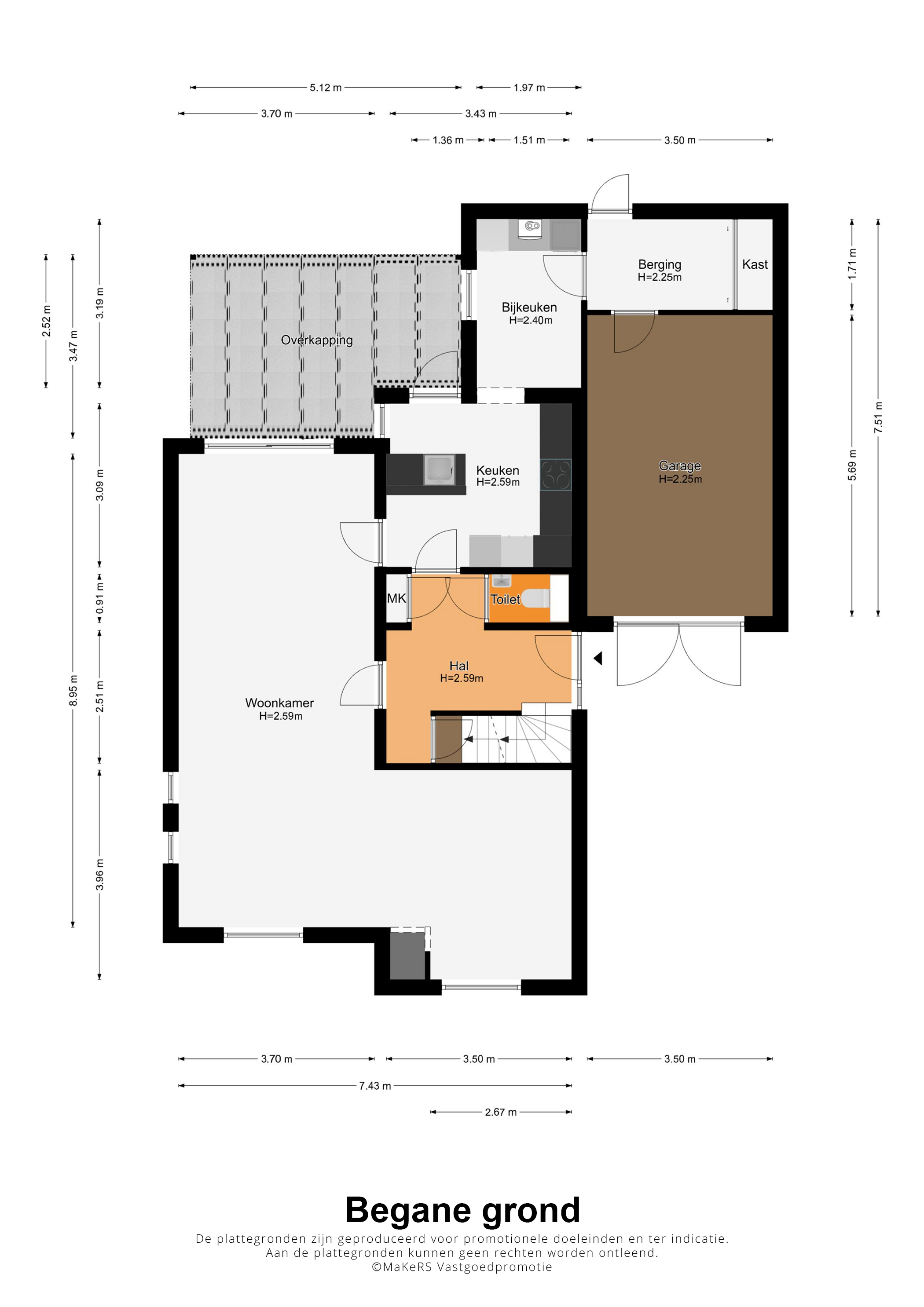
Begane grond:
Aan het einde van de oprit is de overdekte entree, die toegang geeft tot de royale ontvangsthal. Sfeermakers zijn de trapopgang met vide en de granieten vloer, die ook in de toiletruimte, keuken en bijkeuken ligt.
In de hal zijn twee fraaie deuren met glas, die toegang geven tot de woonkamer en de keuken. De speels ingedeelde woonkamer met een stijlvolle parketvloer heeft een oppervlakte van circa 47 m2. Aan de voorzijde is het zitgedeelte, bij de ingebouwde houtkachel en met mooi uitzicht naar de rustige straat. Het eetgedeelte grenst niet alleen aan de keuken, maar ook aan de schuifpui naar het overdekte terras.
De keuken (circa 3,43 x 3,09) is een fantastische plek voor de kookliefhebber. Naast een hoekopstelling is er ook een spoeleiland geplaatst, waardoor de keuken een fijne routing en veel bergruimte heeft. Alle benodigde apparatuur is ingebouwd: een inductie kookplaat, afzuigkap, combi-oven en een koelkast met vriesvak.
Vanuit de keuken is er toegang tot de bijkeuken (circa 3,19 x 1,97), met extra bergruimte in de hoge bovenkasten. In de bijkeuken is ruimte voor de wasmachine, droger, vaatwasser en een koel-/vriescombinatie. Er is een inpandige toegang tot de garage/berging, die uit twee delen van totaal circa 7,51 x 3,50 meter bestaat. Het voorste deel, met dubbele deuren naar de oprit, biedt ruimte aan een auto en de (kinder)fietsen.
Naast de oprit is de mooi aangelegde en onderhoudsvriendelijke voortuin, met grind en gevarieerde beplanting. Aan de linkerzijde van de woning is een tweede oprit (met laadpaal), waardoor er ruime parkeergelegenheid op eigen terrein is. De achtertuin is de ultieme plek voor de levensgenieter, voor kinderen en voor mensen die niet iedere week willen tuinieren. Het overdekte terras met glazen dak is een geliefde plek, net als het zonnige loungeterras in de hoek van de tuin.
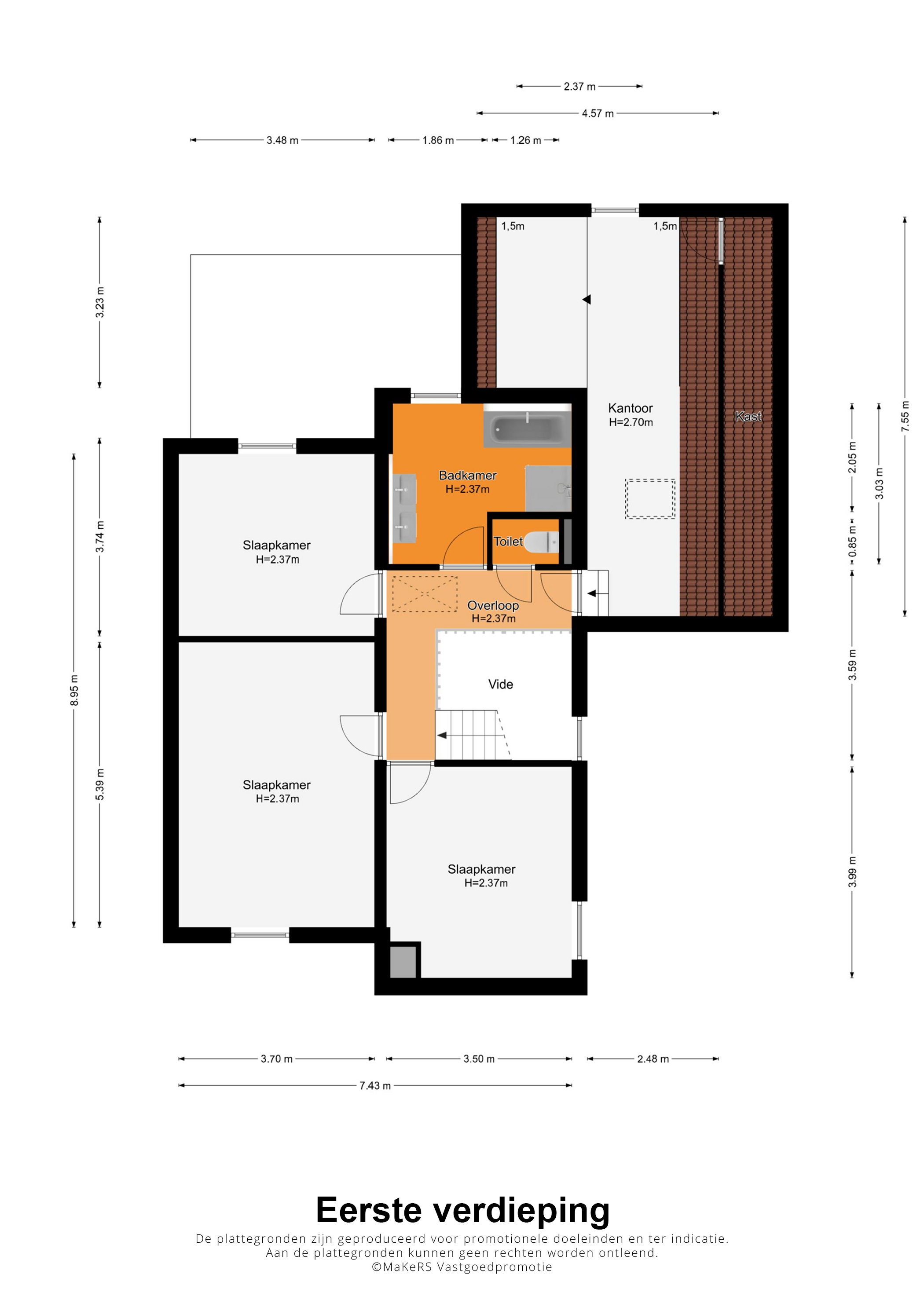
Eerste verdieping:
Vanaf de overloop met vide is er toegang tot vier slaapkamers, de badkamer en een separate toiletruimte. Aan de voorzijde zijn slaapkamer I (circa 3,99 x 3,50), ingericht als kinderkamer, en slaapkamer II (circa 5,39 x 3,70) die de functie van master bedroom heeft. Ook slaapkamer III (circa 3,74 x 3,48) is in gebruik als fraaie kinderkamer. Boven de garage/berging en bijkeuken is slaapkamer IV (circa 25 m2) met een speels hoogteverschil in de vloer.
De badkamer (circa 9 m2) is een prachtige ruimte, uitgevoerd in warme kleuren. U heeft de beschikking over een ligbad, een separate douche, een badmeubel met twee wastafels, een ruime wandkast en een spiegel met verlichting.
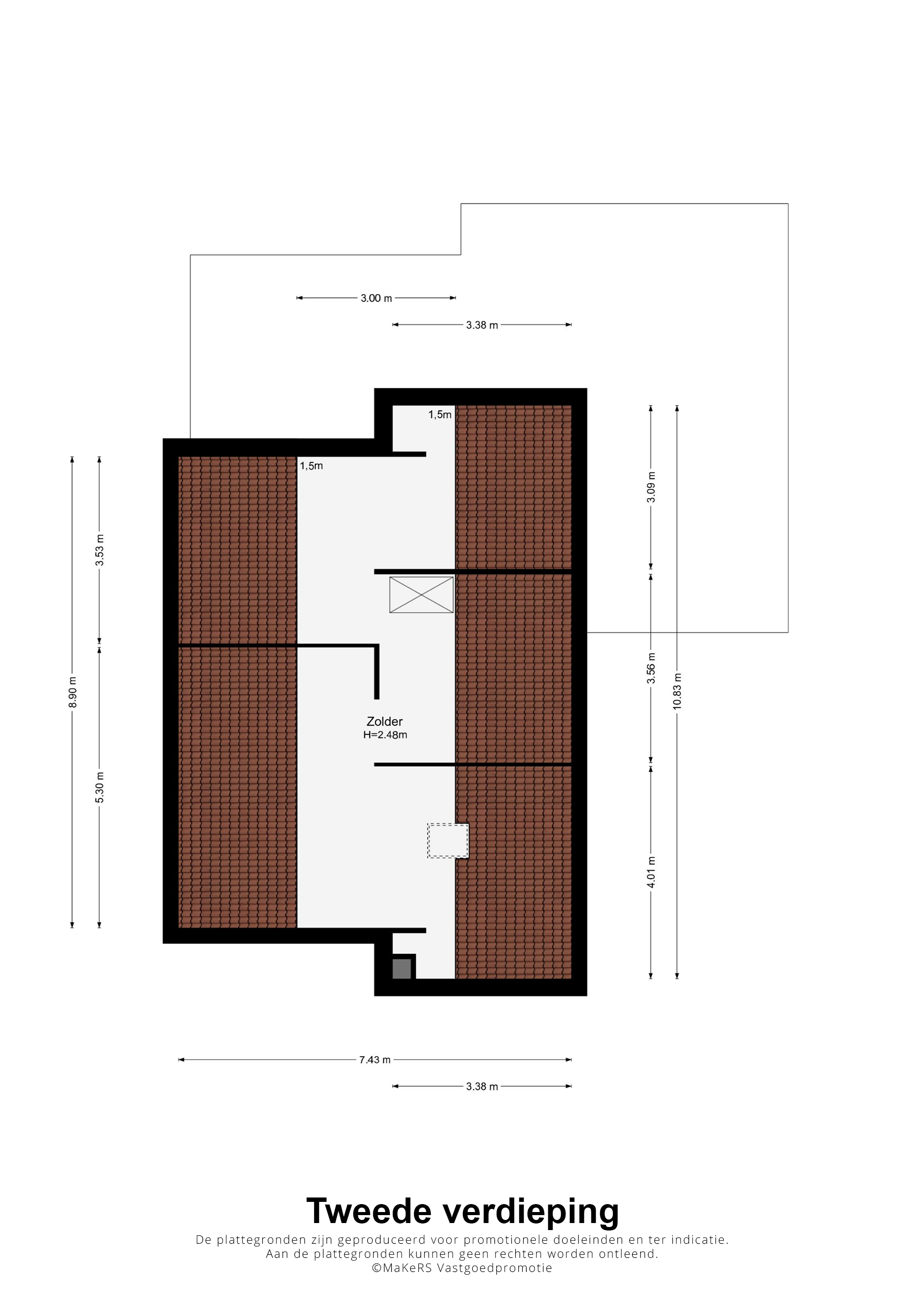
Zolder:
Vanaf de overloop heeft u toegang tot de royale zolder, die uit meerdere delen bestaat.
Algemeen:
Bouwjaar: 1992
Perceeloppervlakte: 478 m2
Gebruiksoppervlakte wonen: circa 175 m2, inhoud circa 908 m3
Verwarming via een HR-ketel (Remeha, 2023, eigendom)
Open haard in de woonkamer
Airco (koelen en verwarmen) op de overloop
14 zonnepanelen van 370 Wp, geplaatst in 2022
Hardhouten kozijnen met dubbel glas
Vier slaapkamers
Dubbele oprit en een garage/berging
Energielabel: B
Aanvaarding: in onderling overleg
Ter bescherming van de belangen van zowel koper als verkoper, wordt uitdrukkelijk gesteld dat een koopovereenkomst met betrekking tot deze onroerende zaak eerst dan tot stand komt nadat koper en verkoper de koopovereenkomst hebben getekend (“schriftelijkheidsvereiste”).
Indien er in de woning huurtoestellen aanwezig zijn zoals CV-ketel, boiler, zonnepanelen, mechanische ventilatie etc. dan dienen deze door de koper te worden overgenomen.
De termijn die wordt opgenomen voor eventuele (overeengekomen) ontbindende voorwaarden (bv. Financiering) is in de regel 4 tot 6 weken na het sluiten van de mondelinge wilsovereenkomst.
De waarborgsom/bankgarantie is 10% van de koopsom. De koper dient deze 3 dagen ná het vervallen van de ontbindende voorwaarden bij de desbetreffende notaris te deponeren.
Koper is te allen tijde gerechtigd voor eigen rekening een bouwkundige keuring te (laten) verrichten dan wel andere adviseurs te raadplegen teneinde een goed inzicht te verkrijgen over de staat van onderhoud.
Deze informatie is door ons, Tijs & Cyril Makelaardij met de nodige zorgvuldigheid samengesteld. Onzerzijds wordt echter geen enkele aansprakelijkheid aanvaard voor enige onvolledigheid, onjuist of anderszins, dan wel de gevolgen daarvan. Alle opgegeven maten en oppervlakten zijn indicatief. Van toepassing zijn de NVM voorwaarden.