Berg en terblijt | Op de Bies 23
Deze vrijstaande bungalow, verscholen achter het groen, staat op een prachtige plek in Berg en Terblijt. Vanaf de straat is deze bungalow met 15 zonnepanelen en een groot souterrain nauwelijks zichtbaar. Naar eigen smaak kunt u deze bungalow verduurzamen, waarna u volop kunt genieten van het wonen in de natuur.
Deze vrijstaande bungalow, verscholen achter het groen, staat op een prachtige plek in Berg en Terblijt. Vanaf de straat is deze bungalow met 15 zonnepanelen en een groot souterrain nauwelijks zichtbaar. Naar eigen smaak kunt u deze bungalow verduurzamen, waarna u volop kunt genieten van het wonen in de natuur.
Deze vrijstaande bungalow, verscholen achter het groen, staat op een prachtige plek in Berg en Terblijt. Vanaf de straat is deze bungalow met 15 zonnepanelen en een groot souterrain nauwelijks zichtbaar. Naar eigen smaak kunt u deze bungalow verduurzamen, waarna u volop kunt genieten van het wonen in de natuur.
Typering:
Deze bungalow staat op een fantastische plek, aan de noordkant van Berg en Terblijt. In de straat komt alleen bestemmingsverkeer en het perceel heeft aan de achterzijde een vrije ligging. Opvallend is de ligging op het midden van het perceel, terwijl omliggende woningen op slechts enkele meters van de openbare weg staan. U loopt zo de prachtige natuur in richting de Curfsgroeve, het Geuldal en Sint Gerlach. Berg en Terblijt heeft een goed voorzieningenniveau met een basisschool, supermarkt, enkele winkels en sportfaciliteiten. Met de fiets en bus zijn Valkenburg en Maastricht goed bereikbaar. Hier woont u op een van de mooiste locaties van het dorp!
Begane grond:
Via de lange oprit, omringd door groen, rijdt u richting de garage. Staat de auto buiten, dan loopt u via de buitentrap naar de entree van deze ruime bungalow. De hal (ca. 3,52 x 2,02) staat in verbinding met de zeer ruime woonkamer (ca. 73 m2). Door de grote ramen, waaronder die van de schuifpui, geniet u volop van het uitzicht naar de tuin. Hier ziet u alleen maar groen en heeft u het gevoel in het bos te wonen.
Naast de woonkamer bevindt zich de L-vormige keuken (ca. 22 m2) met twee lichtkoepels en twee ramen in de zijgevel. Er ligt, net als in de woonkamer, een lichte plavuizen vloer en de lichte hoekopstelling is voorzien van diverse inbouwapparatuur.
In het voorste deel van de bungalow zijn twee slaapkamers, twee badkamers en een serre.
Slaapkamer I (ca. m2) bevindt zich aan de voorzijde. De bijbehorende badkamer (ca. 2,07 x 2,28) is ingedeeld met een douche, toilet en wastafel. Slaapkamer II (ca. 4,70 x 3,65) grenst aan de serre (ca. 4,63 x 2,45) met uitzicht naar de zijtuin. Badkamer II (ca. 4,70 x 1,71) grenst, net als beide slaapkamers, aan een lange hal. In deze badkamer ziet u een ligbad, toilet en een wastafel.
De voor- zij- en achtertuin met bomen en hoge beplanting zorgen voor optimale privacy in de bungalow en de tuin. Aan de voorzijde is een balkon (ca. 2,20 x 1,10), te bereiken vanuit de hoofdslaapkamer. Via de schuifpui in de woonkamer is het grote terras te bereiken, met fraai uitzicht naar de diepe achtertuin. Voor de natuur- en tuinliefhebber, voor het houden van kippen of andere dieren en voor kinderen die graag buiten spelen is dit een droomtuin.
Souterrain:
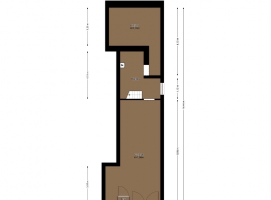
Het souterrain bestaat uit drie ruimtes; een L-vormige garage van ca. 33 m2 en twee kelderruimtes van ca. 10,4 m2 en 16,5 m2. In de garage, naast de garagepoort, is de meterkast geplaatst en in de eerste berging is de opstelling van de HR-ketel (Remeha, huur).
Algemeen:
Bouwjaar: 1971
Gebruiksoppervlakte wonen: circa 173 m2, inhoud circa 854 m3
Parkeergelegenheid op eigen terrein (oprit en garage)
Verwarming en warm water via een HR-ketel (Remeha, huur)
15 zonnepanelen op het platte dak, geplaatst in 2023
Fantastisch perceel van 1.740 m2 met optimale privacy
Wonen op een van de mooiste locaties van Berg en Terblijt
Energielabel: C
Asbest: niet bekend wel verdacht
Olietank: niet bekend
Aanvaarding: in onderling overleg
Ter bescherming van de belangen van zowel koper als verkoper, wordt uitdrukkelijk gesteld dat een koopovereenkomst met betrekking tot deze onroerende zaak eerst dan tot stand komt nadat koper en verkoper de koopovereenkomst hebben getekend (“schriftelijkheidsvereiste”).
Indien er in de woning huurtoestellen aanwezig zijn zoals CV-ketel, boiler, zonnepanelen, mechanische ventilatie etc. dan dienen deze door de koper te worden overgenomen.
De termijn die wordt opgenomen voor eventuele (overeengekomen) ontbindende voorwaarden (bv. Financiering) is in de regel 4 tot 6 weken na het sluiten van de mondelinge wilsovereenkomst.
De waarborgsom/bankgarantie is 10% van de koopsom. De koper dient deze 3 dagen ná het vervallen van de ontbindende voorwaarden bij de desbetreffende notaris te deponeren.
Koper is te allen tijde gerechtigd voor eigen rekening een bouwkundige keuring te (laten) verrichten dan wel andere adviseurs te raadplegen teneinde een goed inzicht te verkrijgen over de staat van onderhoud.
Deze informatie is door ons, Tijs & Cyril Makelaardij met de nodige zorgvuldigheid samengesteld. Onzerzijds wordt echter geen enkele aansprakelijkheid aanvaard voor enige onvolledigheid, onjuist of anderszins, dan wel de gevolgen daarvan. Alle opgegeven maten en oppervlakten zijn indicatief. Van toepassing zijn de NVM voorwaarden.
Kenmerken
Overdracht
| Vraagprijs |
€ 549.000 |
| Vraagprijs per m² |
€ 3.173 |
| Aangeboden sinds |
10 maanden |
| Status |
Verkocht |
| Aanvaarding |
In overleg |
Bouw
| Soort woonhuis |
Bungalow, vrijstaande woning |
| Soort bouw |
Bestaande bouw |
| Bouwjaar |
1971 |
| Soort dak |
Plat dak |
Oppervlakten en inhoud
| Wonen |
173 m² |
| Overige inpandige ruimte |
74 m² |
| Gebouwgebonden buitenruimte |
7 m² |
| Externe bergruimte |
14 m² |
| Perceel |
1740 m² |
| Inhoud |
854 m³ |
Indeling
| Aantal kamers |
3 |
| Aantal slaapkamers |
2 |
| Aantal woonlagen |
2 |
| Voorzieningen |
Schuifpui |
Energie
| Energielabel |
Wat betekent dit? |
| Verwarming |
Cv-ketel |
| Warm water |
Cv-ketel |
| Cv-ketel |
Remeha |
Kadastrale gegevens
| Berg en Terblijt D 710 |
|
| Oppervlakte |
1740 m² |
| Eigendomssituatie |
Volle eigendom |
Buitenruimte
| Ligging |
In woonwijk |
| Tuin |
Achtertuin en voortuin en zijtuin |
Bergruimte
Garage
| Soort garage |
Inpandig |
| Capaciteit |
1 auto |
Parkeergelegenheid
| Soort parkeergelegenheid |
Openbaar parkeren en op eigen terrein |
Kenmerken
Overdracht
| Vraagprijs |
€ 549.000 |
| Vraagprijs per m² |
€ 3.173 |
| Aangeboden sinds |
10 maanden |
| Status |
Verkocht |
| Aanvaarding |
In overleg |
Bouw
| Soort woonhuis |
Bungalow, vrijstaande woning |
| Soort bouw |
Bestaande bouw |
| Bouwjaar |
1971 |
| Soort dak |
Plat dak |
Oppervlakten en inhoud
| Wonen |
173 m² |
| Overige inpandige ruimte |
74 m² |
| Gebouwgebonden buitenruimte |
7 m² |
| Externe bergruimte |
14 m² |
| Perceel |
1740 m² |
| Inhoud |
854 m³ |
Indeling
| Aantal kamers |
3 |
| Aantal slaapkamers |
2 |
| Aantal woonlagen |
2 |
| Voorzieningen |
Schuifpui |
Energie
| Energielabel |
 |
| Verwarming |
Cv-ketel |
| Warm water |
Cv-ketel |
| Cv-ketel |
Remeha |
Kadastrale gegevens
| Berg en Terblijt D 710 |
|
| Oppervlakte |
1740 m² |
| Eigendomssituatie |
Volle eigendom |
Buitenruimte
| Ligging |
In woonwijk |
| Tuin |
Achtertuin en voortuin en zijtuin |
Bergruimte
Garage
| Soort garage |
Inpandig |
| Capaciteit |
1 auto |
Parkeergelegenheid
| Soort parkeergelegenheid |
Openbaar parkeren en op eigen terrein |