Karakteristiek vrijstaand woonhuis met een aanbouw, souterrain en een groot zwembad in de prachtige tuin. Deze degelijk gebouwde woning, gebouwd in de jaren 60, biedt u de mogelijkheid om naar eigen smaak te verbouwen en moderniseren, waarbij gelijkvloers wonen tot de mogelijkheden behoort.
Karakteristiek vrijstaand woonhuis met een aanbouw, souterrain en een groot zwembad in de prachtige tuin. Deze degelijk gebouwde woning, gebouwd in de jaren 60, biedt u de mogelijkheid om naar eigen smaak te verbouwen en moderniseren, waarbij gelijkvloers wonen tot de mogelijkheden behoort.
Typering:
Deze woning staat op een mooie plek, aan de noordkant van Berg en Terblijt. In de straat komt alleen bestemmingsverkeer en via deze straat loopt u zo de prachtige natuur in richting de Curfsgroeve, het Geuldal en Sint Gerlach. Berg en Terblijt heeft een goed voorzieningenniveau met een basisschool, supermarkt, enkele winkels en sportfaciliteiten. Met de fiets en bus zijn Valkenburg en Maastricht goed bereikbaar.
Souterrain:
Onder een deel van de woning bevindt zich een souterrain met een hoogte van ca. 1,99 meter. Aan de voorzijde is de brede garage (ca. 21 m2) voorzien van elektra, water, openslaande deuren naar de oprit en een aparte loopdeur.
Verder zijn er een berging (ca. 3,50 x 2,61) en een tweede berging met de technische installatie van het buitenzwembad.
Begane grond:
Via de goed beloopbare buitentrap bereikt u de entree, aan de rechterzijde van deze vrijstaande woning. In de ruime hal met boeren plavuizen vloer ziet u de hardhouten trappen naar de eerste verdieping en het souterrain. Rechts in de hal is de toiletruimte met een wandcloset, fonteintje en houten lambrisering.
In de hal is een gemetselde doorgang naar de woonkamer, die aan de linkerzijde is uitgebouwd. Hierdoor is er een zeer royale leefruimte van ca. 55 m2 ontstaan, met grote ramen aan twee zijden en openslaande deuren naar de achtertuin. De raamindeling, het houten balkenplafond, de houtkachel bij het zitgedeelte en de plavuizen vloer geven de woonkamer een landelijke, klassieke sfeer.
Aan de achterzijde is de keuken (ca. 11,5 m2), die vanuit de woonkamer en hal te bereiken is. Het uitzicht naar het overdekte terras en de tuin met zwembad is fraai. De wandopstelling met natuursteen blad is voorzien van een gaskookplaat, afzuigkap, oven, magnetron en een koelkast. Slaapkamer I (ca. 3,28 x 3,19) met een grote kastenwand en een inbouwkast bevindt zich eveneens aan de achterzijde van deze verrassend ruime woning.
De rondom gelegen tuin biedt ruimte aan gevarieerde beplanting, een sfeervol overdekt terras, groot gazon en een buitenzwembad. Aan de voorzijde, bij de garage, is parkeergelegenheid voor meerdere auto’s.
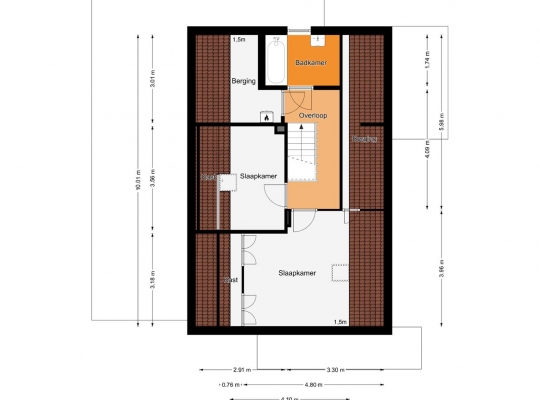
Eerste verdieping:
Aan de overloop grenzen twee slaapkamers, de badkamer en een ruime berging. Slaapkamer II (ca.13,1 m2) met vaste kastenwand en dakraam bevindt zich aan de voorzijde. Aan de linkerzijde is slaapkamer III (ca. 7,9 m2) met dakraam en aan de achterzijde is de berging (ca. 8,5 m2) met de opstelling van de HR-ketel. De naastgelegen badkamer (ca. 3,3 m2) is ingedeeld met een ligbad/douche en een wastafel. In het schuine dakvlak aan de rechterzijde is een tweede berging, te bereiken vanuit slaapkamer II.
Algemeen:
Bouwjaar: 1960
Gebruiksoppervlakte wonen: circa 136 m2, inhoud circa 619 m3
Parkeergelegenheid op eigen terrein
Prachtige tuin met buitenzwembad
Groot, stahoog souterrain
Verwarming en warm water via een HR-ketel (Remeha, eigendom, 2016)
Hardhouten kozijnen, deels met isolatieglas
Energielabel: F
Aanvaarding: in onderling overleg
Ter bescherming van de belangen van zowel koper als verkoper, wordt uitdrukkelijk gesteld dat een koopovereenkomst met betrekking tot deze onroerende zaak eerst dan tot stand komt nadat koper en verkoper de koopovereenkomst hebben getekend (“schriftelijkheidsvereiste”).
Indien er in de woning huurtoestellen aanwezig zijn zoals CV-ketel, boiler, zonnepanelen, mechanische ventilatie etc. dan dienen deze door de koper te worden overgenomen.
De termijn die wordt opgenomen voor eventuele (overeengekomen) ontbindende voorwaarden (bv. Financiering) is in de regel 4 tot 6 weken na het sluiten van de mondelinge wilsovereenkomst.
De waarborgsom/bankgarantie is 10% van de koopsom. De koper dient deze 3 dagen ná het vervallen van de ontbindende voorwaarden bij de desbetreffende notaris te deponeren.
Koper is te allen tijde gerechtigd voor eigen rekening een bouwkundige keuring te (laten) verrichten dan wel andere adviseurs te raadplegen teneinde een goed inzicht te verkrijgen over de staat van onderhoud.
Deze informatie is door ons, Tijs & Cyril Makelaardij met de nodige zorgvuldigheid samengesteld. Onzerzijds wordt echter geen enkele aansprakelijkheid aanvaard voor enige onvolledigheid, onjuist of anderszins, dan wel de gevolgen daarvan. Alle opgegeven maten en oppervlakten zijn indicatief. Van toepassing zijn de NVM voorwaarden.