Vraagprijs € 589.000,- k.k.
Stijlvol, vrijstaand woonhuis boordevol luxe nabij natuurgebied Bergse Heide. Op een rustige plek in Vilt, tussen Maastricht en Valkenburg, staat dit droomhuis met een zonnige loungetuin, een grote serre en een verwarmde garage/hobbyruimte. Er zijn 3 slaapkamers op de 1e verdieping en er kunnen 2 extra kamers op de 2e verdieping gerealiseerd worden. Verder heeft dit huis een droombadkamer, een prachtige keuken en een sfeervolle woonkamer met openslaande tuindeuren. Als u dit huis heeft gezien, bent u op slag verliefd …
Stijlvol, vrijstaand woonhuis boordevol luxe nabij natuurgebied Bergse Heide. Op een rustige plek in Vilt, tussen Maastricht en Valkenburg, staat dit droomhuis met een zonnige loungetuin, een grote serre en een verwarmde garage/hobbyruimte. Er zijn 3 slaapkamers op de 1e verdieping en er kunnen 2 extra kamers op de 2e verdieping gerealiseerd worden. Verder heeft dit huis een droombadkamer, een prachtige keuken en een sfeervolle woonkamer met openslaande tuindeuren. Als u dit huis heeft gezien, bent u op slag verliefd …
Typering:
Welkom in Vilt, dat officieel deel uitmaakt van Berg en Terblijt. De gunstige ligging tussen
Maastricht en Valkenburg zorgen voor een goede bereikbaarheid met de auto, bus en?
(elektrische) fiets. Rondom Vilt vindt u prachtige natuur waar u kunt wandelen en fietsen,
over rustige paden en prachtige heuvels. Voor dagelijkse voorzieningen, waaronder scholen
en winkels, kunt u terecht in Sibbe, Berg en Terblijt en Valkenburg. Maastricht is ongeveer
10 minuten met de auto, net als de snelwegen A2 en A79 richting Eindhoven, Heerlen en
Luik.
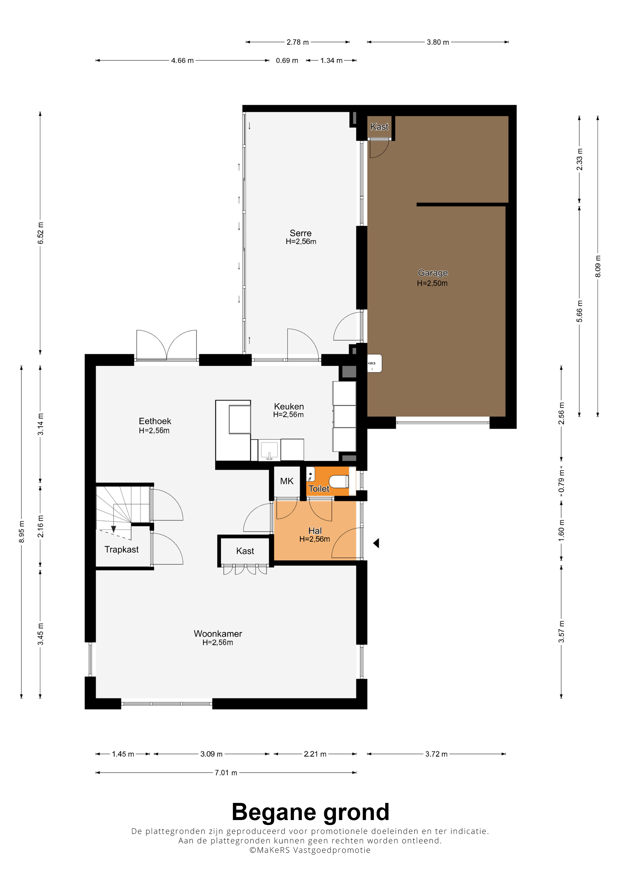
Begane grond:
Aan de rechterzijde van de woning, bij de brede oprit, is de entree van deze fantastische woning. De hal (circa 2,21 x 1,60) is een fraaie ontvangstruimte met de meterkast en de toiletruimte, die is uitgevoerd met een wandcloset en een fonteintje. In de hal ligt, net als in de woonkamer, een eiken lamelparketvloer (5 mm toplaag).
De speels ingedeelde woonkamer heeft, inclusief keuken, een oppervlakte van circa 48 m2. Het royale zitgedeelte, met ramen aan drie zijden, bevindt zich aan de voorzijde. Blikvanger is de zwarte kast, met ruimte voor de tv en audio-apparatuur. De trap naar de eerste verdieping is voorzien van een ombouw, waardoor de woonkamer heel rustig oogt.
Aan de achterzijde is het eetgedeelte, met openslaande deuren naar de tuin. Het is maar een paar stappen naar de keuken, die niet alleen de juiste looks heeft, maar ook genoeg ruimte om te koken en bakken. De hoekopstelling en de hoge kastenwand zijn in 2017 geplaatst en alle benodigde apparatuur is ingebouwd: een inductie kookplaat, afzuigkap, combi-oven, vaatwasser en een koelkast. Aan alles is gedacht; zo is er een nis voor de koffiemachine, waardoor deze niet op het aanrecht hoeft te staan.
Vanuit de keuken is er toegang tot de prachtige serre (circa 6,52 x 2,78). Meerdere glazen schuifdeuren zorgen voor een optimale verbinding met de tuin en de serre, met een houten vloer, is een plek die een groot deel van het jaar als leefruimte fungeert. De aangrenzende garage (circa 8,09 x 3,72) met elektra, water, afvoer en verwarming biedt ruimte aan een auto, de fietsen en andere spullen. In 2021 is een zijdelings geplaatste garagepoort met afstandsbediening geïnstalleerd.
De loungetuin op het zuiden grenst aan de woonkamer en de serre. Dit is de perfecte oplossing voor mensen die een huis met een tuin zoeken, maar geen groene vingers hebben. Als de glazen schuifdeuren van de serre openstaan, is de tuin optisch een stuk groter.
Aan de linkerzijde van de woning is de zijtuin, met een berging en een doorgang naar de voortuin. Daar staan een lage, groenblijvende haag en in cortenstaal uitgevoerde bloemborders die qua stijl perfect bij dit droomhuis passen.
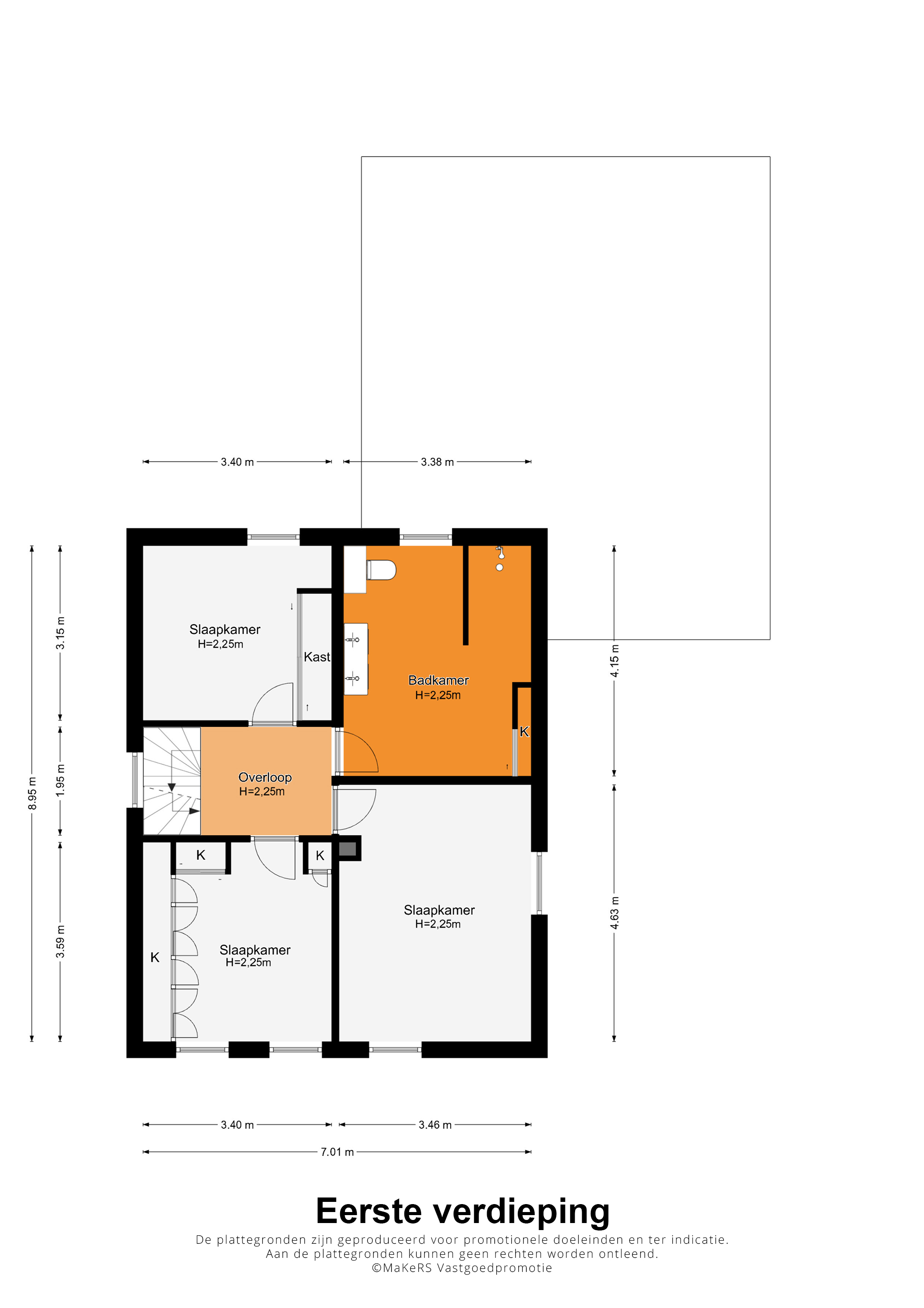
Eerste verdieping:
Niet alleen de begane grond, maar ook de eerste verdieping heeft veel sfeer. Het raam in de zijgevel zorgt voor fijne lichtinval, bij de trap en op de overloop. Vanaf de overloop is er toegang tot drie slaapkamers, met laminaat op de vloer.
Aan de voorzijde zijn slaapkamer I (circa 4,63 x 3,46) en slaapkamer II (circa 3,59 x 3,40), met maatwerk kasten voor kleding en linnengoed. Slaapkamer III (circa 3,40 x 3,15) met een maatwerk kastenwand bevindt zich aan de achterzijde.
De zeer ruime badkamer (circa 4,15 x 3,38) is in 2019 vernieuwd, met een fantastisch eindresultaat. Grote, bruine wandtegels zijn gecombineerd met stucwerk en een gietvloer. U heeft de beschikking over een xl-inloopdouche, een wandcloset en een badmeubel waarop twee wastafels staan. Achter de schuifdeur bevindt zich een opbergruimte voor cosmetica etc. Dit alles uitgevoerd in massief eikenhout elementen.
Tweede verdieping:
Een vaste trap geeft toegang tot de tweede verdieping, met twee dakramen aan de voorzijde en een bijna 3 meter hoge nok. Er is bergruimte in de schuinten van het dak afgewerkt met MDF-schuifdeuren en de oppervlakte is circa 30 m2, met de mogelijkheid om een of twee extra slaapkamers te realiseren.
Algemeen:
Bouwjaar: 1976
Perceeloppervlakte: 297 m2
Gebruiksoppervlakte wonen: circa 158 m2, inhoud circa 733 m3
21 zonnepanelen (eigendom), geplaatst in 2017
Verwarming en warm water via een HR-ketel (Remeha, 2008, eigendom)
Drie (mogelijk vier/vijf) slaapkamers
Luxe badkamer, keuken en toiletruimte
Elektrische vloerverwarming op de begane grond en badkamer
Het zadeldak is in 2017 gerenoveerd
Aangebouwde serre en een inpandig te bereiken, verwarmde garage
Asbest: niet bekend
Energielabel: B
Aanvaarding: in onderling overleg
Ter bescherming van de belangen van zowel koper als verkoper, wordt uitdrukkelijk gesteld dat een koopovereenkomst met betrekking tot deze onroerende zaak eerst dan tot stand komt nadat koper en verkoper de koopovereenkomst hebben getekend (“schriftelijkheidsvereiste”).
Indien er in de woning huurtoestellen aanwezig zijn zoals CV-ketel, boiler, zonnepanelen, mechanische ventilatie etc. dan dienen deze door de koper te worden overgenomen.
De termijn die wordt opgenomen voor eventuele (overeengekomen) ontbindende voorwaarden (bv. Financiering) is in de regel 4 tot 6 weken na het sluiten van de mondelinge wilsovereenkomst.
De waarborgsom/bankgarantie is 10% van de koopsom. De koper dient deze 3 dagen ná het vervallen van de ontbindende voorwaarden bij de desbetreffende notaris te deponeren.
Koper is te allen tijde gerechtigd voor eigen rekening een bouwkundige keuring te (laten) verrichten dan wel andere adviseurs te raadplegen teneinde een goed inzicht te verkrijgen over de staat van onderhoud.
Deze informatie is door ons, Tijs & Cyril Makelaardij met de nodige zorgvuldigheid samengesteld. Onzerzijds wordt echter geen enkele aansprakelijkheid aanvaard voor enige onvolledigheid, onjuist of anderszins, dan wel de gevolgen daarvan. Alle opgegeven maten en oppervlakten zijn indicatief. Van toepassing zijn de NVM voorwaarden.