Zeer ruim, vrijstaand herenhuis uit 1927 met een fantastische sfeer in Berg en Terblijt, op 5 autominuten van Maastricht en minder dan 10 minuten van Valkenburg. Dit stijlvolle huis heeft 4 ruime slaapkamers en een zolderkamer, met de mogelijkheid om een 6e slaapkamer te realiseren. De woonkamer, woonkeuken, bijkeuken en badkamer hebben een royale maatvoering waardoor dit een perfect huis is voor een gezin en om vanuit huis te werken.
Zeer ruim, vrijstaand herenhuis uit 1927 met een fantastische sfeer in Berg en Terblijt, op 5 autominuten van Maastricht en minder dan 10 minuten van Valkenburg. Dit stijlvolle huis heeft 4 ruime slaapkamers en een zolderkamer, met de mogelijkheid om een 6e slaapkamer te realiseren. De woonkamer, woonkeuken, bijkeuken en badkamer hebben een royale maatvoering waardoor dit een perfect huis is voor een gezin en om vanuit huis te werken.
Typering:
Deze woning staat op een mooie plek, aan de westkant van Berg en Terblijt. Na een paar minuten loopt u het buitengebied in richting de Curfsgroeve, het Geuldal en Sint Gerlach. Berg en Terblijt heeft een goed voorzieningenniveau met een basisschool, supermarkt, enkele winkels en sportfaciliteiten op loop-/fietsafstand. Met de fiets, bus en auto zijn Valkenburg en Maastricht goed bereikbaar.
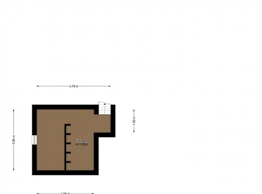
Souterrain:
Onder een deel van de keuken is een ruime wijn-/provisiekelder van ca. 3,69 x 3,95 met een hoogte van ca. 1,85 meter.
Begane grond:
De entree, omringd met beplanting en met een hardstenen buitentrap, is prachtig. Achter de donkere voordeur is de ruime hal met een ca. 3,20 meter hoog plafond en de bordestrap naar de eerste verdieping. Aan het einde van de hal, naast de meterkast, is de ruime toiletruimte met fonteintje.
Rechts in de hal is een deur naar de woonkamer van ca. 48.3 m2, met lichtinval aan drie zijden en een schuifpui naar de tuin. Er is ruimte voor een dubbele zithoek, een grote eettafel en ook voor een piano. Aan de achterzijde, bij het hoge schuine plafond, staat een stijlvolle open haard.
De woonkeuken (ca. 6,58 x 3,72) met donkere tegelvloer is een ruimte waar u met vrienden en familie kunt zitten, koken, eten en borrelen. Er staat een zeer ruime hoekopstelling met een brede spoelbak en diverse inbouwapparatuur (Smeg en Siemens): een inductie kookplaat, afzuigkap, heteluchtoven en een vaatwasser.
Naast de keuken is de bijkeuken (ca. 14 m2) met een wit-zwart geblokte tegelvloer, een spoelbak met vaste kasten en de opstelling van de wasapparatuur. Openslaande deuren geven toegang tot de achtertuin.
De woning wordt omringd door een mooi aangelegde tuin met een hoge haag aan de straatzijde, die voor veel privacy zorgt. Op de oprit is parkeergelegenheid voor twee auto’s (naast elkaar) en rechts van de aanbouw is een poort naar de zij- en achtertuin.
De achtertuin heeft een uitstekende zonligging en een mooie indeling met grote tegels van hardsteen, houten terrasplanken en een overdekt terras. Links in de tuin staan twee bergingen voor het tuingereedschap en andere spullen. Aan de straatzijde, achter de haag, is een grasveldje waar u heel beschut kunt zitten.
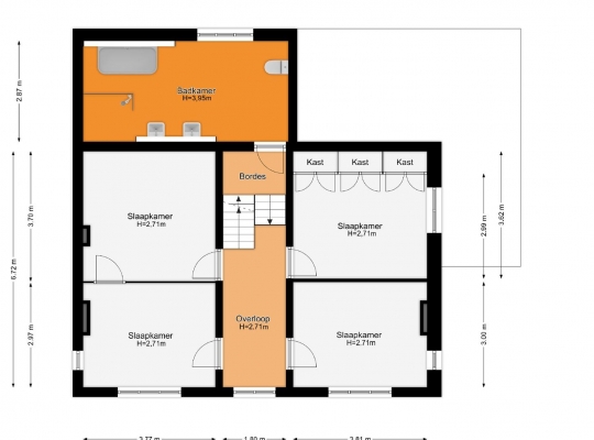
Eerste verdieping:
Volg de bordestrap vanuit de hal naar de ruime, lichte overloop. De klassieke indeling met twee slaapkamers aan de linkerzijde en twee slaapkamers aan de rechterzijde is fraai. In alle slaapkamers en op de overloop is de originele houten vloer zichtbaar en de hoge plafonds versterken het gevoel van ruimte.
Slaapkamer I (ca. 3,77 x 2,97) met een mooie schouw en slaapkamer II (ca. 3,81 x 3,00) bevinden zich aan de voorzijde, met mooi uitzicht naar de straat. Aan de achterzijde zijn slaapkamer III (ca. 3,77 x 3,70) en slaapkamer IV (ca. 3,81 x 3,62) met een vaste kastenwand.
Aan de achterzijde is de badkamer (ca. 5,85 x 2,87) met een hoog, schuin dak en ramen aan twee zijden. De badkamer is ingedeeld met een ligbad, inloopdouche, designradiator, tweede toilet en twee wastafels.
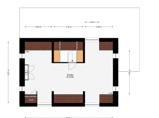
Tweede verdieping:
Er is een bordestrap naar de zeer ruime zolderkamer (ca. 9,40 x 6,51) met drie dakkapellen, een nokhoogte van maar liefst 3,20 meter en een gebruiksoppervlakte van ca. 44 m2. Het splitsen van deze grote kamer in twee slaapkamers is, vanwege de situering van de trap en dakkapellen, goed mogelijk. In een kast is de opstelling van de HR-ketel (Atag, eigendom).
Algemeen:
Bouwjaar: 1927
Gebruiksoppervlakte wonen: circa 243 m2, inhoud circa 969 m3
Verwarming via een HR-ketel (Atag, eigendom) en een houtkachel
Vloerverwarming in de keuken
Kunststof kozijnen met HR++ glas (m.u.v. voordeur)
20 zonnepanelen van 325 Wp per stuk, geplaatst in 2022Het dak van de woning is geïsoleerd
Zeer ruime tuin met een uitstekende zonligging en veel privacy
Parkeergelegenheid op eigen terrein
Vier ruime slaapkamers en een zolderkamer (mogelijk twee slaapkamers)
Asbest: niet bekend
Energielabel: C
Aanvaarding: in overleg
Ter bescherming van de belangen van zowel koper als verkoper, wordt uitdrukkelijk gesteld dat een koopovereenkomst met betrekking tot deze onroerende zaak eerst dan tot stand komt nadat koper en verkoper de koopovereenkomst hebben getekend (“schriftelijkheidsvereiste”).
Indien er in de woning huurtoestellen aanwezig zijn zoals CV-ketel, boiler, zonnepanelen, mechanische ventilatie etc. dan dienen deze door de koper te worden overgenomen.
De termijn die wordt opgenomen voor eventuele (overeengekomen) ontbindende voorwaarden (bv. Financiering) is in de regel 4 tot 6 weken na het sluiten van de mondelinge wilsovereenkomst.
De waarborgsom/bankgarantie is 10% van de koopsom. De koper dient deze 3 dagen ná het vervallen van de ontbindende voorwaarden bij de desbetreffende notaris te deponeren.
Koper is te allen tijde gerechtigd voor eigen rekening een bouwkundige keuring te (laten) verrichten dan wel andere adviseurs te raadplegen teneinde een goed inzicht te verkrijgen over de staat van onderhoud.
Deze informatie is door ons, Tijs & Cyril Makelaardij met de nodige zorgvuldigheid samengesteld. Onzerzijds wordt echter geen enkele aansprakelijkheid aanvaard voor enige onvolledigheid, onjuist of anderszins, dan wel de gevolgen daarvan. Alle opgegeven maten en oppervlakten zijn indicatief. Van toepassing zijn de NVM voorwaarden.