Uniek woonhuis net buiten Maastricht, met twee woongedeeltes en een prachtige tuin. Welkom in Bemelen, daar waar de stad Maastricht overgaat in het geliefde Heuvelland. Met de stad op korte, vlakke fietsafstand is dit de perfecte uitvalsbasis voor een gezin, om wonen met werken te combineren en voor liefhebbers van de Limburgse natuur. Aan het begin van de Oude Akerstraat, naast de alom bekende winkel Vers Voordeel Vaessen, staat dit volumineuze woonhuis met 2 woongedeeltes, een diepe tuin en royale parkeergelegenheid. Er zijn 6 slaapkamers, meerdere badkamers, 2 woonkamers, 2 keukens en nog heel veel meer…
Uniek woonhuis net buiten Maastricht, met twee woongedeeltes en een prachtige tuin. Welkom in Bemelen, daar waar de stad Maastricht overgaat in het geliefde Heuvelland. Met de stad op korte, vlakke fietsafstand is dit de perfecte uitvalsbasis voor een gezin, om wonen met werken te combineren en voor liefhebbers van de Limburgse natuur. Aan het begin van de Oude Akerstraat, naast de alom bekende winkel Vers Voordeel Vaessen, staat dit volumineuze woonhuis met 2 woongedeeltes, een diepe tuin en royale parkeergelegenheid. Er zijn 6 slaapkamers, meerdere badkamers, 2 woonkamers, 2 keukens en nog heel veel meer…
Typering:
Hier woont u buiten de stad, maar niet afgelegen. De woning is gelegen op slechts 10 minuten rijden of 20 minuten fietsen van het ziekenhuis en de universiteit van Maastricht. De omgeving nodigt uit om te gaan wandelen en fietsen, bergop en bergaf. Vanaf huis is het slechts 4 kilometer naar de oprit van de A2, richting Eindhoven en Luik. De aansluitende A79 richting Heerlen bevindt zich op nog geen 7 kilometer afstand.
Begane grond:
Met een gevelbreedte van ruim 14.50 meter is dit een woonhuis van groot formaat. Aan de voorzijde ziet u de deuren van een garage/berging (circa 4,40 x 2,53).
Via de voordeur stapt u een hal (circa 5,00 x 1,25) in, met een stijlvolle tegelvloer en een deur naar de tuin. Aan het einde van de hal is een trap naar de eerste verdieping, met hardhouten treden en een fraaie leuning.
Links van de hal is een tv-kamer (circa 5,00 x 3,85) met een wit balkenplafond, een houten vloer en openslaande deuren naar de tuin. Een multifunctionele ruimte, boordevol sfeer en met veel lichtinval. De woonkamer (circa 5,00 x 4,53) met aansluitende werkplek bevindt zich, net als een woonkeuken (circa 5,70 x 0,00), aan de andere zijde van de hal. Uw oog valt op de eikenhouten vloeren, de oude plafondbalk en de rode deur van een inbouwkast.
Aan de tuinzijde is de woonkeuken, met aan twee kanten dubbele deuren naar de tuin. De vloer toont karakter en de royale opstelling, met een aanrechtblad van hardsteen, heeft een grote spoelbak met Quooker, een gasfornuis met oven, een afzuigkap en een vaatwasser.
In de hoek van de TV-kamer is een deur naar een tweede hal, die toegang biedt tot de garage/berging en het overdekte terras. Bij deze hal bevindt zich een gastentoilet, op korte afstand van het eerste woongedeelte en de tuin.
Het tweede woongedeelte bevindt zich in de achtervleugel, met prachtig uitzicht op de tuin. De fantastische woonkamer (circa 5,93 x 5,53) is het toppunt van sfeer, mede dankzij de stoere dakconstructie en de stalramen, De lange muur van metselwerk vormt een mooie combinatie met de vloer, het stucwerk en de maatwerk kastenwand met schuifdeuren.
De keuken (circa 3,36 x 2,42) biedt ruimte aan een wandopstelling met een inductie kookplaat, vaatwasser, koelkast, een oven en een wasmachine. Naast de keuken zijn een toiletruimte en een
, ingedeeld met een ligbad, inloopdouche en een wastafel.
Ook is er een slaapkamer (circa 0,00 x 3,40) op de begane grond, met stalramen en enkele elementen die het voormalige gebruik als stal verraden. Bij deze slaapkamer hoort een compacte badkamer met een douche, toilet en een diepe wastafel/gootsteen.
Tuin:
De voortuin met een lage haag, hortensia’s en overige beplanting past perfect bij het karakter van deze woning. Dit geldt ook voor de royale achtertuin met een groot zonneterras, een overdekt terras en volop groen. Loop door de tuin, kijk en geniet, om vervolgens bij de berging (circa 4,96 x 3,57/3,36) naar binnen te gaan. Naast de berging is een carport gebouwd, met een buitenterrein waar volop parkeergelegenheid is. Niet alleen voor uw auto’s, maar ook voor een caravan, camper en aanhanger.
Het tweede woongedeelte heeft een eigen terrein met een zonneterras en veel groen. Sfeermaker is de mergelmuur met leibomen, met een ongekende charme en karakter. Stelt u zich eens voor dat u hier zit, in de Limburgse zon…
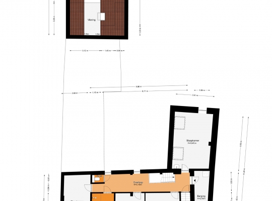
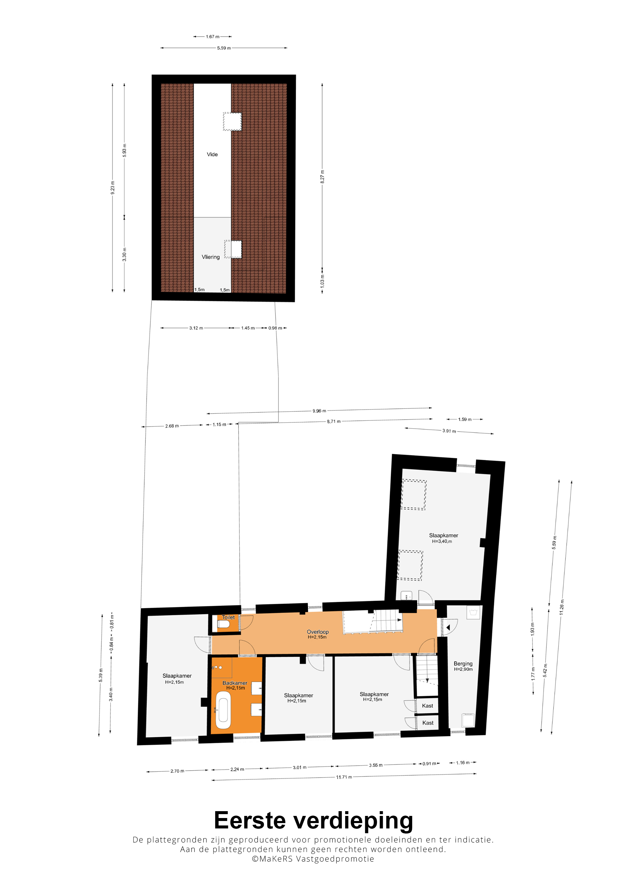
Eerste verdieping:
Volgt u de vaste trap in het eerste woongedeelte, dan bereikt u een ruime overloop. Hier ziet u niet alleen fraaie houten deuren en dikke houten balken, maar heeft u ook een mooi doorkijkje naar de tuin.
Het linkerdeel van deze etage biedt ruimte aan slaapkamer II (circa 5,39 x 2,70), een toiletruimte en een badkamer (circa 3,40 x 2,24) met een vrijstaand bad, separate douche en twee wastafels. Aan de voorzijde zijn slaapkamer III (circa 3,40 x 3,01) en slaapkamer IV (circa 3,40 x 3,55) met twee inbouwkasten.
In het rechterdeel, naast de trap naar de tweede verdieping, is een berging/wasruimte van circa 5,42 x 1,59/1,16). Slaapkamer V (circa 5,59 x 3,91) met een hoog, schuin dak en veel lichtinval bevindt zich aan de achterzijde. Boven het tweede woongedeelte is een slaapzolder, die via de vide in open verbinding met de woonkamer staat.
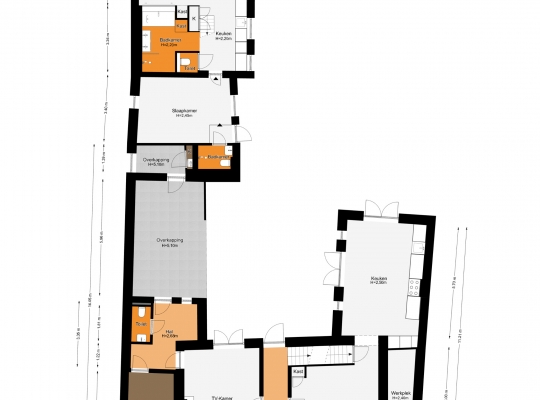
Tweede verdieping:
Het eerste woongedeelte heeft een volwaardige tweede verdieping, met een slaapkamer en een badkamer. Dit is slaapkamer VI (circa 10,20 x 4,24) die, gezien de grootte, ingericht kan worden als inpandig appartement. De houten dakconstructie is rood geschilderd en ook hier ziet u dat het dag- en zonlicht volop naar binnen kan schijnen.
De badkamer (circa 5,38 x 2,55) op deze verdieping is ingedeeld met een douche, toilet en een wastafel. Wie gaat deze verdieping gebruiken? Een van de thuiswonende kinderen? Uw au-pair? Of wordt dit een gastenverblijf voor vrienden en familie?
Algemeen:
Bouwjaar: 1930
Perceeloppervlakte: 889 m2
Gebruiksoppervlakte wonen: circa 327 m2, inhoud: circa 1403 m3
Verwarming en warm water via twee HR-ketels (hoofdwoning en appartement) (Nefit, 2014 en 2023, eigendom)
14 zonnepanelen, geplaatst in 2022
Hardhouten en kunststof kozijnen met isolatieglas
Het tweede woongedeelte is geheel voorzien van vloerverwarming
De keuken in het woonhuis is voorzien van vloerverwarming
Parkeergelegenheid op eigen terrein (achterzijde)
Twee woongedeeltes (1 adres)
Zeer royale tuin met meerdere terrassen en een grote variatie aan groen
Uniek woonhuis boordevol karakter, sfeer en het wooncomfort van nu
Energielabel: C
Aanvaarding: in onderling overleg
Ter bescherming van de belangen van zowel koper als verkoper, wordt uitdrukkelijk gesteld dat een koopovereenkomst met betrekking tot deze onroerende zaak eerst dan tot stand komt nadat koper en verkoper de koopovereenkomst hebben getekend (“schriftelijkheidsvereiste”).
De termijn die wordt opgenomen voor eventuele (overeengekomen) ontbindende voorwaarden (bv. Financiering) is in de regel 4 tot 6 weken na het sluiten van de mondelinge wilsovereenkomst.
De waarborgsom/bankgarantie is 10% van de koopsom. De koper dient deze 3 dagen ná het vervallen van de ontbindende voorwaarden bij de desbetreffende notaris te deponeren. Koper is te allen tijde gerechtigd voor eigen rekening een bouwkundige keuring te (laten) verrichten dan wel andere adviseurs te raadplegen teneinde een goed inzicht te verkrijgen over de staat van onderhoud.
Deze informatie is door ons Tijs & Cyril Makelaardij met de nodige zorgvuldigheid samengesteld.
Onzerzijds wordt echter geen enkele aansprakelijkheid aanvaard voor enige onvolledigheid, onjuist of anderszins, dan wel de gevolgen daarvan. Alle opgegeven maten en oppervlakten zijn indicatief. Van toepassing zijn de NVM voorwaarden.