Vraagprijs € 425.000,- k.k.
Gasloze en ruime tweekapper met een xl-garage, carport en 4 slaapkamers.
Gasloze en ruime tweekapper met een xl-garage, carport en 4 slaapkamers.
Aan de rand van Beek, op loopafstand van het centrum en het buitengebied, staat deze lichte 2-onder-1 kapwoning met hardhouten kozijnen, HR++ glas, een moderne keuken en een luxe badkamer. Er zijn in totaal 4 slaapkamers, waarvan een met een dakkapel, en er zijn maar liefst 30 zonnepanelen geplaatst. De oprit, de carport met lichtkoepel en de 9,50 meter lange garage maken dit huis extra aantrekkelijk.
Typering:
In deze straat, aan de oostkant van Beek, komt alleen bestemmingsverkeer. Na een paar minuten loopt u het buitengebied in richting Genhout, het Vrouwenbos en Spaubeek. In westelijke richting is het ongeveer 1 kilometer naar de Markt, hartje Beek. Sportverenigingen zijn op fietsafstand, net als Winkelcentrum Makado Beek en het treinstation. Via de Maastrichterlaan is het iets meer dan 3 kilometer naar de oprit van de snelweg A2 (Maastricht-Eindhoven).
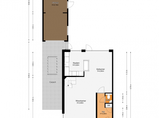
Begane grond:
In de hal (circa 3,54 x 1,87) zijn de meterkast en de toiletruimte, uitgevoerd met een wandcloset en een hoekfonteintje. U ziet gestucte wanden en plafonds, mooie binnendeuren en een donkere tegelvloer met vloerverwarming.
Deze vloer ligt ook in de woonkamer (circa 35 m2) en de halfopen keuken (circa 9,4 m2). Het zitgedeelte heeft een zeer ruime opzet, de open trap versterkt het ruimtegevoel en vanaf het eetgedeelte is er mooi uitzicht op de tuin. De gestucte wanden en het plafond zijn wit geschilderd, met de mogelijkheid om er een persoonlijke touch aan te geven.
In de halfopen keuken staat een stijlvolle, moderne hoekopstelling met alle benodigde inbouwapparatuur: een inductie kookplaat, afzuigkap, vaatwasser, combi-oven, koffiemachine en een koelkast. Fraaie elementen zijn de inbouwverlichting, het donkere aanrechtblad en de vele stopcontacten.
Via de rode achterdeur loopt u de zonnige achtertuin in, gesitueerd op het zuidoosten. Een plekje in de zon is zo gevonden, maar er is ook schaduw in deze tuin. Aan de linkerzijde staat de verlengde garage (circa 9,42 x 2,97) met een kantelpoort naar de oprit en een deur naar de tuin. De carport en aansluitende bieden, net als de garage, parkeergelegenheid op eigen terrein.
1e verdieping:
Vanaf de overloop zijn drie slaapkamers en de badkamer te bereiken. De wanden en plafonds zijn gestuct, en de parketvloer met blokmotief toont karakter. Alle kozijnen zijn vernieuwd, met draai-/kiepramen en HR++ glas.
Slaapkamer I (circa 3,62 x 2,71) en slaapkamer II (circa 4,62 x 3,20) zijn aan de achterzijde. Aan de achterzijde is slaapkamer III (circa 4,06 x 3,20), thans ingericht als kleedruimte. Naast deze kamer is de badkamer (circa 2,99 x 2,70), smaakvol vernieuwd en met een optimale indeling. U heeft de beschikking over een whirlpoolbad, een aparte douche, toilet, designradiator en een tweepersoons wastafel.
2e verdieping:
Er is een vaste trap naar de tweede verdieping, met een grote dakkapel aan de achterzijde. Op de overloop (circa 5,07 x 2,80) hangt de doorstroomboiler (Bosch, 2019, eigendom) en er is plek voor de wasmachine.
Aansluitend is slaapkamer IV (circa 5,07 x 2,97) die, net als de overloop, een diepe berging in de schuinte van het dak heeft. Zo heeft dit huis niet alleen ruime slaapkamers, maar ook een grote hoeveelheid bergruimte.
Algemeen:
Bouwjaar: 1977
Gebruiksoppervlakte wonen: circa 133 m2, inhoud circa 453 m3
Perceeloppervlakte: 225 m2
Vier slaapkamers, waarvan een op de tweede verdieping
Grote dakkapel aan de achterzijde
Elektrische vloerverwarming op de benedenverdieping, warm water via een doorstroomboiler (Bosch, 2019, eigendom)
Hardhouten kozijnen met HR++ glas
30 zonnepanelen, geplaatst in 2019
Ruime garage, carport en oprit
Energielabel: A
Aanvaarding: in onderling overleg
Ter bescherming van de belangen van zowel koper als verkoper, wordt uitdrukkelijk gesteld dat een koopovereenkomst met betrekking tot deze onroerende zaak eerst dan tot stand komt nadat koper en verkoper de koopovereenkomst hebben getekend (“schriftelijkheidsvereiste”).
Indien er in de woning huurtoestellen aanwezig zijn zoals CV-ketel, boiler, zonnepanelen, mechanische ventilatie etc. dan dienen deze door de koper te worden overgenomen.
De termijn die wordt opgenomen voor eventuele (overeengekomen) ontbindende voorwaarden (bv. Financiering) is in de regel 4 tot 6 weken na het sluiten van de mondelinge wilsovereenkomst.
De waarborgsom/bankgarantie is 10% van de koopsom. De koper dient deze 3 dagen ná het vervallen van de ontbindende voorwaarden bij de desbetreffende notaris te deponeren.
Koper is te allen tijde gerechtigd voor eigen rekening een bouwkundige keuring te (laten) verrichten dan wel andere adviseurs te raadplegen teneinde een goed inzicht te verkrijgen over de staat van onderhoud.
Deze informatie is door ons, Tijs & Cyril Makelaardij met de nodige zorgvuldigheid samengesteld. Onzerzijds wordt echter geen enkele aansprakelijkheid aanvaard voor enige onvolledigheid, onjuist of anderszins, dan wel de gevolgen daarvan. Alle opgegeven maten en oppervlakten zijn indicatief. Van toepassing zijn de NVM voorwaarden.