Vraagprijs € 189.000,- k.k.
Licht, gelijkvloers appartement met zonnig balkon en prachtig uitzicht op Maastricht. Aan De Groene Loper zijn meerdere appartementengebouwen behouden, waaronder de ANWB-flat aan het Vrijheidspark. In het gebouw vind je dit (starters)appartement op de zesde verdieping, met een balkon op het zonnige zuiden. Het uitzicht op Maastricht is fraai, en u ziet ook de contouren van het Heuvelland en de Sint Pietersberg. De lift in het gebouw biedt de mogelijkheid om gelijkvloers te wonen op een toplocatie in Maastricht!
Licht, gelijkvloers appartement met zonnig balkon en prachtig uitzicht op Maastricht. Aan De Groene Loper zijn meerdere appartementengebouwen behouden, waaronder de ANWB-flat aan het Vrijheidspark. In het gebouw vind je dit (starters)appartement op de zesde verdieping, met een balkon op het zonnige zuiden. Het uitzicht op Maastricht is fraai, en u ziet ook de contouren van het Heuvelland en de Sint Pietersberg. De lift in het gebouw biedt de mogelijkheid om gelijkvloers te wonen op een toplocatie in Maastricht!
Typering:
Het appartement is gelegen aan de Groene Loper, op circa 15 minuten lopen van het centrum van Maastricht. In de directe nabijheid zijn diverse winkels, openbare vervoersvoorzieningen, sportvelden en scholen. Het centraal station bevindt zich op 5 minuten loopafstand, en de bereikbaarheid van de A2, de A79 en de Maastrichtse ringweg (N278) is goed.
Souterrain:
In het souterrain is een grote, van buitenaf bereikbare gemeenschappelijke fietsenkelder. Zo hoeft de fiets nooit meer buiten te staan!
Begane grond:
De entree van de Koningsresidentie, die ook bekendstaat als de ANWB-flat, is op de begane grond. Niet aan de kant van het park, maar aan de kant van een rustige straat met parkeergelegenheid. Eenmaal binnen kunt u met de trap of lift naar de fietsenkelder en naar het appartement, gesitueerd op de zesde verdieping.
Zesde verdieping:
U kunt zich voorstellen dat het uitzicht vanaf deze hoogte erg fraai is. Niet alleen vanuit het appartement, maar ook vanaf de galerij. U ziet zelfs de contouren van het Heuvelland!
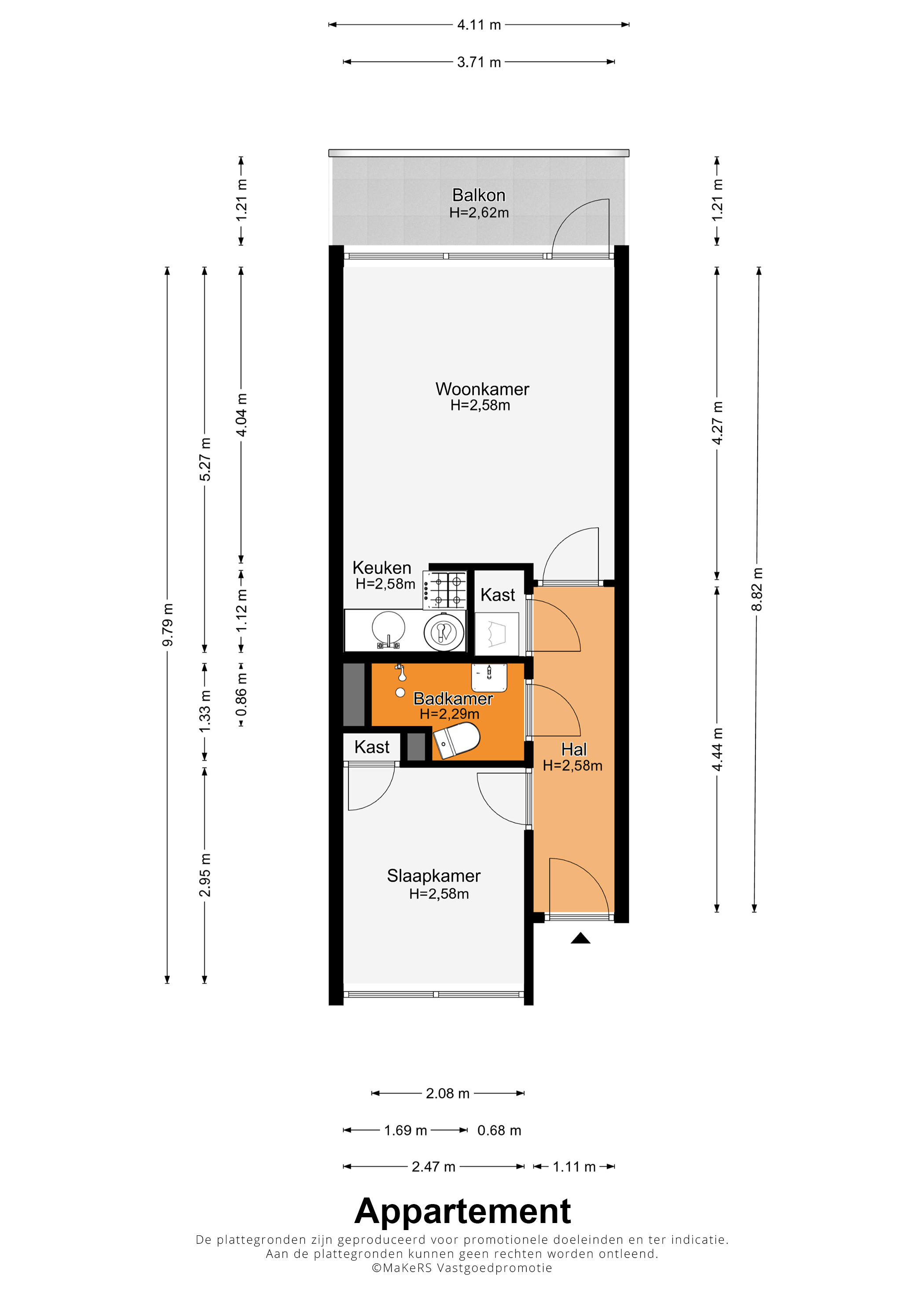
Bij huisnummer 59g loopt u naar binnen, de lange hal (circa 4,44 x 1,11) in. Aan de linkerzijde zijn de deuren van de slaapkamer, badkamer en een berging/wasruimte. De woonkamer (circa 4,27/4,04 x 3,71) bevindt zich aan de zuidkant, met lichtinval vanaf de zuidkant. U ziet het Vrijheidspark, de zuidkant van De Groene Loper en zelfs de Sint Pietersberg. In de aansluitende keuken staat een hoekopstelling met een gaskookplaat en afzuigkap.
De slaapkamer (circa 2,95 x 2,47) met inbouwkast is aan de koele noordkant. Je kunt niet alleen een raam openzetten, maar er is ook een ventilatierooster voor een aangenaam woonklimaat in de slaapkamer. Naast de slaapkamer is de badkamer met een douche, toilet en wastafel.
Is het lekker weer? Dan is de kans groot dat je op het balkon (circa 4,11 x 1,21) gaat zitten. Met een boek, een lunch, het avondeten of een drankje in de zon. De ligging is op het zuiden, perfect voor de zonliefhebber, en het uitzicht is om in te lijsten!
Algemeen:
Bouwjaar: 1961
Gebruiksoppervlakte wonen: circa 35 m2, inhoud: circa 119 m3
Stadsverwarming
Gelijkvloers wonen dankzij de lift in het gebouw
Balkon op het zuiden
VvE-bijdrage bedraagt €214,23 per maand
Asbest: niet bekend
Energielabel: D
Aanvaarding: in onderling overleg
De NVM-vragenlijst Deel B en de Lijst van Zaken zijn niet van toepassing, aangezien de woning wordt verkocht met een niet-zelfbewoningsclausule. Verkoper heeft de woning zelf niet bewoond en kan derhalve koper niet informeren over eigenschappen en/of gebreken waarvan hij niet op de hoogte is.
In de Gemeente Maastricht geldt vanaf 1 oktober 2022 een Huisvestingsverordening - opkoopbescherming voor woningen (dit kan bij deze woning van toepassing zijn).
Ter bescherming van de belangen van zowel koper als verkoper, wordt uitdrukkelijk gesteld dat een koopovereenkomst met betrekking tot deze onroerende zaak eerst dan tot stand komt nadat koper en verkoper de koopovereenkomst hebben getekend (“schriftelijkheidsvereiste”).
De termijn die wordt opgenomen voor eventuele (overeengekomen) ontbindende voorwaarden (bv. Financiering) is in de regel 4 tot 6 weken na het sluiten van de mondelinge wilsovereenkomst.
De waarborgsom/bankgarantie is 10% van de koopsom. De koper dient deze 3 dagen ná het vervallen van de ontbindende voorwaarden bij de desbetreffende notaris te deponeren. Koper is te allen tijde gerechtigd voor eigen rekening een bouwkundige keuring te (laten) verrichten dan wel andere adviseurs te raadplegen teneinde een goed inzicht te verkrijgen over de staat van onderhoud.
Deze informatie is door ons Tijs & Cyril Makelaardij met de nodige zorgvuldigheid samengesteld.
Onzerzijds wordt echter geen enkele aansprakelijkheid aanvaard voor enige onvolledigheid, onjuist of anderszins, dan wel de gevolgen daarvan. Alle opgegeven maten en oppervlakten zijn indicatief. Van toepassing zijn de NVM voorwaarden.